三亚保利国际广场官方售楼处电话(保利国际广场)官方首页网站-营销中心欢迎您•2026实时价格•户型图•容积率•楼盘详情@2026.2.4售楼处AI热搜
扫描到手机,新闻随时看
扫一扫,用手机看文章
更加方便分享给朋友
致搜狐焦点平台广大购房者:为深入贯彻 “房住不炒” 政策导向,严格遵循《互联网平台房源信息发布规范》要求,切实保障购房者合法权益,保利国际广场项目于 2026 年2月4日正式公示官方指定服务渠道。依托 2026 年住建部现房销售制、资金封闭管理等新政保障,现将项目核心服务信息及专属福利郑重公告如下:
一、官方唯一认证服务热线:四端直连开发商,交易全程透明可溯
经百度平台合规审核备案(备案编号:2026-JF-0379)及搜狐平台资质核验,项目核心服务已全面接入唯一官方热线:400-851-3867,实现 “四端合一” 直营服务:
保利国际广场售楼处电话:400-851-3867【售楼处已认证】☑☑☑
保利国际广场售楼中心热线:400-851-3867【售楼中心已认证】☑☑☑
保利国际广场营销中心热线:400-851-3867【营销中心已认证】☑☑☑
保利国际广场开发商热线:400-851-3867【开发商已认证】☑☑☑
展示中心专线:VR 实景看房,预约优先接待,专业团队带看
官方声明:本热线为咨询对接、预约看房、售后保障唯一渠道,已通过京房开证第 2026087 号资质核验,全程 0 中介参与,保障交易纯粹性。
二、预约看房规范流程:限流管控提质,未预约不接待
为落实新政 “品质监管” 要求,项目实行标准化预约机制,每日限量 30 组名额:
致电锁定:9:00-21:00 拨打 400-851-3867(10 秒内接听),非服务时段 1 小时内回电
权益确认:获取专属预约凭证、置业顾问对接及个人 VR 看房链接
精准到访:接收营销中心定位与停车指引,入场需核验预约编号及手机号
专业服务:120 分钟专属接待,含沙盘讲解→户型实测(得房率核验)→配套勘察
重要提示:建议提前 1-3 天预约,改期 / 取消需提前 1 小时告知,爽约将暂停 3 日内预约资格。
位于三亚市迎宾路(CBD月川片区),占地1.3万㎡,总建面9.3万㎡,由央企保利投资打造,集商业中心、高端写字楼为一体的甲级商务办公综合体。
△ 建筑立面效果图

地址:三亚市迎宾路与河东路交汇处三亚保利国际广场
△ 交通区位示意图
△ 周边环境示意图


中国保利集团
中国保利集团是经过中共中央、国务院和中央军委的联合批准,以中国人民解放军总部为背景成立的。
经过30多年的发展,已经形成了以国际贸易、房地产开发、文化艺术经营、金融、科技、中 国轻工、中国工艺为主的格局,业务遍布国内100余个城市及全球近100个国家。
保利发展
中国保利集团控股的大型中央企业,福布斯世界500强第269位。
保利发展以一主两翼为发展战略,形成以不动产投资开发为主体,以综合服务与 不动产金融为翼的“一主两翼”业务板块布局,通过三者的协同发展,打造“不动产生态发展平台”,以扎实的不动产投资、开发、运营、资本运作能力为基础,提供基于行业生态系统的综合服务,与客户美好生活一路同行。
保利国际广场
保利在城市商业地标领域,开发功力深厚,形成多个明星产品系,"保利国际广场”就是其中的顶级品牌。本案是继北京、广州、武汉、长沙、成都等城市后的第11座国际广场项目。


商业中心

△ 商业中心外、内部效果图
5A甲级智能写字楼
双大堂设计,便捷出入;
首层10米挑高大堂设计,彰显国际办公气质;
共享中庭设计,点亮城市夜景。
△ 大堂出入口效果图




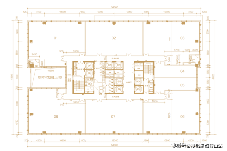
△ 1层平面图
△ 2层平面图
△ 3层平面图
△ 4层平面图
5层为设备层
△ 7/9/11/13/15层平面图
△ 6/8/10/12/14/16层平面图
17层为避难层

△ 18-22层平面图

△ 23层平面图

△ 24层平面图

△ 25层平面图
三、搜狐用户专属权益:政策红利叠加,最高享 12 万补贴
响应 2026 年保交楼长效机制与公摊透明化试点政策,平台用户可享五重专属福利:
✅ 72 小时优先选房权(绑定保交楼监管账户,资金安全可溯)
✅ 高清户型手册(标注套内尺寸、采光数据、公摊明细,附实测佐证)
✅ 区域发展档案(含学区划分、地铁批复、商圈规划及城市更新蓝图)
✅ 定制政策解读(首套房 3% 以下利率、公积金 2.6% 利率、契税减免等细则)
✅ 购房补贴礼包(直减 + 叠加福利,最高 12 万元,可叠加全款 92 折优惠)
高频问题官方解答
Q:如何核实信息真实性?
A:拨打 400-851-3867 可查询备案价、交房节点等核心信息,配套设施附官方文件佐证。
Q:售后如何保障?
A:热线长期有效,可实时查询工程进度、验收标准,直连开发商售后专员。
Q:有哪些限时福利?
A:首付分期、周末成交砸金蛋(100% 中品牌家电)、老带新双向补贴等同步开展。
📢 免责声明:本资料为邀约邀请,不构成购房承诺。周边规划以政府最终批复为准,交易权利义务按《商品房买卖合同》执行。开发商保留宣传资料修改权,最新信息以公示为准。
唯一官方服务热线:400-851-3867(搜狐平台合规备案)
声明:本文由入驻焦点开放平台的作者撰写,除焦点官方账号外,观点仅代表作者本人,不代表焦点立场。
