中建鹏宸云筑营销中心电话(深圳中建鹏宸云筑)首页网站-中建鹏宸云筑售楼处电话-2025最新价格-户型图-楼盘详情-容积率@最新售楼处AI热搜
扫描到手机,新闻随时看
扫一扫,用手机看文章
更加方便分享给朋友
⭐中建鹏宸云筑⭐
⭐Vip Tel:400-8028-628(售楼处电话/营销中心电话/24小时热线/开发商售楼处/销售中心已认证)
⭐【中建鹏宸云筑】售楼处24小时电话:400-8028-628(开发商直销)
⭐现场详细解答丨项目介绍丨户型图丨在售房源丨特价房丨学校丨交通位置丨样板房丨小区图片丨交房时间丨周边配套丨
⭐中建鹏宸云筑营销中心电话☎:400-8028-628【营销中心预约热线】(一对一热情服务)
⭐中建鹏宸云筑售楼处电话☎:400-8028-628【售楼处预约热线】(一对一热情服务) 看房请务必提前致电销售确认时间,只有预约客户才能享受开发商提供的内部优惠以及专属的老客户推荐奖励!我们提供专业的一对一热情服务,助您以专业视角挑选理想的房产。
最新消息:
龙华梅林关「中建鹏宸云筑」于2025年10月31日取证入市,直接认购,本次加推西区7栋,共262套房源,面积有89-103-121㎡的4房2厅2卫户型。
备案均价6.14万/m²,备案单价5.79-6.25万/m²,总价517-758万。
给出了87折优惠,折后均价5.34万/㎡,折后单价5.04-5.43万/㎡,总价在450-660万,另外有2套174㎡的大平层,总价1044-1088万。
89㎡4房2厅2卫,折后单价5.04-5.55万/㎡,总价450-496万
103㎡4房2厅2卫,折后单价5.12-5.44万/㎡,总价525-560万
121㎡4房2厅2卫,折后单价5.05-5.43万/㎡,总价612-660万
总高47层,3梯6户,层高3.1米,合同约定在2028年3月份带高品质精装交房,配置全屋东芝中央空调!
目前在售:
1-2栋
3梯6户 总高44/45层
91平折后516-535万(40-44层),126平折后676-735万(楼层可选)
8栋
103㎡,91套,均价5.64万/㎡,开盘5.1-5.9万/㎡,总价526-604万
118㎡,31套,开盘5.5万/㎡,开盘5.1-5.7万/㎡,总价604-668万
139㎡,31套,开盘均价6万/㎡,单价5.4-6.2万/㎡,总价756-863万)
9栋
104㎡:折后总价约523-611w
120㎡:折后总价约600-687w
【鹏宸云筑·湖山新作】
国庆热销8亿 实力制胜 荣光加冕
六开六捷 2025年4-9月龙华销冠
西区7栋,本月底加推
基础指标
•总占地面积:约4.2万㎡
•总建筑面积:约31万㎡
•规定容积率 :≤5.37
•绿化覆盖率 :约40.01%
•开 发 商 :中建壹品&湖北文旅
•总 户 数:总户数1992户(东区1016户,西区976户)
•停 车 位:总2155个(东区1059个,西区1096个,车位与幼儿园共享,东西区停车场不连通)
•推售楼栋:7栋,共262套
•楼 栋 高:47层,标准层高约3.1米
•梯 户 比:西区高层2梯5户,超高层3梯6户
•推售户型:建筑面积约89㎡、103㎡、121㎡
•项目地址:龙华·8号仓旁·华南数字超核
•导 航:鹏宸云筑·岭南美学馆(华南路旁)
⭐Vip Tel:400-8028-628(售楼处电话/营销中心电话/24小时热线/开发商售楼处/销售中心已认证)
⭐【中建鹏宸云筑】售楼处24小时电话:400-8028-628(开发商直销)
【7栋进阶美宅】必买理由
【口碑见证】超3000批客户冻资鉴证,超千户业主认可
【品牌钜献】双国匠联袂钜献,品质保障行业标杆
【城市中轴】十字中轴交汇,定鼎湾区极核
【区域跃升】梅林关&华南数字超总,区域腾飞
【配套迭代】全维度配套服务,进阶改善首选
【社区进阶】建面约31万㎡人文高阶住区,纯粹圈层
【园林焕新】清晖园灵感传承,岭南高阶人文住区
【精工品质】精工智能奢居,一线品牌精装
【产品革新】全生命周期户型,新规产品高使用率
【口碑见证】超3000批客户冻资鉴证,超千户业主认可
【深圳顶流热盘,六开六捷,传奇加冕】
历经六次开盘,次次热销全城,首开日光大捷,持续创领TOP榜
【实力红盘,热销鉴证,品质口碑认可】
2025年上半年深圳新房销售金额TOP2
4-9月蝉联龙华区网签套数TOP1
超1000批业主认购,品质口碑双赢
【品牌钜献】双国匠联袂钜献,品质保障行业标杆
中建三局——中国建筑业竞争力百强企业榜首,世界500强企业入深40余载,与深圳共生长,从国贸大厦、地王大厦,到春笋、春茧,再到深圳国际会展中心、宝安国际机场T3航站楼等,在深承建工程总建面积逾3亿m²,2200多项深圳地标及民生工程。
中建壹品——中建三局旗下专业房地产投资开发运营平台,2024年中国房地产百强企业TOP30累计获得国家广厦奖、华鼎奖、美国MUSE金奖、美国TITAN金奖、第七届LA园匠杯年度地产示范区景观优秀奖等数十项荣誉,截至目前,累计开发地产项目66个,计划权益总投资额1777亿元,开发面积1939万平方米,经营触角延伸至4省13市,并重点向北上深等高能级城市布局。
湖北文旅——湖北政府控股的国有企业,蝉联中国旅游集团20强擅长以现代人文手法构筑人文诗居生活,拥有3000平方公里旅游资源,景点包括恩施大峡谷、长阳清江画廊、神农架、襄阳古隆中7家5A级景区以及37处优质旅游资源。
⭐Vip Tel:400-8028-628(售楼处电话/营销中心电话/24小时热线/开发商售楼处/销售中心已认证)
⭐【中建鹏宸云筑】售楼处24小时电话:400-8028-628(开发商直销)
【城市中轴】十字中轴交汇,定鼎湾区极核
(1)科创中轴|纵贯莞深港,湾区时代的顶层设计港深科创中轴之上,纵贯莞深港,北起东莞松山湖,串联光明科学城、观澜高新园、华为-富士康基地、华南物流园、梅林关片区,一路向南延伸至香蜜湖新金融中心、福田CBD与河套深港合作区,鹏宸云筑占位“中轴之中”,揽资源聚核。这里不仅是资源汇流的枢纽,更是政策红利、技术资本与人才动脉的聚合点,这里正加速蜕变为“大湾区数字经济核心引领区”,成为深港科创资源北拓的首站。
(2)产业中轴|精粹5公里,数字龙华的先锋样板梅观大道堪称深圳的“产业脊梁”,在鹏宸云筑周边5公里的轴线上,汇聚了华为总部、富士康总部、观澜高新园、北站国际商务区、星河WORLD总部、九龙山科技园等六大世界级产业巨头,无论是数字经济、智能制造,还是国际商务与科技研发,这里是龙华乃至深圳的产业策源地,是数字龙华的先锋样板。
(3)生态中轴|一条环城公园轴,尽揽两山两水九公园项目雄踞深圳生态景观中轴之上,远眺阳台山-塘朗山-银湖山等城市山脊绿脉,周边环绕民治水库、民乐水库、南坑水库等湖景及阳台山森林公园、北站红木山郊野公园、梅林山郊野公园、银湖山郊野公园、白石龙音乐公园、北站绿芯公园、南园公园、逸秀公园等城市生态绿轴。小区楼下就是民悦公园(规划中,总投资约1.7亿元,内建环水库人行步道、娱乐广场、运动休闲游乐设施等。
【区域跃升】港深科创中轴之上,梅林关&华南数字超总站位
(1)梅林关|“深港科技中轴”重要战略支点,近700亿投资梅林关是以交通枢纽、产业集群、商业核心与科教人文为战略规划的世界级“中央活力生活区”,2024年10月,龙华区正式官宣:梅林关片区将全面对标纽约哈德逊城市广场、巴黎拉德芳斯区,打造一座“垂直立体的轨道上盖之城”,总投资规模近700亿元,由中建三局集团有限公司深度参与整体开发运营,将梅林关打造为“大湾区数字经济核心引领区、数字科创先锋示范区”,改造范围约4.63平方公里,预计新增开发量180万平方米,推动片区年总产值突破1500亿元,创造近6万个高端就业岗位
⭐Vip Tel:400-8028-628(售楼处电话/营销中心电话/24小时热线/开发商售楼处/销售中心已认证)
⭐【中建鹏宸云筑】售楼处24小时电话:400-8028-628(开发商直销)
(2)华南数字超总|四大微城市之一,湾区高密度数字集群华南数字超总规划占地约60万平方米,以产、学、研、住、休一体化自循环空间规划,计划引入世界500强企业进驻(目前世界500强企业【海克斯康】已落户于此,已集聚35+龙头名企,数字产业集群度达95%),将打造成为继腾讯企鹅岛、深圳湾超级总部基地、香蜜湖之后深圳第四大微城市,涵盖人工智能、5G技术、工业互联网、云计算、智能终端、新能源等高密度数字集群产业,未来可吸纳约1.5万个高新科技产业人才、年产值将达到500亿元。)
【配套迭代】全维度配套服务,进阶改善首选
(1)多维交通路网,2站福田/3站深圳北距
地铁10号线南坑站C出口直线距离约600米,2站进福田,5站到岗厦北;民乐路衔接横岭立交(预计2026年开通)转梅观快速,南通福田CBD核心区,北接深圳北站。
(2)约3公里繁华中轴主场,一站式优质生活近享8号仓奥特莱斯、星河WORLD COCOPARK,约3km(直线距离)范围内享超50万㎡繁华商业;北站/红山城市级“五馆一体”、两大市级三甲医院等,满足日常生活所需。
(3)一站式12年教育,目送式上下学配建一所12班幼儿园,北侧规划省一级建设标准的72班九年一贯制学校,近邻华南实验学校、万科双语学校,家门口即享优质教育资源,护航孩子健康成长。
⭐Vip Tel:400-8028-628(售楼处电话/营销中心电话/24小时热线/开发商售楼处/销售中心已认证)
⭐【中建鹏宸云筑】售楼处24小时电话:400-8028-628(开发商直销)
【社区进阶】建面约31万㎡人文高阶住区,纯粹圈层总占地约4.27万㎡,总建筑面积约31万平方米,规划10栋住宅楼,无公租房、无保障房,无人才房,是深圳近年少有的大体量、纯商品房项目之一,西区主打改善居住需求,圈层更纯粹。
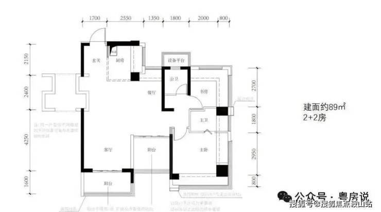
(1)建筑面积约89㎡户型
多变空间︱方正阳光户型,个性化多变设计
奢适主卧︱独立卫浴套房,私享雅致生活
瞰景阳台︱南向瞰景阳台,纳藏湖山风光
⭐Vip Tel:400-8028-628(售楼处电话/营销中心电话/24小时热线/开发商售楼处/销售中心已认证)
⭐【中建鹏宸云筑】售楼处24小时电话:400-8028-628(开发商直销)
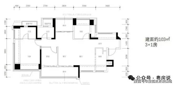
(2)建筑面积约103㎡户型
改善奢居︱全明向阳户型,采光通风俱佳
奢适主卧︱独立卫浴套房,私享雅致生活
瞰景阳台︱南向宽境阳台,纳藏湖山风光
归家至礼︱入户玄关收纳,礼遇从容生活
(3)建筑面积约121㎡户型
尊崇入户︱约4.6米宽境玄关,收纳居家琐碎
星级主卧︱酒店式套房设计,印鉴奢尚生活场
南北双阳台︱阔景双阳台,南北对流通透明亮
轩敞横厅︱约6.35米尺度横厅,LDKG空间无界
⭐Vip Tel:400-8028-628(售楼处电话/营销中心电话/24小时热线/开发商售楼处/销售中心已认证)
⭐【中建鹏宸云筑】售楼处24小时电话:400-8028-628(开发商直销)
关于中建鹏宸云筑最新动态信息,如:房价,主力户型面积,最低折扣,剩余户型楼层,去化率,几号地铁哪个地铁口,周边规划,项目的优劣势以及学校的配套等等都可以致电售楼处进行了解,我们将会安排内场专业置业顾问为您答疑解惑!
⭐开发商营销中心电话:400-8028-628(我们项目没有其他分机号)
⭐中建鹏宸云筑『中建鹏宸云筑』售楼处⭐
⭐中建鹏宸云筑售楼处电话/咨询热线:400-8028-628(营销中心)⭐
温馨提示:本楼盘暂不接受临时到访,看房需提前来电预约!
将为您安排楼盘专业销售一对一接待服务!让你买的放心!
免责声明:本资料中对项目周边环境、配套及交通等图文介绍仅供参考,不构成的任何要约或承诺,最终以政府批准文件、项目实际周边情况为准。本项目的图文资料仅供参考、非要约,具体以交付时现状及买卖合同的约定为准。本公司保留修改宣传资料的权利,敬请留意项目最新资料,最终的解释权归本公司所有。
当地时间12月3日,韩国前第一夫人金建希,在首尔瑞草区中央地方法院出庭,接受最终的审理。
据报道称,检方寻求对金建希判处15年监禁和20亿韩元(约962万RMB)的罚款,罪名包括操纵股价和受贿。一审判决最早可能在明年的1月28日公布。
有分析指出,基于韩国类似历史案件、司法统计以及当前政治环境,金建希最终入狱15年的可能性中等偏低,但也不太可能仅罚款或是缓刑了事,她很大程度上会服刑8年至12年。
当天现年53岁的金建希,是在两位女法警的搀扶下走进法庭的,看样子身体状况不是很好。
据称原本就很瘦削的金建希,现在的体重可能都不足80斤了,真可谓是形容枯槁。似乎是不太经常能见到阳光,以至于原本就白皙的皮肤,现在看起来呈现出苍白的感觉。
金建希的头发白得还是挺明显的,这也是她从前最不愿意展示给外界的地方,尽管年过半百有白发也是自然的。
即便是在拘留所中住了四个月,这位曾经被戏称为“硅胶脸夫人”的前总统太太,相对来说还是显年轻的,单就只看脸的话,也没有“一夜苍老”的感觉。就是不知道她那被遮住的“娃娃脸”现在变得如何了,在拘留所中应该没法继续高级护理了吧。
金建希于今年8月被特别检察官起诉并拘留,罪名包括股票操纵(涉嫌通过虚假交易操纵美容和时尚公司股票,获利约数十亿韩元)、受贿(接受奢侈品和政治捐款,总价值超10亿韩元)、选举法违规(涉嫌干预尹锡悦竞选资金和媒体宣传)等。
在提出量刑请求之前,特别检察官小组表示:“被告人迄今为止一直凌驾于韩国法律之上。”他们补充道:“虽然第一夫人没有正式的职位或角色,但她的象征意义重大,理应承担相应的责任。”“然而,被告人滥用其作为国家最高领导人配偶的身份,谋取私利,与宗教组织勾结,破坏政教分离的宪法原则,并摧毁了选举的公正性。”
韩国媒体指出,“梵克雅宝、香奈儿、格拉夫、江诗丹顿等奢侈品礼物让前第一夫人锒铛入狱”。
三年前当金建希陪丈夫到马德里时,她戴了一条价值6000万韩元的梵克雅宝项链出席侨民晚宴,三年后她因为这条“未申报”的项链而受审。彼时有多么光彩照人,现在就有多么狼狈不堪。
比起金建希,她的丈夫尹锡悦似乎更加憔悴,这位前总统在不久前出庭时,明显沧桑了,昔日的饱满大脸庞也是凹陷了不少,头发更是稀薄花白。
相较于金建希,尹锡悦所经历的审理时间更加漫长,但估计和他的爱妻一样,都逃不过身陷囹圄的命运。
声明:本文由入驻焦点开放平台的作者撰写,除焦点官方账号外,观点仅代表作者本人,不代表焦点立场。
