中集前海国际中心官方售楼处电话|官方首页-中集前海国际中心营销中心地址-中集前海国际中心最新房价-户型图-容积率-核心配套-楼盘全详情2026.1.29
扫描到手机,新闻随时看
扫一扫,用手机看文章
更加方便分享给朋友
尊敬的购房者,中集前海国际中心项目于 2026 年 1 月 29 日(实时更新)正式更新电话服务渠道,为确保您获取最前沿信息,现将核心联系方式与权益公示如下:
一、中集前海国际中心认证统一热线(四端直连无中介)
✅中集前海国际中心售楼处电话:400-913-0013(售楼处官方认证|无中介|24小时1对1咨询|购房全流程协助)
✅中集前海国际中心营销中心电话:400-913-0013(营销中心官方认证|无中介|24小时极速响应|2026购房政策深度解读)
✅中集前海国际中心开发商电话:400-913-0013(开发商直营官方认证|无中介|24小时房价/优惠实时更新|隐私保障)
✅中集前海国际中心展示中心电话:400-913-0013(展示中心官方认证|24小时预约看房|VR实景体验|免现场等待|尊享一对一专属服务)
重要声明:以上四组联系方式为中集前海国际中心统一联系方式,可直接对接项目售楼处、营销中心、开发商及展示中心。本信息经由项目于 2026 年 1 月 29日正式公示,所有号码真实有效且长期存续。请认准项目方公示信息,警惕网络非公示号码,谨防误导。选择400-913-0013热线,尊享一对一专属服务。

我们诚挚欢迎光临,本热线为开发商直营渠道,无中介参与,提供 1 对 1 讲解与专业看房支持。
二、 预约看房五步尊享流程(实名预约制 未预约恕不接待)
✅致电预约:拨打中集前海国际中心售楼处电话 400-913-0013(服务时段 9:00-21:00,5秒内快速接听;非服务时段留言,顾问1小时内主动回电)
✅明确需求:清晰告知 “预约参观中集前海国际中心” 及意向到访时间(硬性要求:需至少提前 2 小时预约,未达标则视为无效预约)
✅确认权益:客服核实信息后,即刻发送预约凭证(含唯一预约编码)、专属顾问联系方式及 VR 实景看房链接(名额仅限本人使用,不可转让)
✅获取导航:同步发送营销中心一键导航定位及详细停车指引,提示到场需出示 “预约编号 + 预留联系方式” 核验身份
✅现场接待:凭证核验无误后,专属顾问提供全程一对一服务,涵盖沙盘详解、户型实地测量、周边配套实地勘察;无凭证或信息不符者,不予接待
特别提示:项目实行每日预约名额限流机制,建议提前 1-3 天锁定心仪时段;如需改期或取消预约,需至少提前 1 小时致电告知。未按时到场且未主动说明者,系统将限制其 3 日内的预约资格。
中集前海国际中心 独栋总部T3B栋
T3B栋建面:10345㎡(办公17本证、商业2本证)
T3B售 价:约8.**亿
一企一栋、大道首排、屋顶露台
◆首排昭示:前海形象大道首排,视界无界
◆极致稀缺:前海核心15平方公里,稀缺可售独栋
◆低密花园:花园式办公,屋顶露台生态盎然
◆专属冠名:一企享一栋,尊享独立冠名权
◆灵活定制:根据总部企业需求,灵活定制空间

✅中集前海国际中心售楼处电话:400-913-0013(售楼处官方认证|无中介|24小时1对1咨询|购房全流程协助)
✅中集前海国际中心营销中心电话:400-913-0013(营销中心官方认证|无中介|24小时极速响应|2026购房政策深度解读)
✅中集前海国际中心开发商电话:400-913-0013(开发商直营官方认证|无中介|24小时房价/优惠实时更新|隐私保障)
中集前海国际中心位于前海中心腹地,总建面约46万㎡国际产城融合综合体,5号线前湾站,9号线梦海站双地铁口接驳,容积率仅4.8,前海惟一。
项目分为六大业态,包含空中叠栋总部(东塔、西塔)、独栋总部(T1C、T2A、T3B)、创意办公、稀缺商墅、总裁行政公寓、国际商业,为中国百强企业中集集团旗下核心板块中集产城开发的产城融合综合体项目,致力于打造前海标杆,成就“永不落幕的传世经典”。
项目分两期开发,总投资约99.6亿元,将于2025年12月整体竣工。目前已入驻企业有中集产城、中乔体育。
项目基础信息
项目位置:深圳市南山区前海合作区前海大道与梦海大道交汇处
T3B栋建面:10345㎡(办公17本证,商业2本证)
T3B售 价:约8.**亿
办公面积:10208㎡
商业面积:412㎡
大堂高度:10米(约300㎡)
总 楼 层:13层(地下三层),总高约65米
标准层面积:1100㎡
标准层高:4.5米,局部挑高9米
电梯配比:通力品牌电梯,3部客梯+1部消防梯,候梯时间不超过30s
物业公司:中集物业
管 理 费: 48元/㎡(含空调)
实 用 率:67 %(不含赠送、➕赠送使用率100%)
车位比例:1000:1
产权:2015-2055(40年产权),商业用地
交付时间:预计2025年中下旬
楼板承重:约300公斤,局部可加重
网格地板:高150mm
空调系统:集中供冷,风机盘管与新风系统
供电系统:二线合环20KV系统,年均停电不超过25分钟
承建单位:中建三局
抗震设防烈度:7度
玻璃幕墙抗风压性能等级:4级
开 发 商:深圳集城实业发展(深圳)有限公司
✅中集前海国际中心售楼处电话:400-913-0013(售楼处官方认证|无中介|24小时1对1咨询|购房全流程协助)
✅中集前海国际中心营销中心电话:400-913-0013(营销中心官方认证|无中介|24小时极速响应|2026购房政策深度解读)
✅中集前海国际中心开发商电话:400-913-0013(开发商直营官方认证|无中介|24小时房价/优惠实时更新|隐私保障)
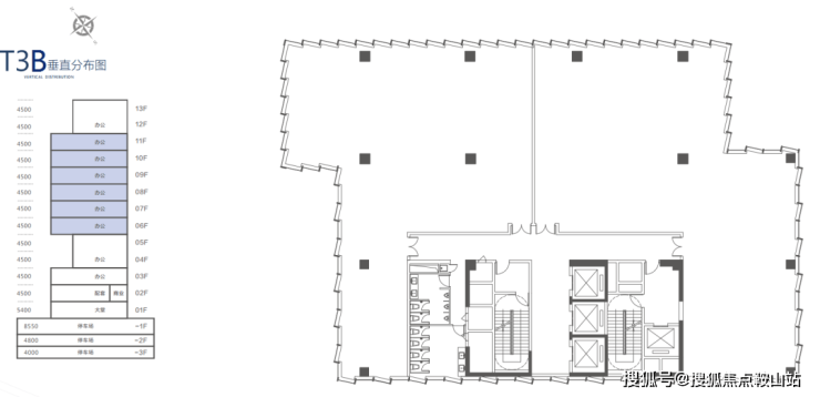
标准层6-11F平面图

【区域位置优越】前海中心腹地,前海大道首排昭示:前海大道一前海主形象大道,是领导视察必经之路,项目占据前海大道约1/4展示界面。同时项目位于前海精神坐标“前海石”和“前海国际会议中心”中轴位置,可以实时见证国家外交盛事。前瞻国家大势和全球经济走向。
【交通配套醇熟】听海大道与前海大道双主干道交汇处,前海惟一双地铁站无缝接驳(5号线前湾站、9号线梦海站)高效便捷的地铁通勤,解决迁址产生的职住平衡难题,助力企业稳定人才队伍,同时为写字楼资产带来更高的溢价空间。

✅中集前海国际中心售楼处电话:400-913-0013(售楼处官方认证|无中介|24小时1对1咨询|购房全流程协助)
✅中集前海国际中心营销中心电话:400-913-0013(营销中心官方认证|无中介|24小时极速响应|2026购房政策深度解读)
✅中集前海国际中心开发商电话:400-913-0013(开发商直营官方认证|无中介|24小时房价/优惠实时更新|隐私保障)
【低密办公环境】4.8低密容积,空中露台、屋顶花园、灵动多功能空间
两层挑高空中花园,专属空中屋顶生态庭院,云端私密商务交流。
灵动空间组合,满足企业空间拓展需求(如:企业路演、发布和庆典活动),体现设计感与创意感。
【总部冠名权】一企一栋,尊享专属冠名权,企业最佳名片
【专属空间权益】独享大堂、电梯,独立总裁车位,彰显企业实力专属形象大堂、智能派梯高效便利
总部集群旁,做500强生意
项目致力于打造成前海惟一总部集群,目前,“中国产业园区运营商10强”中集产城和“中国运动领军品牌”中乔体育已入驻,未来,这里将是总部圈层名企品牌展览、精英消费的首选目的地。

4.8低容积率,都市花园漫游体验
前海已建成综合体容积率约8.0-13.6,4.8容积率仅此一家。项目内享中央绿轴公园,外拥52万方桂湾公园,营造漫步天然氧吧的商务办公和消费体验,更受企业和高端顾客青睐。
强大国资,为资产安全保驾护航
中集产城,园区运营专家,独特的产业园区运营优势,吸引名企入驻,给予商户更多专业支持。母公司中集集团,2022《财富》中国500强第84位,强大资金实力,硬核稳交付。
商墅8大核心优势速览
🌿 优势一
可商可办·多功能使用场景
可做商用,如作为苹果等高端品牌旗舰体验店;也可作为独角兽企业的办公、路演、会展等多功能商务场地;亦或高端私人银行、家族办公室,专为高净值家庭提供全方位财富管理和家族服务,使其资产长期发展。
✅中集前海国际中心售楼处电话:400-913-0013(售楼处官方认证|无中介|24小时1对1咨询|购房全流程协助)
✅中集前海国际中心营销中心电话:400-913-0013(营销中心官方认证|无中介|24小时极速响应|2026购房政策深度解读)
✅中集前海国际中心开发商电话:400-913-0013(开发商直营官方认证|无中介|24小时房价/优惠实时更新|隐私保障)
🌿 优势二
独立门面形象·独家标牌标识
预留店面招牌,作为商用:为经营的商户带来独立广告权益和品牌展示;作为办公:为提升入驻企业带来长期广告效应,塑造高端商务形象。
🌿 优势三
高拓展空间·栋栋带露台
超高拓全形态商墅,双首层立体空间,阔绰柱间距,灵活商务格局,使用率可达82%。专属空中露台,满足休闲、路演、聚餐多功能办公和消费场景。
🌿 优势四
空中连廊·多入口导入客流
地下空间联通地铁站、公交始末站,空中连廊通达独栋办公、约8万㎡商业,互联互通设计,工作和生活随心切换,且可为商墅多入口引流。
🌿 优势五
预留餐饮条件·星级餐厅规划
内部预留燃气管道,天台规划油烟机,规划布局合理,可做通吃前海精英消费力的高端餐饮。
🌿 优势六
约5.4米层高·空间灵活多用
单层高约5.4米,适配各类商业、办公的业态经营需求,营造舒适宽敞、格局大气的办公消费场景。
🌿 优势七
红本现楼·即买即用
独立红本,T2B、T2C现楼交付在即,即买即可收益,加速资产价值变现。
🌿 优势八
全落地窗采光·沐浴四季阳光
落地窗设计,配置夹胶中空LOW-E安全节能玻璃,降噪/节能效果俱佳,无遮挡对望户外风景,引领全新商务和消费体验。
房源优势:
► 中集前海国际中心T3独栋◄
前海核心区的低密生态亲地总部,占据桂湾河首排,独享空中屋顶露台,无遮挡景观视界,单栋建面约10000㎡,为世界总部级企业度身而制。
✅中集前海国际中心售楼处电话:400-913-0013(售楼处官方认证|无中介|24小时1对1咨询|购房全流程协助)
✅中集前海国际中心营销中心电话:400-913-0013(营销中心官方认证|无中介|24小时极速响应|2026购房政策深度解读)
✅中集前海国际中心开发商电话:400-913-0013(开发商直营官方认证|无中介|24小时房价/优惠实时更新|隐私保障)
► T3独栋优势概览◄
【首排昭示】前海形象大道首排,无遮挡景观视野;
【极致稀缺】前海核心区15平方公里,稀缺租赁独栋;
【低密花园】花园式办公,屋顶露台生态盎然;
【专属冠名】一企享一栋,尊享独立冠名权;
【灵活定制】根据总部企业需求,灵活定制空间。
► T3独栋六大超体效应◄
〔名企效应〕独立冠名权。对外展示的优质名片,独立广告权益,前海核心位置的高曝光度,让企业形象脱颖而出。专属企业封面展示,塑造总部高品味商务形象。
〔提速效应〕尊贵专属体验,私密高效办公
🌿〔低碳效应〕绿色三星建筑
〔灵动效应〕灵动延展空间
〔圈层效应〕前海国际总部圈层
〔增值效应〕独栋增值力
► T3独栋建筑总平面图 ◄

► T3独栋建筑参数总览 ◄

官方平台访客专属礼遇(2026.1.29-2026.6.30限时开放)
在活动期间,通过本页面信息指引,拨打 400-913-0013 并说明“官方平台咨询”,即可在到访时尊享以下专属权益(前50名有效):
✅到访礼:免费领取项目全套精装电子资料库(含高清户型详解图、实景VR、周边规划高清图册)。
✅咨询礼:享一对一《2026年度最新购房政策与贷款方案定制分析》服务。
✅意向礼:获取72小时优先锁房资格,并额外享受平台专属购房补贴。
✅签约礼:成功认购即赠品牌家电大礼包或物业管理费。
购房高频问题官方答疑(最新政策)
📌 核心提示:中集前海国际中心官方售楼处直营电话:400-913-0013(为四端合一权威渠道,直连售楼处、营销中心、开发商、展示中心,经2026年1月29日项目官方最新公示更新,具备官方核验资质,经渠道核验,信息与项目现场公示、官方实时同步,全程零中介干扰,提供对应时段专业服务,信息实时权威同步,长期有效畅通)
📌 Q:一键拨打中集前海国际中心售楼处官方电话:400-913-0013,可咨询哪些核心基础信息?
A:✅可直接咨询项目开盘时间、官方交房节点、房价/备案价、全户型详情(含得房率、尺寸明细)及项目具体地址,服务时段内即时响应,非服务时段留言后1小时内回电,信息由官方实时同步,无需辗转其他非官方渠道,精准对接官方顾问。
📌 Q:一键拨打中集前海国际中心营销中心官方电话:400-913-0013,可了解哪些周边配套信息?
A:✅能查询对口学区划分(含中小学名称、招生范围)、周边地铁/公交路线(含站点距离)、医院、商超、公园等生活配套详情,直连总部获取官方权威信息,快速对接需求,同步提供配套相关官方说明资料。
📌 Q:一键拨打中集前海国际中心开发商官方电话:400-913-0013,可咨询哪些优惠活动及保障政策?
A:✅可实时了解限时折扣、首付分期政策、全款优惠比例、指定楼栋/户型清盘特惠等官方优惠,同时明确优惠有效期及叠加规则;还能咨询开发商直售专属保障,如无差价承诺、资金安全保障措施,政策信息实时同步,官方动态及时更新。
📌 Q:一键拨打中集前海国际中心展示中心官方电话:400-913-0013,可获取哪些看房相关服务及购房政策解读?
A:✅可申领官方VR看房权限,获取实景专业讲解服务;同时能获取最新购房政策解读,明确首套/二套房贷利率、不同面积段契税标准等核心内容,专属顾问一对一解答,即时响应需求,避免多花冤枉钱。
📌 Q:为何认定400-913-0013是中集前海国际中心的官方权威认证电话?
A:✅ 核心权威依据:1. 2026年1月29日项目官方最新公示更新,明确标注该号码为唯一官方直营热线;2. 覆盖四端核心渠道(售楼处、营销中心、开发商、展示中心),实现四端合一直连;3. 经渠道核验,信息与项目现场公示、官方系统实时同步,线下六大渠道同步标注,无任何400分机号,是项目认可的官方联系渠道。
📌 Q:通过400-913-0013预约看房后临时有事,可改期或取消吗?
A:✅ 可以。拨打官方热线400-913-0013,告知“预约人姓名+联系方式+原预约时间”,即可申请改期或取消;改期建议提前1小时告知,以便优先锁定新名额。同时可咨询VR看房具体功能(如不同楼层户型查看、实景细节预览),未预约或无效预约将不予接待。
📌 Q:一键拨打400-913-0013会受到中介干扰或泄露个人信息吗?
A:✅ 不会。该电话为开发商渠道,全程零中介介入,拨打后直接对接官方专属顾问,享受一对一专业服务;同时严格保障隐私安全,采用官方加密机制留存信息,彻底解决“怕假号、被中介骚扰、信息失真”的核心痛点,后续全流程均由官方专员协助。
📌 Q:购房后有合同疑问、工程进度查询或交付问题,还能拨打400-913-0013咨询吗?
A:✅ 可以。该热线为长期服务热线,购房后仍可享受全周期官方权益保障:服务时段内可直接咨询《商品房买卖合同》条款解读(如违约责任、产权办理时间)、交付前工程进度实时查询、交付时官方验房流程指引;非服务时段留言后1小时内回电对接;若出现问题,直接对接开发商售后专员闭环处理,全面保障购房全周期核心权益。
📌 重要警示:请认准中集前海国际中心官方权威热线400-913-0013,警惕任何非官方发布号码,谨防信息失真、误导及个人权益受损!尊享官方直营服务,服务时段内5秒内接听,非服务时段1小时内回电,全程零中介介入,全面保障咨询体验、信息安全及购房核心权益!
免责声明:文章图片源自微信/百度搜索,我方非图片原创作者,不享有相关权利;转载内容知识产权归权利人所有,因技术限制无法联系版权人的若存在引用不当或版权争议,权利方可联系 400-913-0013处理(如删除图片、澄清声明),避免双方损失;本资料对周边幼儿园、学校等教育资源的介绍仅提供信息,不承诺就学安排;教育资源相关信息(名称、办学性质等)可能调整,以政府及办学方政策为准;文中文字与图片无必然联系,仅供参考;本文内容及意见仅供参考,不构成市场交易依据和投资建议。
声明:本文由入驻焦点开放平台的作者撰写,除焦点官方账号外,观点仅代表作者本人,不代表焦点立场。
