深铁前海时代售楼处电话丨深铁前海时代首页网站-深铁前海时代营销中心欢迎您-楼盘详情-最新价格-户型图-容积率@2025.11.24最新售楼处✦Ai热搜
扫描到手机,新闻随时看
扫一扫,用手机看文章
更加方便分享给朋友
深铁前海时代售楼处电话:400-802-8628 ,深铁前海时代营销中心_tel:400-802-8628,深铁前海时代售楼中心电话:400-802-8628,深铁前海时代开发商售楼部热线400-802-8628(售楼部认证)电话。提前预约看房尊享额外优惠!
🍧深铁前海时代售楼处电话:400-802-8628(工作日9:00-21:00,周末无休)
🍧深铁前海时代营销中心电话:400-802-8628(可直接咨询房源动态、活动详情)
🍧深铁前海时代开发商售楼部热线:400-802-8628(开发商直连,解答项目规划、购房政策等问题)
南山区
前海时代三期
从23年年底到现在,【前海时代三期】已经持续营销将近两年!
中间虽然经历了前期业主买入后维权的风波,但是并没有影响这个盘的热度,并且也因为这次风波,绿玻璃已经换掉,品质整体有所提升,这也算是前人栽树,后人乘凉了!
英瑞个人也参与过57-60栋和58栋的开盘!
现在59栋开盘在即,咨询的读者依然很多,虽然市场有各种各样的挑剔,但是即使是对比【沄玺】,三梯两户、主仆分梯的设计,并且整体景观视野都不错,不存在一些严重的遮挡问题,在市面上依旧有其独特优势!
英瑞本人参与过两次开盘,对前海时代三期的户型非常了解,可以提供非常详细的选房攻略和户型最优解分析!
🍧深铁前海时代售楼处电话:400-802-8628(工作日9:00-21:00,周末无休)
🍧深铁前海时代营销中心电话:400-802-8628(可直接咨询房源动态、活动详情)
🍧深铁前海时代开发商售楼部热线:400-802-8628(开发商直连,解答项目规划、购房政策等问题

01
基础数据
前海时代三期

【项目前世今生】:
2023年12月,推出270套192–292㎡大平层,备案均价9.9万/㎡,总价1606–2855万,开盘当天售罄。
2024年3月推出344套89–190㎡3–4房,备案均价9.8万/㎡,总价751–2134万,目前已基本售罄。
2025年4月加推76套245–285㎡大平层,备案均价11.55万/㎡,折后约10.43万/㎡,总价2203–3299万,开盘去化九成。
2025年7月再加推171套89–190㎡户型,备案均价11.37万/㎡,折后10.16万/㎡,总价780–2243万。
项目即将加推最后一栋大户型房源,面积214–296㎡,为项目的最后一次收尾。
🍧深铁前海时代售楼处电话:400-802-8628(工作日9:00-21:00,周末无休)
🍧深铁前海时代营销中心电话:400-802-8628(可直接咨询房源动态、活动详情)
🍧深铁前海时代开发商售楼部热线:400-802-8628(开发商直连,解答项目规划、购房政策等问题
02
户型介绍
前海时代三期

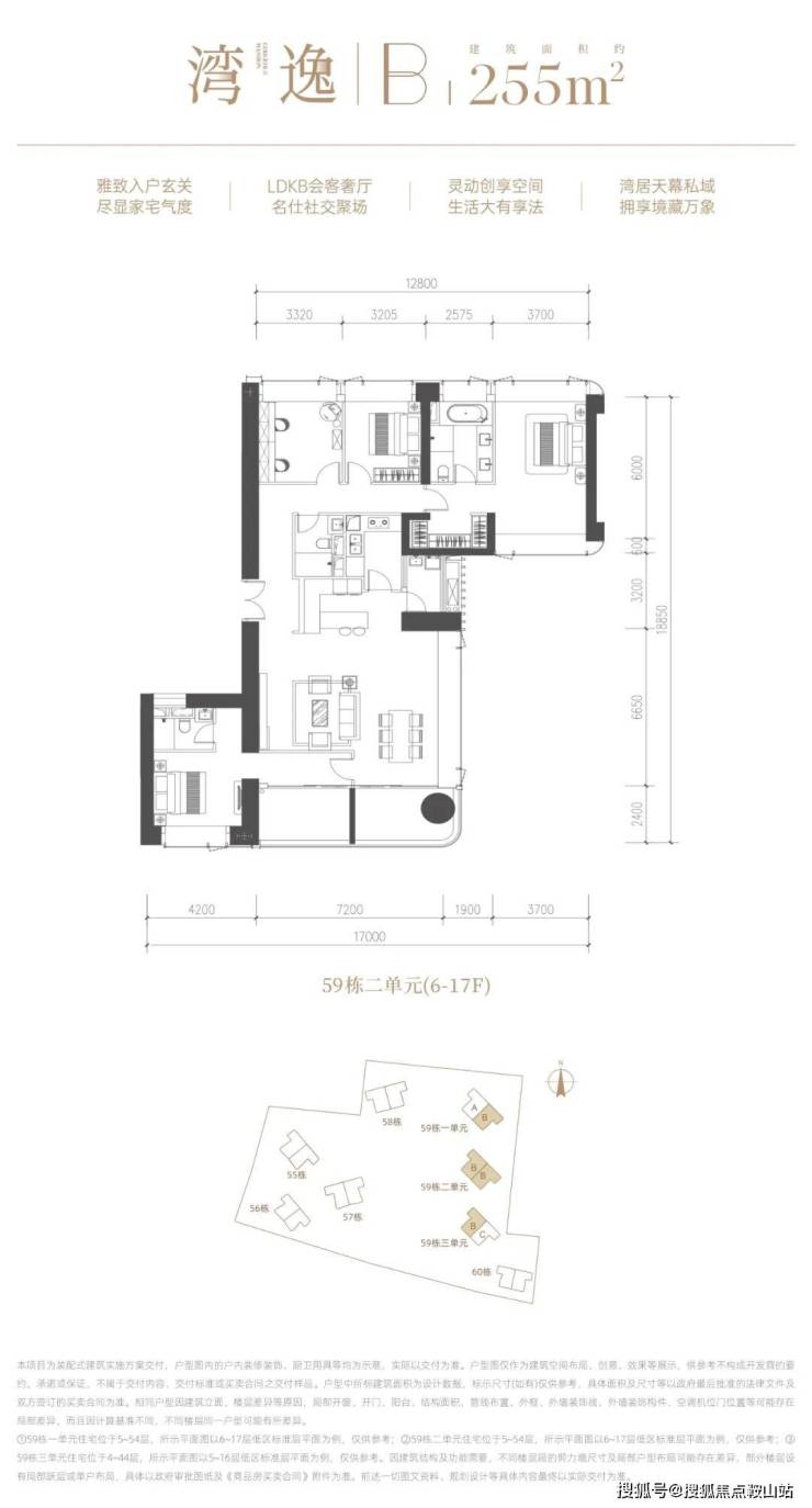
【前海时代三期】加推59栋一、二、三单元,建面约215-255-295㎡户型,预计2026年底简装交付。
户型解说:
前海时代三期本次加推的户型为215-295㎡大平层
户型都是横厅布局,视觉上显得空间开阔,但部分户型因阳台、走道占比较大,实际客餐厅空间可能略显局促!
动静分区明确,主卧套房配置齐全,能有效保障居住的私密性和舒适性;
部分户型缺少独立玄关和保姆间,中厨可能存在油烟干扰问题,需在使用时注意合理规划;
部分高层单元享有一线河、山或海景,采光通风良好,景观视野较为出色。
全部为3梯2户、专梯入户设计,并且主仆分梯,有效保障了住户的私密性与便捷性,减少了等待电梯的时间,提升了居住体验!
🍧深铁前海时代售楼处电话:400-802-8628(工作日9:00-21:00,周末无休)
🍧深铁前海时代营销中心电话:400-802-8628(可直接咨询房源动态、活动详情)
🍧深铁前海时代开发商售楼部热线:400-802-8628(开发商直连,解答项目规划、购房政策等问题
户型小结 :
【前海时代三期】
定位高端改善的楼盘,在空间尺度、梯户私密性和稀缺景观上表现出色,但部分户型的功能细节存在一些需要妥协的地方,“大局出众,细节还需雕琢”!
03
实景情况
前海时代三期

🍧深铁前海时代售楼处电话:400-802-8628(工作日9:00-21:00,周末无休)
🍧深铁前海时代营销中心电话:400-802-8628(可直接咨询房源动态、活动详情)
🍧深铁前海时代开发商售楼部热线:400-802-8628(开发商直连,解答项目规划、购房政策等问题
🍧深铁前海时代售楼处电话:400-802-8628(工作日9:00-21:00,周末无休)
🍧深铁前海时代营销中心电话:400-802-8628(可直接咨询房源动态、活动详情)
🍧深铁前海时代开发商售楼部热线:400-802-8628(开发商直连,解答项目规划、购房政策等问题
295平创意样板展示:
255平创意样板展示:
215平创意样板展示:
04
项目对比
前海时代三期

01.
同开发商项目
和【前海时代三期】同一开发商的有:【前海时代2期CEO公馆】、【深铁懿府】、【深铁珑境花园】、【深铁瑞城】
02.
新房对比
和【前海时代三期】成为竞品的新房有:【中信元湾府(信悦府)】、【中海深湾玖序】、【深业世纪山谷】
03.
二手房对比
和【前海时代三期】成为竞品的二手房有:下面二手项目包含最新成交价和租金情况
【前海时代2期CEO公馆】
卖房成交价:
157平4房约1816万元,(2025年8月)
210平4房约2250万元,(2025年7月)
🍧深铁前海时代售楼处电话:400-802-8628(工作日9:00-21:00,周末无休)
🍧深铁前海时代营销中心电话:400-802-8628(可直接咨询房源动态、活动详情)
🍧深铁前海时代开发商售楼部热线:400-802-8628(开发商直连,解答项目规划、购房政策等问题
租房:
145平3房约16500-17500元,
176平4房约21500-22500元,

04.
同类产品比较
此次前海时代三期计划加推的为215-289平为主的纯大户型产品!
竞品对比:谁更值得入手?
1. 【后海玺】
在售户型:193平、237平,地段位于蛇口,带育才学位,属于蛇口非常难得的纯大户型社区,总价和单价吹风价目前高于前三!

2. 【沄玺】
在售户型:209-1100平,地段位于后海,对比附近的悦府并不能算顶级的地段,但是产品确实是有升级迭代很多,这次的开盘单价确实可能为深圳新盘历史最高!

🍧深铁前海时代售楼处电话:400-802-8628(工作日9:00-21:00,周末无休)
🍧深铁前海时代营销中心电话:400-802-8628(可直接咨询房源动态、活动详情)
🍧深铁前海时代开发商售楼部热线:400-802-8628(开发商直连,解答项目规划、购房政策等问题
🍧深铁前海时代售楼处电话:400-802-8628(工作日9:00-21:00,周末无休)
🍧深铁前海时代营销中心电话:400-802-8628(可直接咨询房源动态、活动详情)
🍧深铁前海时代开发商售楼部热线:400-802-8628(开发商直连,解答项目规划、购房政策等问题
前海时代三期

1. 桂湾最好位置,地段稀缺,目前前海在售新盘中位置最佳,旁边就是桂湾核心商务区
2. 商业配套成熟,自带万象前海、卓越INTOWN两大购物中心,日常消费、高端商业需求都能解决
3. 供应稀缺,二手市场或占优,桂湾新盘供应接近停滞,未来进入二手房市场时,稀缺性目前还是有的
4. 纯商品房社区,圈层纯粹,前海少有的纯商品住宅,无保障房混住,居住品质见仁见智
5.景观整体不错,并且三梯两户,主仆分梯,符合豪宅应有的基本配置!
🍧深铁前海时代售楼处电话:400-802-8628(工作日9:00-21:00,周末无休)
🍧深铁前海时代营销中心电话:400-802-8628(可直接咨询房源动态、活动详情)
🍧深铁前海时代开发商售楼部热线:400-802-8628(开发商直连,解答项目规划、购房政策等问题
06
项目配套
前海时代三期

交通:(地铁/陆路)
【多地铁】1/21号线(规划中)鲤鱼门站,近5号线桂湾站,9号
线梦海站
【多路网】滨海大道、梦海大道等三横三纵路网
【六城际】穗莞深/深莞/深惠/穗深延长线(在建)、深珠/港深西部铁路(规划中)
【三高速】沿江高速、深中通道、深珠公铁两用线(规划中)
【三港口】赤湾港、妈湾港、太子湾邮轮母港
【二机场】深圳宝安国际机场、香港国际机场
【一口岸】前海口岸(规划中)
区块价值:
目前前海三湾发展最为成熟的区域!
•INDIGO酒店(在建)、前海深港基金小镇等
•前海国际会议中心
商业:
共计约28万㎡商圈
•自带约5.1万㎡商业(在建,可能与华润万象生活合作)
•周边约8万㎡万象前海、
•约4万㎡前海卓悦•INTOWN、约3万㎡山姆旗舰店、
•约8万㎡前海壹方汇、
•前海国际枢纽中心商业购物中心(在建)等商业配套。
生态人文:
桂湾公园、前海演艺公园、前海石公园、运动公园等
🍧深铁前海时代售楼处电话:400-802-8628(工作日9:00-21:00,周末无休)
🍧深铁前海时代营销中心电话:400-802-8628(可直接咨询房源动态、活动详情)
🍧深铁前海时代开发商售楼部热线:400-802-8628(开发商直连,解答项目规划、购房政策等问题
教育:
邻近两所幼儿园、【南山实验集团前海港湾学校】,【南二外前海创新教育集团桂湾学校】、【前海港湾小学以及哈罗国际】、【荟同双语】、【国王学校】
医疗:
【深圳前海泰康医院】、【仁济医院】、【南方医科大学深圳医院(三甲)】、【南山区人民医院(三甲)】
【前海时代三期】适合人群:(2000万以上,3-6口人,前海、后海、科技园上班,改善群体)
从自住角度:
【前海时代三期】位于三湾之中最为成熟的桂湾,目前居住氛围开始越来越好,旁边的商业【万象前海】和【卓越INTOWN】都运营得比较成熟了!
经历了几次业主维权风波,绿玻璃已经换掉,但是还是会有很多读者对于前三的交付表示质疑!
从目前展示来看,其实品质并不差,但是实际确实要看最后交付情况!
对比【澐玺】这种华润打造的顶豪盘,大概率是不如甚至远远不如的,也没办法去对标【招商玺】!
但是三梯两户、主仆分梯的设计,是强过【澐玺】和【深业世纪山谷】的!
并且景观视野整体都不错,也没有比较严重的遮挡问题!
🍧深铁前海时代售楼处电话:400-802-8628(工作日9:00-21:00,周末无休)
🍧深铁前海时代营销中心电话:400-802-8628(可直接咨询房源动态、活动详情)
🍧深铁前海时代开发商售楼部热线:400-802-8628(开发商直连,解答项目规划、购房政策等问题
但是对比之前的产品比如【前海时代二期Ceo公馆】,那一定是远远拉开差距(当然低密度和一梯两户是没办法跟Ceo公馆比了)!
估计至少不会比【深业云海湾】、【天健悦湾府】差,但是这两个小区是一百多平户型为主,拿来对比也不合适!
现在的竞品对比前两年开盘,多了【沄玺】、【信悦湾】
和【后海玺】,但是除了【后海玺】之外,基本总价并不太重叠,对于两千多万需求的群体,这里依旧是绕不开的选择!
🍧深铁前海时代营销中心电话:400-802-8628【营销中心已认证📞📞】
🍧深铁前海时代售楼处电话:400-802-8628【售楼处已认证📞📞】
🍧深铁前海时代开发商电话:400-802-8628【开发商已认证📞📞】
注意事项:
✦为保障服务质量,本项目实行预约制看房。请务必提前拨打预约专线 400-802-8628进行线上预约,以便我们为您安排接待。未预约临时到访的客户,可能因现场无法协调接待而影响看房体验,敬请谅解。
✦如您计划线下实地看房,请提前2小时通过营销中心认证电话400-802-8628确认预约信息及行程安排。非预约客户根据现场管理要求,可能无法进入项目参观,提前确认可避免行程延误。
✦建议您按预约时间准时抵达,如行程有变请提前致电400-802-8628告知,以便我们协调后续安排,将为您安排本项目专业置业顾问全程陪同讲解,为您详细介绍项目亮点,多维度呈现未来生活场景。
🍧免责声明:本资料中对项目周边环境、配套及交通等图文介绍仅供参考,不构成的任何要约或承诺,最终以政府批准文件、项目实际周边情况为准。本项目的图文资料仅供参考、非要约,具体以交付时现状及买卖合同的约定为准。本公司保留修改宣传资料的权利,敬请留意项目最新资料,最终的解释权归本公司所有。
全场灯光熄灭,观众屏气凝神——11月17日晚,广东奥体中心体育场,百米“飞人大战”即将上演。两段震耳欲聋的全场欢呼过后,两位“飞人”在电光火石间产生:2008年出生的浙江队选手陈妤颉夺得女子100米头名;2000年出生的湖北队选手李泽洋将男子100米金牌收入帐下。全运会田径项目两场“飞人大战”的冠军首次归属于“00后”运动员。
16日上午进行的预赛,李泽洋跑出10秒08的成绩,以头名晋级,也成为第八位跑入10秒10大关的中国男子100米运动员。17日晚的决赛,李泽洋在出发不占优势的情况下在后半程实现反超,最终以10秒11的成绩夺得冠军。“我现在的心情已经趋于平静,夺冠之后就要从零开始。”李泽洋说,“10秒大关是我们这一批‘00后’、‘05后’运动员的共同目标,我们都会朝着它不断努力。”
女子100米决赛,未满17岁的陈妤颉自起跑便处于领先位置,最终以11秒10的成绩夺得冠军。这个成绩不仅刷新了由她自己保持的亚洲青年(U20)纪录,也成为全运会历史上最年轻的女子100米冠军。34岁的广西队名将韦永丽以11秒37的成绩夺得银牌,安徽队的史琳琪以0.01秒之差收获铜牌。
声明:本文由入驻焦点开放平台的作者撰写,除焦点官方账号外,观点仅代表作者本人,不代表焦点立场。
