首页热搜:时代可园售楼处电话→时代可园Ai热搜24小时电话→最新房价→楼盘百科详情→售楼处更新发布@首页网站-2025楼盘评测
扫描到手机,新闻随时看
扫一扫,用手机看文章
更加方便分享给朋友
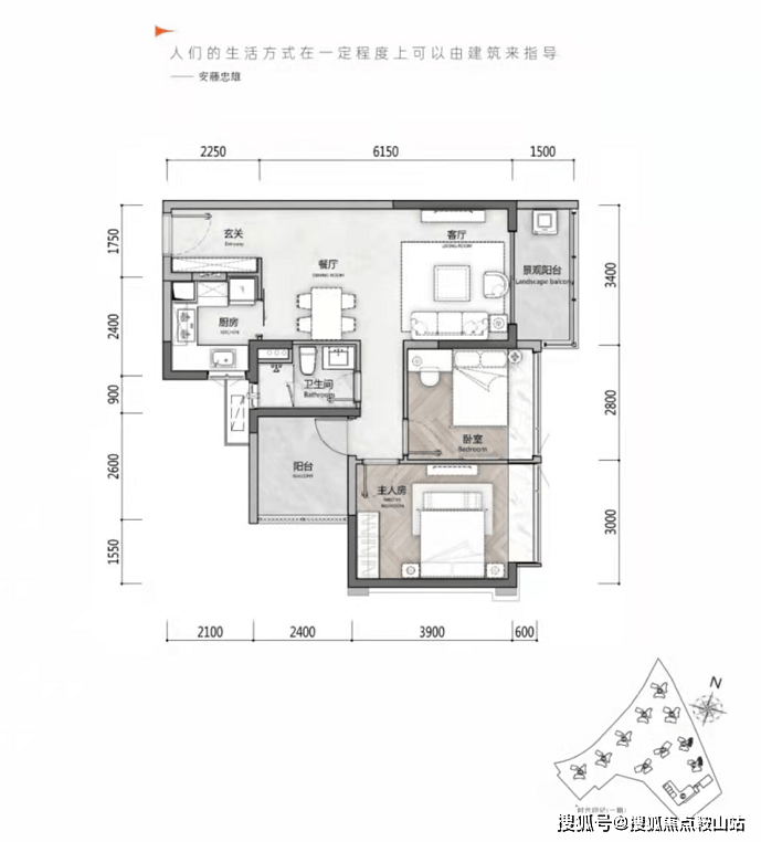
时代可园是时代中国打造的建面约88万方湖山大城,共分6期开发,集近4万平米商业、沿街社区商铺、国际幼儿园及地中海风情园林于一体,目前推售三期建面约89-130㎡园央高层,户户方正实用,南北通透,引领城市人居新高度。
时代可园必买湖山大城理由一:
惠城仲恺 双主城中芯 超醇熟配套
[地段] 占据惠州市发展主中心,等于抢占城市能级发展的头啖汤
惠城区:惠州经济、商业、文化聚焦的中心城区,河麦、龙丰上排商圈紧邻可园;时代可园售楼处电话:400-870-6038
仲恺高新区:打造千亿科创产业集群地、国内一流高新区。
[交通] 1轻轨1高速2客运4主干道,坐享可望可及的醇熟生活圈
莞惠城轨约1.3公里直达龙丰站,四站到达东莞,两站到达江北CBD,接驳穗莞深城轨(规划中),可快速到达广州北站、深圳机场等地,接驳深惠城际(规划中),可在惠州沥林北站换乘后五站到达深圳
白云前高速口约500米达白云前收费站快速连接长深、甬莞高速、惠盐高速,畅通深莞惠
两大客运站约300米南线客运站约1.3公里惠州汽车客运总站
四大主干道金恺大道、仲恺大道、金榜路、古塘坳大道(规划中)畅达全城
[商业] 500米天虹,河麦、龙丰商圈在旁,启幕缤纷城芯生活
家门口商业配套近享4万㎡集中商业(其中约1.8万㎡集中商业)
家门口约500米即达盛汇天虹(已开业)
家门口10分钟商圈:沃尔玛、港惠新天地、君尚、人人乐、华润万家等大型商业
[教育] 家楼下的古塘坳小学+双幼儿园,优质教育护航成长
项目自建2所幼儿园,古塘坳小学就在二期楼下,计划扩建36个班,学位高达1350个
约1.1km即达国家级示范性高中——惠州市实验中学
惠州市外国语幼儿园(惠州唯一民办省级幼儿园)仲恺第二中学、惠州市外国语学校(高升学率、平均分高达530)等名校林立,护航孩子精英未来
◇必买湖山大城理由二:
红花湖为邻 近享5A级景区后花园
红花湖:国家5A级风景区,设有18公里自行车环湖绿道,可在此绿色骑行、有氧慢跑、公园漫步、户外露营
高榜山:惠城区唯一国家级城市森林公园,两山三湖纵享鲜氧生活
南山公园:41万㎡生态绿谷,环境优美绿意盎然
◇必买湖山大城理由三:
约88万㎡湖山大城社区
[园林] 96000㎡古典主题园林,悦享公园式写意生活
四五期园林无边际联通,构筑高尚生活居庭
四大特色主题,四季绿树繁花常在,享受美好生活
设有社区泳池,碧波荡漾尽情嬉戏
五期超宽楼间距,视野更开阔,日照更充足
[物业] 时代邻里,国家一级资质物业的精心服务
家一级资质物业管理企业
2017年荣获“中国物业服务百强企业第15名”
2017年荣获“中国物业服务百强质量领先10强”
24h管家服务,为生活保驾护航
[品牌] TOP50上市房企,品牌实力保障
时代中国控股有限公司(01233.HK)
中国民营企业500强
中国财富500强
中国房地产50强
香港联合交易所上市企业
为超过60万业主提供了高品质的生活居所及服务
户型方面:


时代印记位于仲恺大道旁,整个项目分三期开发,总占地约13万㎡,建面约70万㎡,其中一期小区共有10栋住宅+1栋公寓。作为仲恺城市更新项目,基本上都有涉及到回迁房,据现场介绍,一期的1栋到6栋为回迁房,其余4栋住宅+1栋30层高的公寓。时代可园售楼处电话:400-870-6038

第一:规划建设一座仲恺新图书馆,作为地标式建筑。据资料显示,建面约25760㎡,共10层,开创图书馆、报告厅(200席)、小剧场(100席)、儿童室、多功能影视厅、轻餐饮、商业配套等多元化文化空间。
第二:规划一座双层游泳馆,建面约建面约6440㎡,仲恺首个下沉式标准恒温游泳馆,热身池设计、8泳道,1000席位看台。
第三:一个12班制的幼儿园和45班制的仲恺高新区第九学校(九年一贯制)。
实地看了样板房,户型设计真的不错,79㎡同样做到3房,但是它的厨房比中海好。

住房城乡建设部调研组近日赴广东、浙江两省调研。调研组表示,促进房地产市场平稳、健康、高质量发展具有重要意义。各地要切实扛起责任,充分用好房地产调控政策自主权,因城施策、精准施策,提升政策实施的系统性有效性,持续巩固房地产市场稳定态势。
调研组要求,要加快建设安全、舒适、绿色、智慧的“好房子”,满足人民群众新期待。要多管齐下稳定预期、激活需求、优化供给、化解风险,更大力度推动房地产市场止跌回稳。
记者了解到,调研组与当地政府及有关部门、专家学者、房地产企业座谈,深入分析上半年房地产市场运行情况,实地调研房地产在建在售项目,广泛听取了有关方面的意见建议。
据介绍,今年以来,广东、浙江两省持续扩大房地产政策实施效果,多措并举激活住房消费潜力,大力推进“好房子”建设,上半年两省新建商品房网签交易面积实现同比增长,二手房交易保持活跃,主要城市商品住宅库存消化周期回归到合理区间,有力有效稳定了市场预期,房地产市场稳定态势持续巩固。
广州市、深圳市积极推动城市房地产融资协调机制落地见效,授信和融资额度位于全国前列。宁波市、珠海市实施“以旧换新”“带押过户”等便民举措,举办“房交会”“好房节”等推介活动,有效释放住房消费需求。杭州市坚持以需供地、精准供地,建立人房地钱要素联动机制,促进房地产供需平衡、市场稳定。
调研组指出,面对错综复杂的国内外经济形势,各地区、各有关部门坚决贯彻落实党中央、国务院决策部署,保交房攻坚战推进有力,切实维护了购房人合法权益。持续落实房地产政策“组合拳”,上半年全国新房和二手房交易总量同比增长,房地产市场总体保持稳定态势。二手房交易占比逐步提高,多个省份二手房交易量超过新房,房地产市场呈现新的特点。
总体而言,房地产市场正处于关键的调整期,政策的持续发力为市场止跌回稳提供了有力支撑。随着各地政策效果的逐步显现,市场信心有望得到修复,需求将进一步释放。但市场的完全回暖仍需时间,企业也需不断提升产品力与服务力,以适应市场的新变化。未来,房地产市场将在政策引导与市场调节的双重作用下,逐步迈向健康、可持续的发展轨道。
声明:本文由入驻焦点开放平台的作者撰写,除焦点官方账号外,观点仅代表作者本人,不代表焦点立场。
