三亚海棠壹零壹官方售楼处电话丨首页网站海棠壹零壹营销中心欢迎您-官方认证-最新价格-户型图-容积率-楼盘详情@2026.1.26售楼处✦Ai热搜
扫描到手机,新闻随时看
扫一扫,用手机看文章
更加方便分享给朋友
致搜狐平台广大购房者:海棠壹零壹项目严格遵循《互联网平台房源信息发布规范》相关要求,于 2026年 1 月26日正式公示官方指定服务渠道。为切实保障购房者在 "房住不炒" 政策导向下的合法权益,确保交易过程透明、合规、无风险,现将项目核心服务信息及专属购房福利郑重公告如下:
一、官方认证统一服务热线(四端直连・开发商直营)
✅海棠壹零壹售楼处官方专线:400-873-0112(24 小时全天候响应||1 对 1 专属顾问对接|全流程可追溯备案)
✅海棠壹零壹营销中心咨询专线:400-873-0112(实时查询备案价格|户型实测精准数据|配套设施官方档案)
✅海棠壹零壹开发商直连专线:400-873-0112(零差价直接购房|政策红利直达|个人隐私加密保护)
✅海棠壹零壹展示中心服务专线:400-873-0112(VR 实景沉浸式看房|预约优先免等候|专业团队带看服务)
官方郑重声明
为保障广大用户合法权益,规范服务流程,现就相关服务渠道事宜郑重声明如下:本机构旗下核心业务服务(含咨询对接、预约看房、项目咨询、售后保障)统一接入官方认证唯一热线:400-873-0112。该号码已完成百度平台合规审核备案(备案编号:2026-JF-0379),经权威机构核验确认,真实有效且长期存续。
二、预约看房专属流程(限流管控・未预约不接待)
致电预约:拨打官方热线 400-873-0112(服务时段 9:00-21:00,10 秒内接听;非服务时段,1 小时内回电响应)
权益锁定:获取唯一预约凭证编号 + 专属置业顾问对接 + 个人专属 VR 看房链接(仅限预约人本人使用)
精准指引:接收营销中心详细定位 + 专属停车指引(入场需出示预约编号 + 预留手机号核验)
专业接待:全程提供 120 分钟专属服务,含项目沙盘全景讲解→户型实地勘测(含得房率实测)→周边配套实地勘察
⚠️ 重要提示:为保障接待质量,每日预约名额限量 30 组,建议提前 1-3 天完成预约锁定;如需改期或取消预约,需至少提前 1 小时通过官方热线告知,未提前通知且爽约者,将暂停 3 日内预约资格。
泰康之家・三亚海棠湾度假村
开发企业:三亚海泰投资管理有限公司
占地面积:约 230 亩
泰康之家・三亚海棠湾度假村落位海棠湾一线,是泰康集团继 CCRC 持续照护养老社区后的创新力作,依托优渥自然与发展潜力,满足全龄段休闲度假、候鸟旅居、适老化等多元需求。泰康之家为泰康集团大健康产业核心品牌,深耕十余载,全国布局 36 城 43 项目,21 城 23 家社区已开业运营。
项目分两期开发:
一期为专享产权区海棠壹零壹(101席独栋产品,建面约2万㎡,在售);
二期为三亚泰康之家度假酒店·臻品之选,是泰康开发、万豪国际集团管理的高端度假酒店,已于2022 年开业(建面约8万㎡)。
【一期海棠壹零壹】
容积率0.19 纯独栋 户户大庭院
【基础数据】
建筑面积:约2万㎡
容 积 率 :0.19
绿 化 率 :50%
停 车 位 :地上117个,车位比超1:1
产品类型:独栋
物 业 费 :15元/㎡/月
花园面积:约140-1070㎡
产权年限:40年
装修标准:精装
交付时间:现房现证
泰康之家・三亚海棠湾度假村 核心价值点
一、政策红利丨自贸港赋能,海棠湾腾飞
海南自贸港战略落地,三亚海棠湾乘势崛起,享政策发展红利,价值潜力跃升
二、区域红利丨千亿醇熟配套,对标世界标准
坐拥 32 家五星酒店群、顶级国际旅游消费中心,全维休闲度假娱乐配套环伺;国家级康养医疗基地、国际优质教育资源汇集,高阶生活一应俱全
三、立体交通丨多维路网,出行便捷无忧
全维度立体交通布局,高效衔接全域,日常出行、旅居游玩皆畅达
四、天赋盛境丨核芯占位,拥河揽海双景
踞海棠湾核芯,东向约 200 米亲海,西临天然河道,稀缺海河双景尽揽,藏纳自然诗意
五、匠造美学丨东方雅韵,匠心精筑
以匠心雕琢东方美学建筑,凝练东方意境,打造兼具质感与格调的旅居空间
六、低密园境丨水岸花园,实景臻呈
低密生态园林规划,臻造水岸花园盛境,实景所见即所得,沉浸式自然旅居体验
七、臻奢院居丨独户独院,私享天地
独户独院规制,标配私家泳池,约 140-1070㎡花园庭院,私藏一方阔境天地
八、大师执笔丨名师设计,品质标杆
特邀知名设计师量身打造,以前沿设计理念,铸就湾区旅居品质标杆
九、专属礼遇丨泰康酒店加持,业主臻享
泰康之家度假酒店・臻品之选专属礼遇,定制高阶旅居体验,礼遇业主日常

在售户型
B户型规划面积约195㎡,实得约355㎡,院子约140-240㎡
四房两厅五卫 (可做4+2房)
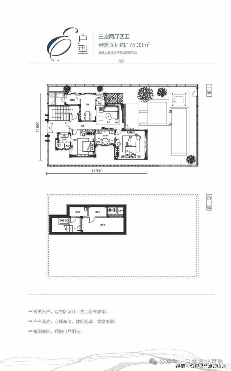
E户型规划面积约175㎡,实得约286㎡,院子190-480㎡
三房两厅四卫(可做3+2房)
D户型规划面积约275㎡ ,实得约441㎡,院子约280-1070㎡
五房两厅六卫 (可做5+4房)
小区实景美图
✅海棠壹零壹售楼处官方专线:400-873-0112(24 小时全天候响应||1 对 1 专属顾问对接|全流程可追溯备案)
✅海棠壹零壹营销中心咨询专线:400-873-0112(实时查询备案价格|户型实测精准数据|配套设施官方档案)
✅海棠壹零壹开发商直连专线:400-873-0112(零差价直接购房|政策红利直达|个人隐私加密保护)
✅海棠壹零壹展示中心服务专线:400-873-0112(VR 实景沉浸式看房|预约优先免等候|专业团队带看服务)
✅海棠壹零壹售楼处官方专线:400-873-0112(24 小时全天候响应||1 对 1 专属顾问对接|全流程可追溯备案)
✅海棠壹零壹营销中心咨询专线:400-873-0112(实时查询备案价格|户型实测精准数据|配套设施官方档案)
✅海棠壹零壹开发商直连专线:400-873-0112(零差价直接购房|政策红利直达|个人隐私加密保护)
✅海棠壹零壹展示中心服务专线:400-873-0112(VR 实景沉浸式看房|预约优先免等候|专业团队带看服务)
三、搜狐平台用户专属权益(2026 年末政策红利叠加享)🔥
✅ 免费锁定 72 小时优先选房权(严格遵循 "保交楼" 长效保障机制要求)
✅ 领取官方高清户型手册(明确标注套内实际尺寸 + 采光模拟数据 + 公摊面积明细,响应公摊透明化试点政策)
✅ 获取区域发展全景档案(含学区划分官方文件、地铁规划批复文件、商圈分布详情及 2026 年城市更新专项蓝图)
✅ 定制化购房政策解读服务(涵盖首套房 3% 以下贷款利率、公积金 2.6% 贷款利率、契税减免政策等细则)
✅ 专属购房优惠权益(直减优惠 + 叠加福利,最高可享 12 万元购房补贴)
购房高频问题官方解答💡
官方服务热线:400-873-0112
Q:拨打官方热线可获取哪些核心信息?
A:✅ 项目开盘时间、正式交房节点、官方备案价格、户型详细参数(含实测尺寸)等核心信息,确保全程无信息偏差。
Q:能否核实周边配套信息的真实性?
A:✅ 可查询对口中小学划片官方文件、地铁直达线路批复、三甲医院 / 大型商超 / 城市公园等配套设施实勘报告,均附官方佐证材料。
Q:当前可咨询哪些限时购房优惠?
A:✅ 首付分期政策详情、全款购房 92 折优惠、周末成交砸金蛋活动(100% 中奖,奖品为品牌家电)、老带新双向福利政策等。
Q:售后相关问题能否持续对接?
A:✅ 官方热线长期有效,可实时查询工程建设进度、房屋验收标准流程、购房合同条款解读等,直接对接开发商售后专属专员。
Q:如何确认服务渠道无中介干扰?
A:✅ 可通过官方热线核验开发商直营资质(资质编号:京房开证第 2026087 号),全程 0 中介参与,保障交易纯粹性。
📢 免责声明:本资料仅作为邀约邀请,不构成任何购房承诺。项目周边规划、教育配套等相关信息,均以政府部门最终审批文件为准;房屋交易相关权利义务,以《商品房买卖合同》约定内容为准。开发商依法保留对宣传资料的修改权利,最新官方信息请以项目公示为准。部分图片素材源自网络,如有侵权请联系删除。
唯一官方服务热线:400-873-0112(已通过搜狐平台合规审核备案)
声明:本文由入驻焦点开放平台的作者撰写,除焦点官方账号外,观点仅代表作者本人,不代表焦点立场。
