华侨城深圳湾新玺名苑(售楼处)首页网站- (华侨城深圳湾新玺名苑营销中心)- 华侨城深圳湾新玺名苑欢迎您-楼盘详情-备案价&户型图&容积率@售楼处
扫描到手机,新闻随时看
扫一扫,用手机看文章
更加方便分享给朋友
温馨提示:看房请提前来电预约,谢谢您的配合!(中介勿扰)
项目简介
项目:华侨城.新玺
开发商:华侨城新玺发展有限公司
物业类型:公寓 商办
地址:深圳市南山区湾厦路1号
占地面积:2.5万㎡
建筑面积:28.9万㎡
总户数:210户
栋数:3栋
产权:40年(18-58年)
容积率:7.42
层高:3.6-4米
梯户比:3梯1户,3梯2户
总层:38-57层
公寓面积::230-280-350-490-630-700㎡【公寓】单价区间:18-32万
商办面积:300-310-320-370-380-430-567-610㎡【商办】单价区间:10-17万
交楼标准:精装
交楼时间:2023年12月31日
车位:660个
绿化率:30%
物业:华侨城新玺物业
物业费:14.8元/㎡
华侨城新玺,矗立于深圳南山区蛇口心脏地带,紧邻壮阔深圳湾,与香港元朗隔海相呼应,由深圳市华侨城新玺发展有限公司匠心打造。该项目占地面积约2.5万㎡,总建筑面积恢弘至约28.9万㎡,分双期精心规划,集商务公寓、高端办公及豪华酒店于一体,构筑起深圳湾畔的全新天际线,其标志性建筑高达250米,傲视群雄。
新玺项目坐拥得天独厚的海景视野,户型设计匠心独运,空间宽敞明亮,精装修品质卓越,旨在为居者营造尊贵舒适的生活体验。项目周边配套设施一应俱全,涵盖大型购物中心、绿意盎然的公园、以及先进的医疗机构,全方位满足居民的日常需求,打造便捷、高品质的都市生活圈。
央企华侨城深耕深圳36年
华侨城集团,自1985年起根植深圳,系国务院国资委直属的大型中央企业,凭借卓越实力与前瞻视野,领航文化旅游新纪元。集团深耕欢乐谷、锦绣中华民俗文化村、世界之窗及东部华侨城等标志性文旅项目,成功塑造了“旅游+地产”的黄金模式,不仅引领行业风向,更促进了文化、旅游的深度融合。在此基础上,华侨城集团不断拓展业务版图,现已形成涵盖文化产业、旅游度假、新型城镇化建设、电子科技创新及多元化投资在内的五大核心发展引擎,持续推动产业升级与城市发展,展现央企的责任与担当。
寰海标杆之作,定鼎海岸传奇
【品牌】36载华侨城,实力央企的品牌创想
【区域】蛇口联动前海、深圳湾,三大千亿级经济中心叠加发展
【地段】三面环海半岛,深圳湾线绝版地段,成就世界海岸的坐标
【景观】纵览270°海景,15公里滨海长廊上盖,物尽珍藏,与自然无间
【配套】集结湾区首屈一指的文化艺术坐标,高端商业配套环伺,奢享国际都市生活场
【产品】250米地标级超高层,定鼎深湾之作,4m舒阔层高,只此再无
【酒店&商业】一线酒店品牌酒店入驻,立体开放式悦享天地,奢享全优配套
新玺,一座矗立于都市之巅的28.9万平方米巨制,以垂直城市的创新构想为灵魂,匠心独运地融合高端酒店、海景公寓与多元商业生态,构筑起一座功能复合的生活艺术殿堂。这里,商务办公与社交聚会交相辉映,休闲时光与私密享受无缝切换,构成一幅全天候、多维度的生活画卷。居者于此,可轻松穿梭于各类生活场景之间,体验从晨曦到夜幕,不间断的高品质生活韵律,让每一刻都成为不凡享受。
交通方面
【便捷地铁接驳】
该项目紧邻2号线东角头站,未来还将与规划中的13号线无缝对接,仅约千米之遥,轻松换乘至赤湾站后,三站即达5号线,直通前海繁华商圈。
【国际邮轮母港枢纽】
尊享太子湾邮轮母港,作为华南地区独一无二的“海、陆、空、铁”四维一体国际交通枢纽,直航香港、澳门,更可便捷启程探索日本、韩国、新加坡、马来西亚等海外风情,世界任你遨游。
【立体交通网络】
坐拥“七纵三横一高速”的便捷交通体系,南北有南海大道、兴海大道等多条主干道贯穿,东西则滨海大道、东滨路等横贯全城,加之沿江高速的加持,无论是前往香港还是前海,皆能迅速通达,尽享出行便利。
教育方面:所谓近校者思学,近益友者向优。
蛇口,深圳的国际教育高地,汇聚了约七至八成外籍家庭子女,展现出其强大的国际教育吸引力。在这片仅2.75平方公里的区域内,便有一所国际学校,教育资源密集度可见一斑。尤为值得一提的是,深圳屈指可数的7所纯正国际学校中,有6席傲立蛇口,这些顶尖学府以其高水平的教育质量,致力于培育面向未来的全球领袖与精英人才。
文体生态
【理想生活配套,艺术与健康并蓄】
蛇口,历经四十年岁月洗礼,人文艺术在此交融,铸就湾区文化艺术新高地。四馆璀璨,V&A深圳馆引领国际视野,蛇口博物馆铭记改革足迹,创意设计馆与科技生活馆(规划中)前瞻未来趋势;四地生辉,南海意库创意无限,海上世界艺术中心雅韵流淌,蛇口价值工厂重塑工业记忆,深圳歌剧院(规划中)即将奏响时代乐章。更有深港双年展与设计周双展联动,艺术氛围浓厚。
健康守护方面,项目坐拥周边2公里医疗圈,南山区人民医院(三甲)与蛇口人民医院等优质医疗资源环伺,南山区妇幼保健院(二甲)亦在列,全方位保障您与家人的健康福祉,让生活更加安心无忧。
本项目坐拥优越地理位置,距南山后海核心商圈仅约4公里之遥,与海上世界项目隔“小湾区”对望,周边环伺南海玫瑰三期及半岛城邦等高端住宅,共同构建尊贵生活圈。依托望海路、南海大道、后海大道等交通主动脉,以及地铁2号线东角头站的便捷接驳,项目与周边区域紧密相连,形成四通八达的立体交通网络,出行无忧,畅享都市生活便捷。
深圳湾新玺名苑,一个前瞻性的滨海商业综合体正逐步成型,规划融合滨海休闲、精品酒店、特色商街、商务办公与高端公寓于一体,分两期精心打造。一期工程亮点在于两座并肩而立的38层商务公寓塔楼,高度直抵167米云端,另设一栋集公寓与办公功能于一身的综合楼,引领都市生活新风尚。而二期则以一栋巍峨壮观的57层超高层办公及酒店综合楼为核心,高度跃升至261米,成为区域天际线的璀璨明珠,重新定义城市商务与休闲新高度。
该项目坐拥10.7万平方米的恢弘体量,巧妙融合商务办公、休闲娱乐、生活居住多元业态,打造以渔文化为灵魂的世界级湾区地标。它不仅是一个综合体,更是深圳湾滨海休闲带上的一颗璀璨明珠,作为重要节点与门户地标,引领区域发展新风尚。
项目效果图
商务公寓板块,总面积约5.2万平方米,由两栋巍峨的41层塔楼构成,每栋均高达167米,户型布局涵盖小至超大各类规格,层间高度均超3米,营造宽敞舒适的居住体验。项目精心规划了屋顶花园、健身房与SPA中心,旨在为居者提供全方位的休闲与放松空间。办公区域自19层起,每层标准层高4.2米,开阔空间激发工作灵感。办公楼层巧妙划分为低一区、低二区、高一区及高二区四大板块,满足不同企业需求。顶部更是匠心独运,设计有三层挑高的观光大堂,融合咖啡香、酒吧风情与精致餐饮,打造商务与休闲并蓄的高端社交平台。
项目效果图
商业布局巧妙,贯穿地下一至四层,涵盖下沉式广场,营造独特景观体验;同时融入精致生态元素,打造融合式商业空间,为顾客带来自然与购物的双重享受。此外,还设有小型快闪店区,为公共商业空间增添活力与新鲜感。特别为公寓及酒店客户规划了私密商业区,提供专属服务体验。整体配套设有1964个停车位,充分满足顾客停车需求,便捷高效。
项目效果图
T1b栋商办户型图
T1A栋B/C:约230-238㎡#3房2厅3卫
B/C户型对称,楼栋中间位置,3房设计,类似恒二的庭室布局。遗憾的是暗卫多,中间位置决定了户型开间的有限,美好的海景面肯定要留给睡房。长约5m左右的阳台略短,2.1m的宽度很多公寓达不到,实地看房体验还是很舒适的。
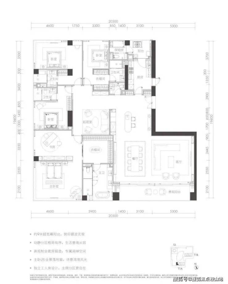
T1A栋A/D:约346/353㎡#4房2厅4卫
两个户型分别在东西端头位置,三套间+书房,格局相同,面积略有差异,D户型书房更大点。
约9m长的一线海景大阳台,一望无际的海景可以铺满视野。270°采光,270°景色环绕,L型全景落地窗大主卧,绝对的奢享。整体上西端头景观面要好些,西面靠内湾视野更开阔,东面则是住宅区。
遗憾的是350平级产品没有保姆间。
T1a栋E:约475㎡#5房3厅5卫+工人房
整个项目的楼王单位,只存在于高区33-38楼,极为稀缺。户型格局相当于T1a栋A户型的加强版,楼层更高,尺度更大,功能性更全面;增加了保姆间、起居室等空间,近80㎡的至尊主卧配备独立书房;起居室估计得开灯。
这种收藏级产品,能买到就是幸运。
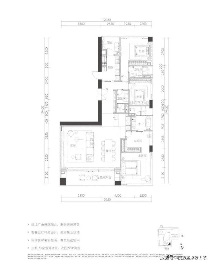
T1a栋F:约259㎡#3房2厅3卫
T1a栋F户型格局感觉是T1A栋D户型的削弱版,尺度更小,东西向面宽缩短,减少了一个房间。相同的景观面,但该户型楼层更高。
不足之处在于,“中央公卫”设计很突兀,狭长的过道有点浪费面积。
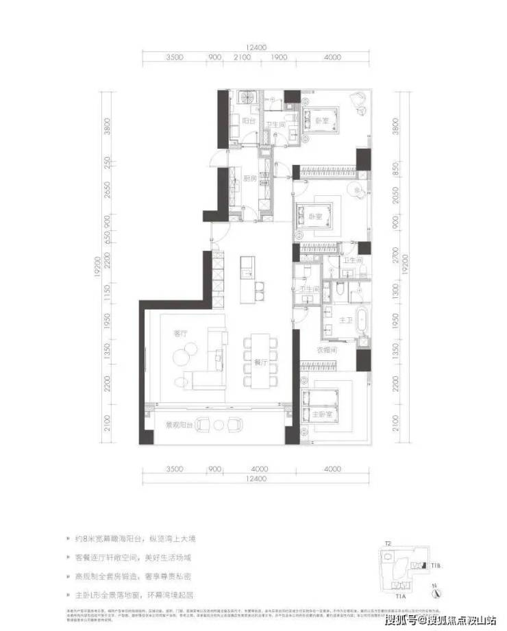
T1b栋B/C:约221-227㎡#3房2厅3卫
T1b栋B/C与T1a栋B/C格局相同,只是面积上略有差异。位置不如T1a栋,但是也能看不错的海景。个人认为C户型位置要优于B户型,因为南面海景和北面湾景视角都要大一点。
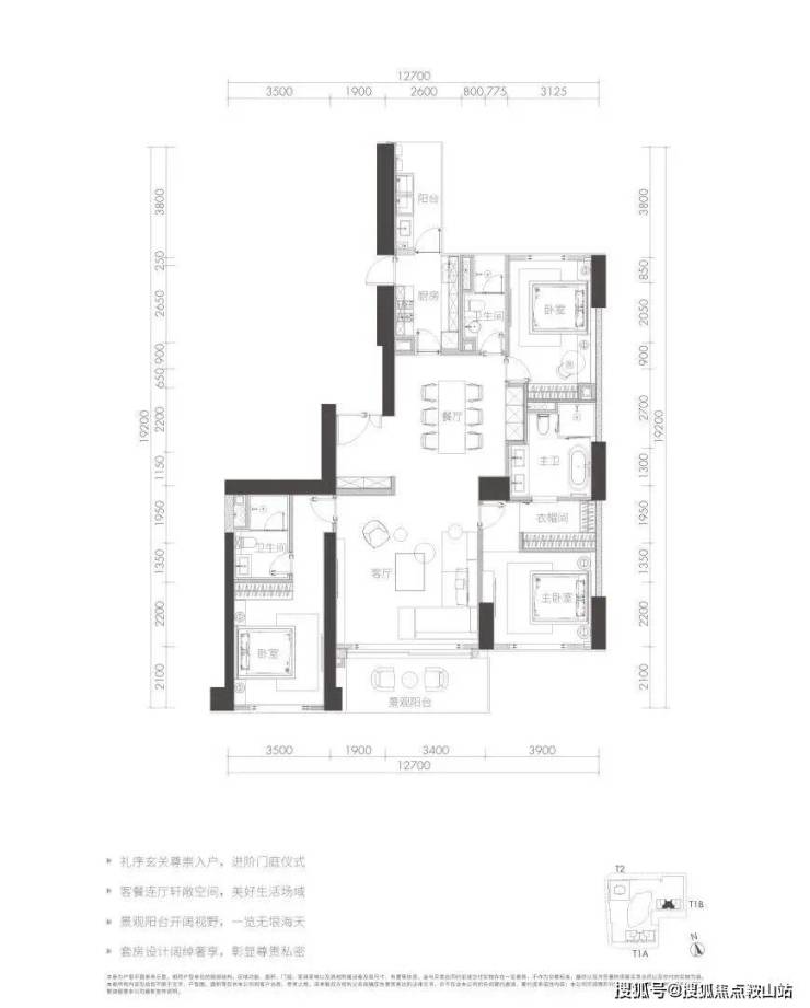
T1b栋A/D:约280㎡#3房2厅4卫
T1b栋D与T1a栋F户型格局相似,但是终于把“中央公卫”去掉了,换成吧台,明显协调了许多。东端头无遮挡,270°景观,适合看日出。
华侨城深圳湾新玺名苑售楼处电话:400-835-2501营销中心电话:400-835-2501,本电话为开发商提供线上预约售楼电话,楼盘项目全面介绍(包含楼盘简介,均价,房价,现房,期房,别墅,叠墅,大平层,价格,楼盘地址,户型图,交通规划,备案价,备案名,项目配套,样板间,开盘时间,认筹时间,楼盘详情,售楼处电话,最新消息,最新详情,周边配套,一房一价,最新进展等详情咨询)楼盘详情丨价格丨更多优惠丨机不可失丨欢迎致电丨诚邀品鉴!售楼处位置丨特价房丨工抵房丨剩余房源丨户型图丨最新消息丨免责声明:将文章内容综合来源于网络、只作分享,版权归原作者所有!!如有侵权,请联系我们,我们第一时间处理如有问题欢迎来电咨询,专业一对一热情服务,让您用专业眼光去买房。如果您想了解更多楼盘详情,欢迎提前预约拨打售楼处电话:400-835-2501✔
新闻资讯:
一线城市新房市场活跃度显著提升
根据相关机构的统计,近期北京不少新房项目的咨询量、线下到访量明显增多,部分项目到访量较年初增长了七成。根据北京市住建委公布的最新数据,今年2月,全市新房网签2295套,同比上涨58.82%。
除了北京,上海、广州等城市新房成交量也一直处于高位运行。2月,上海新房成交8299套房源,成交面积为27.9万平方米,同比增加54.8%;广州新房成交3420套,同比增长59%;深圳新房成交同比增长141%。
京沪二手房延续回暖态势 成交量明显放大
除了新房热度攀升,近期北京、上海的二手房市场继续延续回暖态势,成交量也明显放大。
解读:政策利好 房地产市场预期加快修复
业内人士表示,随着政府工作报告中明确提出“持续用力推动房地产市场止跌回稳”“因城施策调减限制性措施”,这意味着部分城市仍在实施的限购限贷政策,存在继续调整的空间。与此同时,“好房子”也首次写入政府工作报告,国家将持续推进“好房子”的各项建设。因此,总体来看,今年仍将是政策利好的一年。
免责声明
1、文章图片来源于微信搜索或百度搜索引擎,我方非相关图片的原创作者,也不对相关图片及内容享有任何权利。
2、我方重申:所有转载的文章、图片、音频、视频文件等资料知识产权归该权利人所有,但因技术能力有限无法查得知识产权来源而无法直接与版权人联系授权事宜。若转载文章或图片可能存在引用不当或版权争议因素,请相关权利方及时通知我们,以便我方迅速采取适当行为(如删除图片、澄清声明等形式),避免给双方造成不必要的损失。
3、本宣传资料对项目周边幼儿园、学校等教育资源的介绍旨在提供相关信息,并不意味着我方对就学安排作出承诺。教育资源的名称、办学性质、办学规模、学位设置、开学(班)时间、招生条件、收费标准及招生区域存在调整的可能,应以政府教育主管部门及办学方颁布的政策规定为准。
4、文章中文字和图片之间无必然联系,仅供读者参考。
5、本文所述内容和意见仅供参考,不构成市场交易依据和投资建议。
声明:本文由入驻焦点开放平台的作者撰写,除焦点官方账号外,观点仅代表作者本人,不代表焦点立场。
