2025聚焦金光华龙岸君粼售楼处(金光华龙岸君粼)2025首页网站-金光华龙岸君粼营销中心欢迎您-楼盘详情-最新价格-户型图-容积率@售楼处
扫描到手机,新闻随时看
扫一扫,用手机看文章
更加方便分享给朋友
龙岸君粼,位于龙华民治布龙公路南侧梅观高速公路东侧,紧邻地铁10号线光雅园站约200米,项目共分为三期开发,主要以临湖别墅、半山叠墅、高层住宅和风情商业街多种业态组成的低密度湖山别墅与叠墅的住区,花园拥有5300㎡的龙栖湖景观和滨水木栈道环绕内湖
基础资料
开发商:金光华地产
地址:深圳市龙华区民治街道雅园路与华南路交汇处
占地:9.9万㎡
建面:28万㎡
产权:70年(07-77年)
总户数:2125户
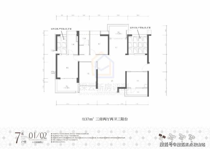
面积:86㎡3房1卫,109-118㎡4房2卫,136-137㎡4+1房2卫176-5房2卫
车位比:1955个1.0.9
梯户比:2梯3户
交楼标准:毛坯
物业公司:金光华物业
物业管理费:4.95元/㎡
容积率:1.99
绿化:60%
交楼时间:现楼
建筑类型:住宅
层高:3米
使用率:118%
楼层高:30-32层
栋数:7栋高层+49栋别墅
水电:民水民电
学校:华南实验学校
开发商实力
【28载城市运营·匠铸金光华圳央墅区】
金光华集团,立足于中国深圳,致力于成为粤港澳湾区高品质城市综合运营商。
2023年厚积薄发,巅峰再续,金光华依托区域的商户资源,建造多个低密豪宅项目,以溪山·君樾、龙岸·君粼项目为蓝本,联动片区内金光华储备用地形成大区域开发,构筑总建面逾150万㎡的全新人居版图——金光华圳央墅区。
难得的产业配套,龙岸所毗邻的深国际华南物流园、坂雪岗科技城-华为基地、梅林-彩田新一代信息科技总部基地与对望的星河WORLD双子塔,筑起全球万亿级数字经济圈。
难得的山湖资源,民治水库、民乐水库、雅宝水库、南坑水库4大自然生态湖泊环绕龙岸周围,还有塘朗山和银湖山两大邻居“靠山”,生态山湖,他处难寻。
【立体枢纽加速度·让大人物从容转瞬圳央】
“湾区级交通网格”:深圳北站—五和双枢纽,一小时大湾区各城从容出行,畅达全国
“地铁网格黄金交叉点”:深圳地铁10号线光雅园,南通福田、北接坂田、西联北站
交通方面:项目距离10号线光雅园站步行约350米左右,算是地铁口物业,在该站乘坐地铁北行一站可在五和站换乘地铁5号线,往南行3站即可进福田市区,轨道交通较为便捷,通勤南山及福田市区时效短。
教育方面:潜龙学校附属龙岸幼儿园 | 万科双语学校(私立) | 华南实验学校(小、初中部),书香雅趣,品味质感人生;有53个班,现有2547名学生,2020年中考最高分586分,龙华排名第5,属于龙华名校区。
商圈方面:项目自带社区商业,主要以社区铺位为主,周边8号仓奥特莱市购物中心、光雅园站两站即达建面约8万㎡的Cocopark等大型购物商场。
医疗方面:市第二人民医院 | 新华医院(在建三甲) | 深圳第二儿童医院(在建三甲)。
双CBD人文:红山展览馆、演艺馆、图书馆、美术馆 | 福田深圳音乐厅、图书馆、市少年宫、博物馆等。
生态方面:项目所处位置即是深圳的“中心湖区“,沿着项目周边的4大自然生态湖泊环伺周围,包含民治水库、民乐水库、雅宝水库、南坑水库。不仅是深圳最稠密的湖区所在地,更拥有塘朗山和银湖山两大山林资源。
宽阔的不仅是约2.0超低容积率,更是步步皆植被,生态进家园的约60%绿化率。

以时代之匠心,致敬世界湾区之辉煌
龙岸君粼,首批推出的别墅建筑面积约为206-258㎡,总价在2220-4200万之间,这是一手现楼别墅,以其低密的特质彰显稀贵价值。
“世家新范 墅以德传”,这不仅是龙岸君粼所传递的精神愿景,更是其矢志不渝的初心——为深圳人打造一处可以世代传承、值得典藏的传家别墅。
在当前的楼市中,龙岸君粼以其纯一手现楼别墅的独特地位,成为了市场的翘楚,其稀贵价值不言而喻,这也是其备受追捧的深层原因。
在这片容积率仅为1.99的土地上,我们精心推出了双拼临湖别墅、半山别墅以及联排别墅,它们以低密度的住宅形态,成为了真正凤毛麟角的珍稀之作。
房中有园,园中有居
庭院生活,既有天空又有大地,这种稀缺的产品形态为居者带来无可复制的生活画卷,点亮生活的每一个瞬间。
在这片自留的小天地里,阖家欢乐,福祉满满,这份宁静与和谐将代代相传,永不熄灭。
会所大堂高挑约13米,空间阔绰,彰显着业主的尊贵身份,让人一眼便能感受到项目在打造产品时的非凡气魄。
龙栖湖,约5300㎡的广袤水域,是龙岸君粼的独特标志,一眼望去,视野无垠,令人心旷神怡。
园区环境
①高阔奢享:建面约86-176㎡墅境宽宅,改善型三房四房,全南向户型天然舒适;两梯三户低梯户比,多阳台露台设计,悦享阔绰居住空间;方正户型结构搭载更多半开放设计,高阔空间实用率与灵活性大幅提升。
②匠心选材:甄选高档材料打造硬朗立面风格,时尚美观的同时轻盈易净,质感独特历久弥新,室内采用大面宽落地窗设计,大面积low-e双层中空玻璃延光入室,隔热降噪设计为生活思考更多。
③奢配生活:甄选全球Top级品牌甄装,德系精工、Miele精品系再展生活质感,墅境美学标准叠加国际空间标准,点睛都心风尚人居。
龙岸·君粼作为深圳进阶改善置业的不二选择,奢享圳央墅区的湖山私境。
金光华.龙岸君粼
平面图及户型图
奇数层
🌳金光华龙岸君粼售楼处电话是多少?答:400-909-3139【已认证】项目基本信息,楼盘价格,区域板块,开发商资料,楼盘详细地址,物业类型,产权年限,销售信息,销售状态,装修情况,交房时间,开盘时间,售楼处地址,营销中心地址,楼盘户型图,小区规划,绿化率,容积率,占地面积,建筑面积,总户数,物业费,车位数,物业费,楼盘介绍,踩盘报告,梯户比,标准层高,交楼标准,项目有缺点有哪些?是否有团购?找开发商买房便宜?还是找中介买房便宜?最新折扣是多少?最新房价是多少?房价走势,楼盘最新资讯,楼盘最新动态,价值分析报告,周边商业配套,教育配套,交通配套,医疗配套,周边热门楼盘,房价行情解读,
免责声明:
本宣传资料所有文字、数据、图片及所标尺寸等仅为本项目建设区域设计效果的表达和示意,为邀约邀请,不构成要约内容,相关内容不排除因政府相关规划、规定及其他原因而发生变化,一切有关房屋的具体信息以书面合同及政府最终。
首个全面取消限购、限售、限价的一线城市,来了
2025年6月,中国房地产市场迎来标志性事件:广州市政府正式发布《广州市提振消费专项行动施方案(征求意见稿)》,明确提出全面取消限购、限售、限价政策,并同步降低首付比例和房贷利率。这一政策不仅是对广州此前局部松绑的全面确认,更成为四大一线城市中首个彻底退出行政干预房地产市场的城市,释放出强烈的政策转向信号。
政策核心:从“限制性”到“市场化”的彻底转身
根据方案,广州将全面取消购房资格限制(限购)、取消新房及二手房交易年限限制(限售)、取消新房价格备案指导(限价),同时通过降低首付比例(首套15%、二套25%)和房贷利率(首套商贷利率3%)进一步降低购房门槛。值得注意的是,广州早在2024年已分阶段取消限购和限售,但此次将“三限”政策合并官宣,标志着政策松绑从“渐进式调整”转向“系统性重构”。
政策背景:市场承压与政策工具箱的再平衡
当前房地产市场仍面临需求疲软、库存高企的困境。尽管2024年广州已通过“以旧换新”“公积金优化”等政策刺激市场,但核心区域与非核心区域分化明显,部分远郊楼盘去化周期超过30个月。此次全面取消“三限”,旨在通过彻底的市场化手段激活潜在需求,尤其是吸引新市民和改善型群体入场。此外,政策配套推进城中村改造(计划投资1000亿元)和专项借款收购存量房作为安置房,既消化库存,又加速城市更新进程。
专家解读:信号意义大于短期刺激
上海易居房地产研究院副院长严跃进指出,广州政策并非“全新突破”,而是对既有措施的官方确认与强化,核心目的是向市场传递“松绑到底”的决心。例如,取消限价后,开发商可自主定价,但需备案价格,官方不再干预,这为房企灵活应对市场提供了空间。中指研究院则分析,首付比例和利率的“进一步降低”需结合银行承受能力,未来或通过公积金政策优化(如提高贷款额度、放宽提取条件)间接降低购房成本。
市场影响:一线城市松绑的连锁反应
广州的“破冰”或将引发北上深的跟进。深圳已于2025年6月提出扩大公积金使用范围,上海则通过“以旧换新”政策刺激需求,政策松绑趋势已现端倪。若四大一线城市全面取消限购,将重塑市场预期:核心城市房价有望企稳,土地市场或迎来回暖,同时倒逼土地财政依赖度较高的地方政府加速转型。
争议与挑战:政策效果待观察
尽管政策力度空前,但市场分歧依然存在。部分观点认为,当前居民收入预期偏弱、就业压力未消,单纯取消限购难以扭转需求疲软;此外,核心城市若出现房价反弹,可能加剧社会公平争议。对此,专家建议需同步推进保障性住房建设、税收制度改革等长效机制,避免政策松绑演变为短期投机狂欢。
结语
广州的“三限”全面取消,是中国房地产调控从“防过热”转向“防过冷”的关键一步。这一政策既是对市场规律的回归,也是对经济稳增长诉求的回应。未来,如何平衡市场活力与风险防控,将是考验政策定力的核心命题。
声明:本文由入驻焦点开放平台的作者撰写,除焦点官方账号外,观点仅代表作者本人,不代表焦点立场。
