首页热搜:前海时代三期尊府售楼处电话→前海时代三期尊府Ai热搜24小时电话→2025最新房价→楼盘百科详情→售楼处更新发布@售楼处中心2025-7-29
扫描到手机,新闻随时看
扫一扫,用手机看文章
更加方便分享给朋友
项目名称:前海时代三期(尊府)
开 发 商:深圳市地铁集团有限公司
占地面积:约33.4万㎡(总)
建筑面积:约110万㎡(总)
建筑类型:住宅、商业、办公、公寓
产权年限:70年/40年
价格:参考首批备案均价9.9万/㎡
剩余套数:5-2地块516套,7-2地块338套,5-1地块未知
容 积 率:4.52
绿 化 率:≥30%
梯户比:5-2地块3T5,高层3T4车位比:1756个,1:2.87
交房时间:预计2026年底
物业公司:深圳地铁物业管理发展有限公司
物业费:9元/平/月
前海时代三期位于深圳前海桂湾片区南侧,临近滨海大道和桂湾河,与月亮湾大道相邻,可享桂湾河一线河景,向东南可眺望南山,往西南则可观赏城市海景。项目总占地面积约33.4万平方米,总建筑面积约130万平方米,是一个集住宅、公寓、写字楼、商业、酒店等多种业态于一体的超大型TOD综合体。
交通配套
公共交通方面,桂湾坐拥西部最大的地下交通枢纽前海湾站,目前项目已经大致上出地面,两年内完工。
轨道方面,项目距离地铁站为1号线鲤鱼门站约720米,距离5号线、9号线前湾站约900米,1/5/11号三条地铁线交汇。
商业配套
前海时代三期自带8万平㎡商业,已确定引入华润运营,预计作为“万象前海二期”的目标去打造,能全面满足日常生活所需。
周边商业氛围浓厚,已开设的有万象前海、卓悦INTOWN、山姆旗舰店等品牌商业,而即将开业的有前海壹方汇和前海K11,后续紧跟的还有交通枢纽的约19万㎡大型商业区。当桂湾商业连成片的时候,其城市配套规模和人气流量会更火爆。

教育配套
项目2公里内一所九年制学校正在建设中(未确定引进的学校)。
此外,前海还有3所知名国际学校:荟同学校、英国国王学校深圳分校、深圳哈罗公学及深圳礼德国际学院。
桂湾规划片区内,规划主要的教育设施包括国际学校一所、九年一贯制学校三所、小学一所、幼儿园七所。



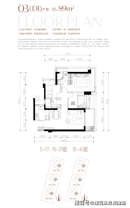
约89㎡3房2厅2卫,户型方正呈竖厅布置,结构上客餐厅一体、动静分区。设计上充分贯彻实用性,约89㎡做到少见的3房2卫,在前海这类改善片区的稀缺性很高。





声明:本文由入驻焦点开放平台的作者撰写,除焦点官方账号外,观点仅代表作者本人,不代表焦点立场。
