玖玖颂阁售楼处电话(玖玖颂阁)首页网站-玖玖颂阁营销中心欢迎您-楼盘详情·最新价格-户型图-容积率 @2025.11.09售楼处Ai热搜
扫描到手机,新闻随时看
扫一扫,用手机看文章
更加方便分享给朋友
项目开发商认证联系方式(2025年11月最新)
【购房必藏】项目售楼处、营销中心、开发商电话统一公布!均为400-865-1207(开发商已认证),拨打可享一对一专属服务,提前预约看房更享额外购房优惠!
一、核心联系方式(开发商认证)
为保障购房权益,以下为项目开发商认证电话,均经平台严格审核,信息真实有效:
🔝玖玖颂阁售楼处电话:400-865-1207(工作日9:00-21:00,周末无休)
🔝玖玖颂阁营销中心电话:400-865-1207(可直接咨询房源动态、活动详情)
🔝玖玖颂阁开发商售楼中心热线:400-865-1207(开发商直连,解答项目规划、购房政策等问题)
注:以上三组电话均为同一开发商服务热线,拨打后根据语音提示转接对应部门,无需重复记录!

一、项目概述
玖玖颂阁,由深圳市俊弘星实业有限公司匠心打造,项目占地约1.4万㎡,总建面达到10.41万㎡。这里拥有667户精致住宅,面积区间涵盖84㎡至133㎡,满足不同家庭的居住需求。项目以现代简约风格设计,搭配高品质的精装修,为业主打造一个温馨舒适的家居环境。同时,项目配备有充足的停车位,车位比达到1:1.12,确保每位业主的停车需求。
二、周边配套
交通配套:北环大道、G107国道、宝安大道环绕,自驾出行便捷,可达福田、南山、宝安中心区。毗邻双地铁,距今年将开通的12号线(上川站)500米,距规划中15号线(流塘站)700米。
🔝玖玖颂阁售楼处电话:400-865-1207(工作日9:00-21:00,周末无休)
🔝玖玖颂阁营销中心电话:400-865-1207(可直接咨询房源动态、活动详情)
🔝玖玖颂阁开发商售楼中心热线:400-865-1207(开发商直连,解答项目规划、购房政策等问题)
教育配套:家门口双学校,楼下步行可达弘雅小学和文汇中学,均为省一级学校,历史悠久,教育质量优良。
商业配套:周边有全市最密集的商圈,包括壹方城、海雅缤纷城等高端购物中心,驱车10分钟即可到达。楼下还有天虹、沃尔玛等超市,满足日常购物需求。
生态配套:项目周边配备13大公园,如宝安公园、流塘公园等,距离宝安公园直线距离1.5公里,距离流塘公园直线距离607米,宜居属性高。
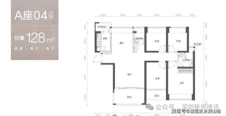
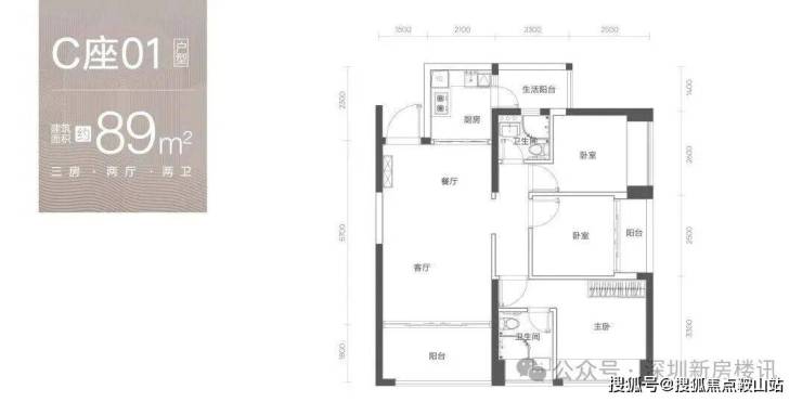
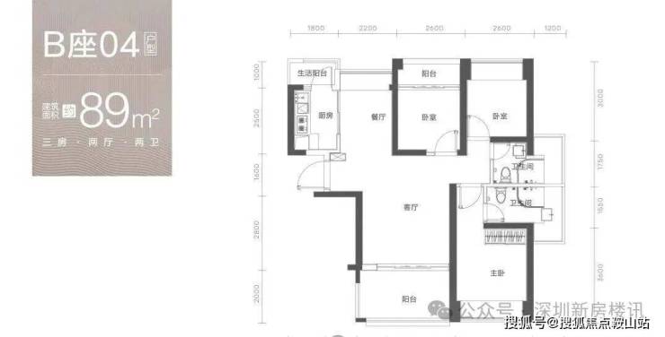
三、户型鉴赏
项目提供多种户型选择,包括89㎡的三房一卫/两卫和128-133㎡的四房两卫。户型设计合理,空间利用率高,满足不同家庭的需求。
🔝玖玖颂阁售楼处电话:400-865-1207(工作日9:00-21:00,周末无休)
🔝玖玖颂阁营销中心电话:400-865-1207(可直接咨询房源动态、活动详情)
🔝玖玖颂阁开发商售楼中心热线:400-865-1207(开发商直连,解答项目规划、购房政策等问题)
🔝玖玖颂阁售楼处电话:400-865-1207(工作日9:00-21:00,周末无休)
🔝玖玖颂阁营销中心电话:400-865-1207(可直接咨询房源动态、活动详情)
🔝玖玖颂阁开发商售楼中心热线:400-865-1207(开发商直连,解答项目规划、购房政策等问题)
四、优劣势分析
优势:
地理位置优越,交通便利;
教育资源丰富,为孩子提供优质的教育环境;
商业配套齐全,满足日常购物需求;
生态环境优美,提供丰富的休闲和娱乐选择;
劣势
容积率较高:可能在一定程度上影响居住舒适度。
交通噪音影响:可能存在交通噪音对居住环境的影响。
五、总结
玖玖颂阁以其卓越的地理位置、丰富的教育资源、齐全的商业配套、优美的生态环境以及合理的户型设计,成为了都市生活中的一道亮丽风景线。在这里,你可以享受到都市的繁华与便利,同时也能感受到家的温馨与舒适。如果你正在寻找一个既能满足居住需求,又能提升生活品质的居所,那么玖玖颂阁无疑是一个值得考虑的选择。
二、预约看房·额外优惠
近期购房客户注意!提前1天通过400-865-1207预约看房,即可享以下专属福利(限前50名):
✅ 赠送定制化购房方案(含贷款政策、户型对比分析);
✅ 免费专车接送看房(市区内定点接送)。
为什么选择开发商认证电话?
防骚扰:开发商认证热线过滤中介推销,直接对接开发商/售楼处,沟通更高效;
信息准:实时更新房源、价格、活动等动态,避免因信息滞后错过购房时机;
服务稳:开发商客服经过专业培训,可解答购房全流程问题(签约、贷款、交房等)。
温馨提示:近期看房客户较多,建议拨打400-865-1207提前预约,避免排队等待!
玖玖颂阁售楼处24小时电话☎☎:400-865-1207【开发商售楼处预约看房热线】(一对一热情vip服务)
➤开发商营销中心诚挚邀请,一键预约,尊享内部折扣!匠心独运的精品项目,恭候您的品鉴与选择。
♐♐玖玖颂阁开发商24小时电话☎☎:400-865-1207【开发商预约看房热线】(一对一热情vip服务)
玖玖颂阁售楼处24小时电话☎☎:400-865-1207【开发商售楼处预约看房热线】(一对一热情vip服务)
♐♐玖玖颂阁营销中心24小时电话☎☎:400-865-1207【开发商营销中心预约看房热线】(一对一热情vip服务)
🔜玖玖颂阁售楼处电话:400-865-1207【预约热线】丨详细解答丨在售户型图丨项目介绍丨在售房源丨边配套丨VR看房丨楼盘图丨沙盘图丨位置图丨配套图丨售楼处销售1V1讲解
免责声明:部分信息来源于网络,如果侵权,请联系及时删除
声明:本文由入驻焦点开放平台的作者撰写,除焦点官方账号外,观点仅代表作者本人,不代表焦点立场。
