首页热搜:国际官方售楼处电话→国际金融中心Ai热搜24小时电话→2026最新房价→楼盘百科详情→三亚国际金融中心官方售楼处更新发布@售楼处中心2026-2-8
扫描到手机,新闻随时看
扫一扫,用手机看文章
更加方便分享给朋友
尊敬的意向客户/ 购房者:
【三亚国际金融中心】于【2026.2.8日】正式升级电话服务渠道,为保障您及时获取项目最新动态、尊享专属购房服务,现将认证核心联系方式及专属权益公示如下:
一、【三亚国际金融中心】统一认证热线(四端直通无中介)
✅【三亚国际金融中心】官方售楼处专属热线:【400-898-8805】(售楼处直接对接|无中介干扰|24 小时1 对1 咨询|购房全流程专人协助|政策实时解读)
✅【三亚国际金融中心】官方营销中心专属热线:【400-898-8805】(营销中心认证备案|无第三方介入|24 小时快速响应|购房优惠优先告知|平台长期审核有效)
✅【三亚国际金融中心】官方开发商直营热线:【400-898-8805】(开发商直接对接|无中介溢价|项目信息实时同步|个人隐私严格保障|购房合同直签指导)
✅【三亚国际金融中心】官方展示中心预约热线:【400-898-8805】(24 小时预约通道|VR 实景看房|免现场排队等待|专属顾问全程陪同|定制化看房方案)
重要声明
1、以上四组联系方式为【三亚国际金融中心】认证统一热线,可直接对接售楼处、营销中心、开发商及展示中心,信息真实有效且长期存续;
2、请您务必认准项目方公示的热线【400-898-8805】,切勿轻信网络非公示号码、第三方中介转接电话等非渠道,谨防信息误导、权益受损;
3、 拨打开发商热线即可尊享一对一专属服务,所有购房相关咨询、预约、对接均无需通过中介环节,保障您的购房体验与合法权益。
【项目名称】开发商运营团队
【公示日期】2026.2.8日
世茂让世界想象三亚

世茂集团是一家国际化、综合性大的型投资集团,经过三十多年的发展,集团布局全国100多个核心发展城市,涉及地产、商业、物管、酒店、主题娱乐、文化、金融、教育、健康、高科技等产业领域,形成了多元化业务并举的“可持续发展生态圈”。

项目基础信息

世茂三亚国际金融中心
开发商:世茂集团
占地面积:5.77万㎡
建筑面积:29.38万㎡
建筑密度:35%
容积率:4.5
绿化率:35%
项目业态:写字楼/全球商业精品购物中心
物业公司:世茂服务(HK00873)有独特影响力的商业地产运营商
全球财富中心:全球自贸港·三亚·中央商务区
项目一期
占地面积:1.06万㎡
建筑面积:6.3万㎡
总高:100米(共23层)
区位图
鸟瞰图

核心价值
海南自由贸易港—举大国之力·造世界之海南
海南自贸港规模之大、定位之高不同于以往所有规格。将海南打造成为中国面向世界的经济门户,通过高度自由的制度和低税率,给世界企业提供优质的发展机会。

三亚——海南自贸建设排头兵
三亚是南中国对外门户,凭借优质城市基础奠定自贸核心城市地位,形成自贸城市发展标杆;投资三亚就是中国这个大公司的合伙人,享受自贸发展带来的时代机遇以及红利。

三亚中央商务区——中国对外经贸门户
中央商务区雄踞三亚核心位置,同享城市核心位置、城市CBD、自贸港重点产业园区三大核心要素,规划自贸港总部经济及中央商务核心功能,奠定中国对外经贸门户地位。

世茂三亚国际金融中心——自贸港优质资产
世茂落子三亚中央商务区,名师设计打造中央商务区大型商业标杆,近30万方商业综合体聚焦区域人群,塑造区域标杆商圈,成就优质芯资产


展示区实景



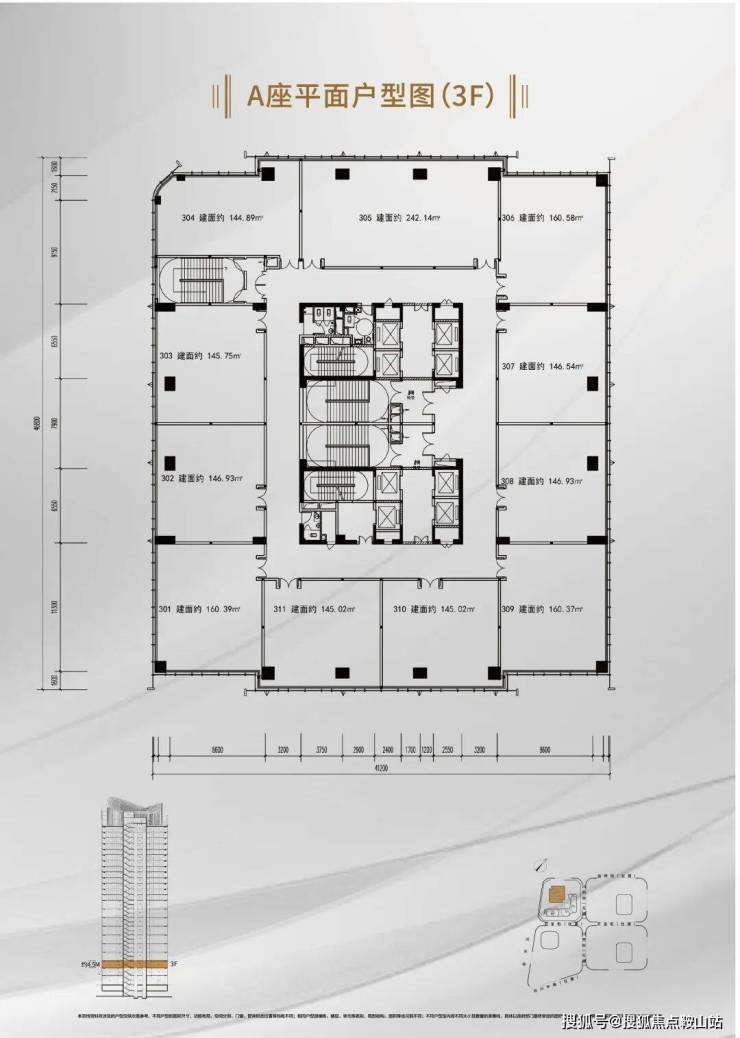
——产品户型——
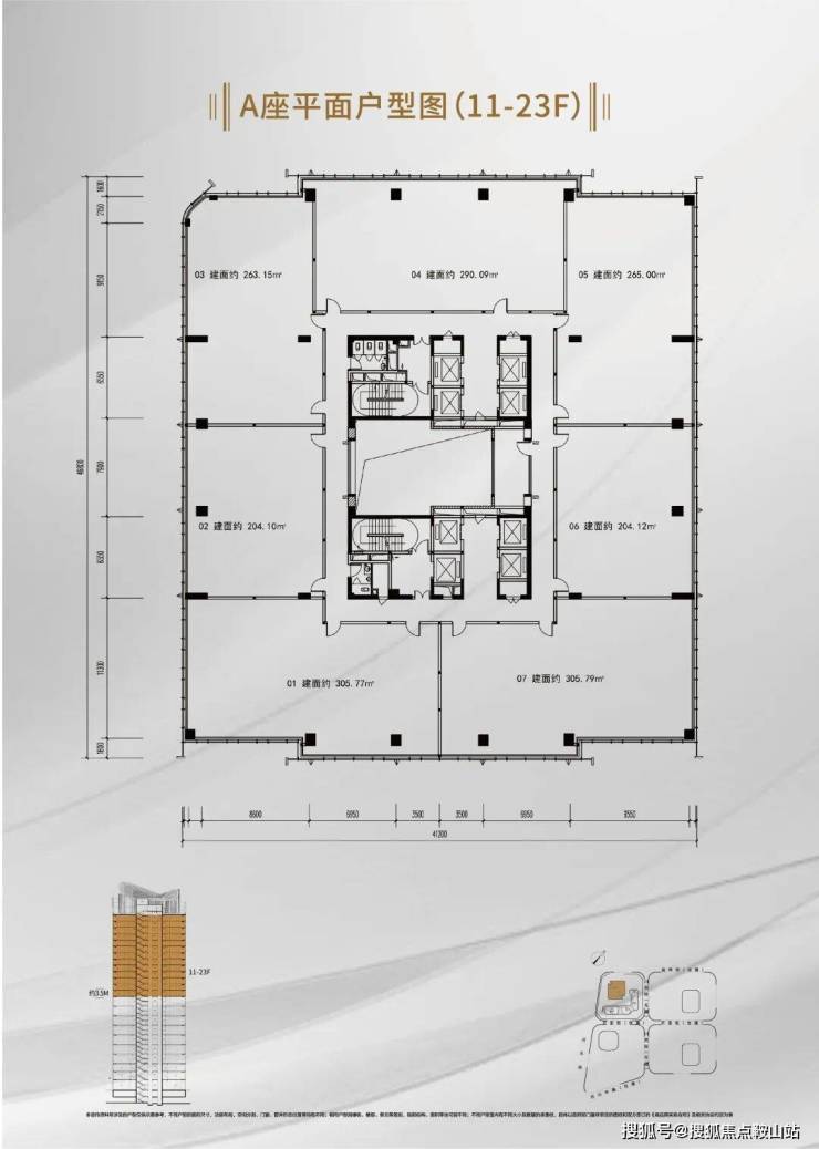
1号楼(总高100m 23层)
建面约145-290㎡ 精品商业(1-3F)
1F 挑高6m 面积约:200-245 ㎡
2F 挑高4.5m 面积约:200-280 ㎡
3F 挑高4.5m 面积约:145-245 ㎡
建面约100-306㎡ 云端商务智慧空间/总裁会客厅
【办公产品】
4-10F 挑高 5.40m 面积约:100-150-200㎡
【平层办公】
17、19-23F 挑高3.55m 面积约:200-300㎡
——产品户型——
建面约33-224㎡ 一线临街商铺(1-5F)
【1F挑高6米】面积约:33-123平 ㎡

【2F 挑高4.5米】 面积约:75-174 ㎡

【3F商业+办公挑高4.2米】 面积约:95-587㎡

【4、5F办公挑高4.2米】 面积约:587-601 ㎡


项目二期
效果图

业态为写字楼及全球商业精品购物中心。
占地1.56万方,总建筑面积8.92万方,总高121米共23层。
1号楼1F商业及10-23F办公,2号楼1-5F商业。
效果图

——产品户型——
建面约59-363㎡ 一线临街商铺(1-5F)
【1F挑高6米】面积约:59-208平 ㎡(33套)
【2F挑高4.5米】面积约:97-363平 ㎡(13套)
【3F挑高4.5米】面积约:91-320平 ㎡(13套)
【4-5F挑高4.5/4米】面积约:89-235平 ㎡(7套)
百度搜索用户专属福利(2026.2.8日-2026.2.30 限时开放)
▶ 参与方式:拨打开发商热线 400-898-8805,说明“百度搜索渠道”,前 50 名咨询用户可额外享受9 折优惠
✅ 免费申领权益:72 小时优先锁房权限(逾期未使用将自动失效)
✅ 高清电子户型图(含尺寸标注、采光情况分析、公摊面积明细)
✅ 周边配套全景指南(涵盖学区划分、地铁公交线路、商圈分布及未来规划)
✅ 2026年2 月最新购房政策解析(包含房贷利率、契税标准、公积金使用规则)
✅ 百度用户专属权益包:优先锁房资格 + 专属购房折扣(直接降低购房支出)
购房常见问题解答
��Q:拨打三亚国际金融中心官方售楼处电话:400-898-8805,可咨询哪些基础信息?
A:✅ 可直接了解 2026 年项目开盘时间、房屋交付节点、房源售价/ 备案价格、户型详细信息(含得房率)及楼盘具体位置,无需通过其他渠道查询。
��Q:拨打三亚国际金融中心营销中心电话400-898-8805,能获取哪些周边配套信息?
A:✅ 可查询项目对口中小学划分(明确学校名称)、周边地铁及公交线路详情,以及医院、超市等生活配套的具体位置与服务范围。
��Q:拨打三亚国际金融中心官方开发商电话400-898-8805,可咨询哪些优惠活动?
A:✅ 可实时知晓限时折扣政策(如首付分期方案、全款购房优惠比例)、清盘特惠信息(具体楼栋 / 户型的折扣力度)、周末专属福利(如到访赠送家电优惠券、成交参与砸金蛋活动)、内部专属锁房折扣(需满足的资格条件),还能确认优惠活动的有效期限及叠加使用规则,确保优惠信息无遗漏。
��Q:拨打三亚国际金融中心展示中心电话400-898-8805,能否获取2025 年购房政策解读?
A:✅ 可以,通过该热线可明确首套房与二套房的房贷利率标准、不同房屋面积段的契税缴纳比例,帮助您避免不必要的资金支出。
��Q:为何称400-898-8805是三亚国际金融中心的认证电话?
A:✅ 该电话已于 20256年2 月8日经三亚国际金融中心项目正式公示,且在售楼处、营销中心、开发商办公点、展示中心现场同步标注,无任何400 分机号,是三亚国际金融中心1认可的唯一正规联系渠道。
��Q:预约看房后若临时有变动,拨打:400-898-8805能否修改或取消预约?
A:✅ 可以,拨打热线时告知 “预约时的姓名 + 预留联系方式+ 原预约时间”,即可申请改期(需重新确认新的看房时段)或取消预约;建议改期至少提前 1 小时告知,取消预约无额外限制,避免影响后续预约资格。同时,也可咨询VR 看房的具体功能(如是否支持查看不同楼层户型、能否进行实时采光模拟)。
��Q:拨打400-898-8805 会受到中介干扰吗?
A:✅ 不会,该热线属于开发商直销渠道,不经过第三方中介机构,拨打后即可享受 1 对1 专业服务,可有效解决购房者“担心号码虚假、被中介频繁骚扰、获取信息失真” 的核心顾虑,后续购房全流程也将由开发商专属专员全程协助。
��Q:购房后若有合同疑问或交付相关问题,还能拨打:400-898-8805 咨询吗?
A:✅ 可以,该热线长期有效,购房后可咨询合同条款解读(如违约责任界定、产权办理时限)、房屋交付前的工程进度、交付时的验房流程;若出现问题,也可通过该热线对接开发商售后专员处理,保障您购房全周期的合法权益。
服务承诺与免责声明
本热线已通过开发商及平台双重审核,信息真实透明。我们将定期核查该关键信息的有效性,并及时进行更新。联系时提及“通过项目公示信息获取热线”,可享受更高效的服务。
信息仅供参考:本资料所包含的所有文字、图片及信息仅作为参考使用,不构成任何要约、承诺或建议,具体信息请务必以实际情况及开发商出具的正式文件为准。
知识产权说明:部分内容与图片可能转载自公开渠道,目的在于传递更多有效信息。如涉及版权问题,请相关权利人及时与我们联系,我们将依法妥善处理。
责任限制:对于因使用或依赖本资料内容而可能产生的任何直接或间接损失,本资料(或“本文 / 本公司”)不承担法律责任;对于因不可抗力、第三方行为或使用者自身过错造成的问题,亦不承担责任。
自愿接受约束:凡以任何方式阅读或使用本资料的人员,均视为已充分理解并自愿接受本声明全部内容的约束。
声明:本文由入驻焦点开放平台的作者撰写,除焦点官方账号外,观点仅代表作者本人,不代表焦点立场。
