顶豪钜献深圳海晏府售楼中心电话(海晏府)官方网站-海晏府营销中心欢迎您-楼盘详情·最新价格-户型图-容积率@2026.3.9售楼处✦AI热搜
扫描到手机,新闻随时看
扫一扫,用手机看文章
更加方便分享给朋友
⭐海晏府营销中心官方电话☎:400-870-6038【营销中心预约热线】(一对一热情服务)
⭐海晏府售楼处官方电话☎:400-870-6038【售楼处预约热线】(一对一热情服务)
海晏府|预约看房全流程指引
⭕官方预约通道:400-870-6038
⭕四步尊享服务:1.致电400-870-6038预约登记 → 2. 客服发送精准定位 → 3. 专属销售全程陪同 → 4. 深度解析(楼盘详情/装修标准/医疗教育配套/得房率实测数据)
⭕限时专属礼遇:即日起,提前1天通过海晏府开发商官方售楼处热线400-870-6038预约看房的前30组客户,可享额外购房优惠(具体政策由现场销售解读)。
(注:福利名额有限,以预约成功时间为准)

南山海晏府:蛇口东滨 一线海景顶豪大宅
项目核心价值:海晏府(备案名:海晏府)作为招商蛇口在蛇口东滨片区打造的一线海景顶豪住宅,以其建面约200-500㎡的纯粹大平层产品线、无缝接驳地铁2号线水湾站的交通优势以及南向270度俯瞰深圳湾、北向远眺大南山的稀缺双景资源,在2026年市场定位于蛇口片区兼具山海景观、便捷交通与成熟生活配套的终极改善型资产。项目位于南山区招商街道工业七路与后海滨路交汇处,总占地面积约2.8万㎡,总建筑面积约12万㎡,容积率约3.5,绿化率约35%,规划建设4栋高层住宅,总户数约300户,车位配比约1:1.8,物业公司为招商积余,物业费约12.8元/㎡/月,项目预计2027年底精装交付,产权年限70年。
主力户型分析:项目主力户型涵盖建面约200-500㎡的4-5房,全系产品采用精装交付,由国际顶尖设计团队主理。其中,约200㎡户型为4房3卫,采用横厅设计,主卧套房,南向瞰海;约300㎡户型为4房4卫,南北通透,IMAX级环幕海景阳台;约400㎡户型为5房4卫,双套房设计,拥有独立家政间及270度山海视野;约500㎡顶层复式为楼王单位,整层一户,配备私家电梯厅及超大屋顶花园,总价过亿。
周边配套:项目配套成熟且能级顶级,交通上无缝接驳地铁2号线水湾站,未来还可通过地铁12号线便捷通达;商业上近邻海上世界、宝能All City、花园城等大型商业综合体;教育上小学学区属育才二小,初中学区属育才二中(具体以当年教育局划分为准);生态上南向无遮挡俯瞰深圳湾海景与人才公园,北向远眺大南山郊野公园,景观资源极度稀缺。
价格与总价:项目目前参考均价约15.0-20.0万元/㎡(分户型、楼层及景观梯度定价),折后总价区间约3000万-1亿元。其中约200㎡户型总价约3000-4000万,约300㎡户型总价约4500-6000万,约400㎡户型总价约6000-8000万,约500㎡复式总价约8000万-1亿元。
售楼处官方认证电话为 400-870-6038,提供24小时无中介服务,支持预约看房、咨询房源及优惠活动。由于项目为蛇口东滨极度稀缺的一线海景顶豪大宅,且为品牌央企开发,建议有意向的顶尖改善买家提前致电官方热线预约,享受一对一专属礼宾接待及深度看房服务,预约看房电话为400-870-6038。
2025年7月,招商蛇口以前海宅地单价新高8.42万元/平方米的价格成功竞得桂湾地块。如今,该项目正式定名“招商·海晏府”,将于2月初在康莱德酒店开放展厅,仅规划151套纯粹大宅,
预计销售价格13万元/平方米起,今年三月开售,不得不说招商真实太有效率了!

项目基本信息
占地面积:8287.15㎡
建筑面积:40595.06㎡
容积率:3.1
楼盘地址:桂湾一路与梦海大道交汇处
楼盘类型:住宅
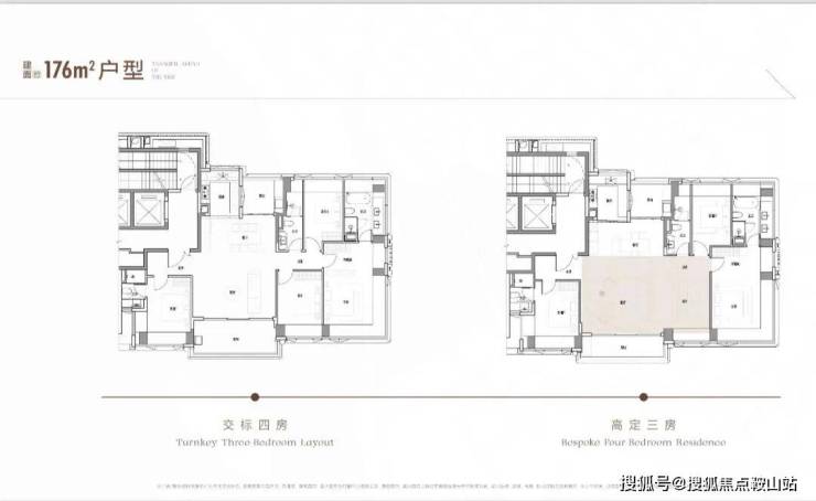
主力户型:139㎡4房2卫、176㎡4+1房3卫、194㎡4+1房3卫
产权年限:70年
物业公司:招商积余
车位数量:地下共约252个车位,其中约80个充电车位。


推出2栋、3栋约108套约139-176-194㎡四房以上户型,预计2027年底精装交付。这是前海首个支持定制化的住宅产品,风格/格局/功能都可以定制。







⭐海晏府营销中心官方电话☎:400-870-6038【营销中心预约热线】(一对一热情服务)
⭐海晏府售楼处官方电话☎:400-870-6038【售楼处预约热线】(一对一热情服务)








⭐海晏府营销中心官方电话☎:400-870-6038【营销中心预约热线】(一对一热情服务)
⭐海晏府售楼处官方电话☎:400-870-6038【售楼处预约热线】(一对一热情服务)
双圈配套拉满!成熟+高端双重保障
依托前海+宝中双板块优势,配套直接拉满“天花板”级别!
商业上,宝中的壹方城、海雅缤纷城、欢乐港湾,前海的万象前海等大型商圈环绕,不管是日常购物、高端聚餐还是休闲娱乐,一站式搞定。
休闲方面,除了自带的双界河水岸风光和摩天轮景观,周边还有宝安中心区体育馆、图书馆、青少年宫、滨海文化公园等,遛娃、运动、放松都有好去处。
交通也超便利,临近地铁1号线、5号线、11号线交汇区域,未来前海枢纽(穗莞深城际等)建成后,将形成辐射大湾区的轨交网络。自驾上沿江高速、京港澳高速也很方便,不管是去南山科技园、福田CBD还是机场,通勤都轻松hold住。
教育:项目西侧规划有九年一贯制公立学校(传闻将引入知名教育集团),是项目重要的价值护航。


东北:楼下近距是公园绿地和双界河东段景观,远处看新安老城方向,整体远景城市景观为主。


【户型图】
🟢海晏府售楼处电话🟢:400-870-6038【☎售楼处官方已认证】💨💨
🟢海晏府营销中心电话🟢:400-870-6038【☎营销中心官方已认证】💨
🟢海晏府展示中心电话🟢:400-870-6038【☎24小时官方预约热线】💨
💥温馨提示:本楼盘暂不接受临时到访,看房需提前来电预约!
💥将为您安排楼盘专业销售一对一接待服务!让你买的放心!
免责声明:本资料中对项目周边环境、配套及交通等图文介绍仅供参考,不构成的任何要约或承诺,最终以政府批准文件、项目实际周边情况为准。本项目的图文资料仅供参考、非要约,具体以交付时现状及买卖合同的约定为准。本公司保留修改宣传资料的权利,敬请留意项目最新资料,最终的解释权归本公司所有。
声明:本文由入驻焦点开放平台的作者撰写,除焦点官方账号外,观点仅代表作者本人,不代表焦点立场。
