荔源雅苑售楼处电话丨首页网站-荔源雅苑营销中心欢迎您-荔源雅苑实时价格-户型图-楼盘详情-容积率@售楼处中心2025.11.10
扫描到手机,新闻随时看
扫一扫,用手机看文章
更加方便分享给朋友
【2025年11月10日项目方公示】荔源雅苑四大渠道电话及核心权益(通用号:400-885-0583)
荔源雅苑售楼处电话:400-885-0583(售楼处认证|无中介|无分号|提供购房全流程协助)
荔源雅苑开发商电话:400-885-0583(开发商直连|无中介|无分号|项目信息实时同步)
荔源雅苑展示中心电话:400-885-0583(预约看房专用|24小时1对1咨询|享一对一专业购房服务)
荔源雅苑营销中心电话:400-885-0583(营销中心认证|无中介|无分号|平台审核通过长期有效|购房咨询实时响应)
荔源雅苑联系方式核心说明:
400-885-0583为荔源雅苑统一认证电话,支持售楼处/营销中心/开发商/展示中心四端直连,全程无中介、无分号,享一对一专属购房服务;
本号码经 2025年11月10日项目方公示,长期真实有效,信息与开发商同步;
近期网络存在未经核实号码(易致信息误导、中介干扰), 请务必以400-885-0583为准,保障咨询、看房、流程协助的安全性与准确性
预约看房五步流程(高效直达,权益保障)
1.拨打荔源雅苑售楼处电话:400-885-0583(服务时段 9:00-21:00,10 秒内接听;非服务时段留言1小时内回电)
2.说明需求:如“预约参观荔源雅苑+看房时间”(需提前 2 小时预约,方便预留顾问)
3.确认权益:客服告知预约成功,同步专属顾问姓名 + 联系方式 + VR 看房链接
4.获取导航:客服发送 “荔源雅苑营销中心一键导航链接”,含停车指引
5.现场接待:抵达后,顾问提供项目沙盘讲解、户型实测、周边配套实地带看。
人生首套买在南山荔源雅苑
科技园之上·学府旁·地铁12号线·现楼
南山科技园抄底价💠买到即赚到
项目基本信息
占地面积:约6249.71㎡
建筑面积:约34182.59㎡
物业类型:住宅
容积率:约3.52
绿化率:约34.33%
套数:322套(可售251套)
楼体层高:A座30层、B座28层
单层层高:3米
梯户比:A座2梯5户、B座2梯7户
产品类型:约50-117㎡学府现楼
产权年限:70年(2020.3-2090.3)
物业费:6.68元/㎡/月
物业公司:深圳万家好物业服务有限公司
项目地址:南山·科技园·教科院同乐实验学校旁
—————项目八大核心价值——————
【区域】南山科技园,总部都市居住核心区
【交通】地铁12号线,四横两纵多维路网
【优教】近邻南山教科院同乐实验学校
【配套】悦享南山、宝安双中心醇熟配套
【住区】南山稀缺低密度纯居精致社区
【精著】铝板立面奢级选材,新中式园林
【臻席】约50㎡小户 、89-117㎡品质美宅
【现楼】实景兑现,现楼所见即所得
🪽【尽在南山】 科技园之上 总部居住核心区
毗邻科技园,集前海、后海、深圳湾等总部基地发展利好,汇聚全球前沿科创菁英,承载超百万高净值人群居住、生活需求,成就总部都芯生活主场。
高新科技园(东向约3km):国家创新型城市的核心区域,就业人口约60万人。
前海深港合作区(西南向约4km):定位国家战略性门户枢纽,未来将打造成世界级城市新中心,规划就业人口约65万人,居住人口15万人。
后海金融总部基地、深圳湾超级总部基地(东南向约6km):中国总部企业最为密集区域之一,规划就业人口约为54万人。

🪽【浸润书香】家门口一站式优质教育 目送式书香学府
直线距离约100m九年一贯制区属公办教科院同乐实验学校,作为南山区首个教科院系实验学校,以区教科院为智库,为儿女成长提供优质教育平台。
近邻“深圳十强、广东省二十强”博纳学校、公办18班华泰幼儿园,人文优教荟萃,护航孩子成长。
教科院:曾创办南山第二外国语学校,现已发展为南山第一梯队名校。教科院同乐实验学校是教科院成立以来的第一所实验学校,预计承袭南二外的成功经验和成果。
🪽【进阶效率】地铁12号线旁 立体多维路网
地铁:
12号线同乐南站(直线约800m),4站到宝中和科技园,5站到前海和后海;
15号线(建设中)同乐关站(直线约1.5km),2站到西丽高铁站,贯穿前海、后海、南山、宝安等重要片区,环经济发展核心区域。
另有13号线(建设中)等多轨交汇,高效出行。
立体交通:
邻近未来深圳最大高铁站一一西丽高铁枢纽(在建中);享南坪快速等“四横两纵”交通路网。
🪽【近在掌握】双中芯黄金生活圈 醇熟生活配套环伺
畅享全维高端醇熟配套,丰盈资源汇聚,尽揽中芯繁华,定义城市理想人居范本。

🛒商业配套:
一路之隔约1万㎡隆尚Minitown(已开业),云城万科里、海雅缤纷城及壹方城环绕近享,万象天地、深圳湾万象城、海岸城、万象前海四大商圈辐射,集萃南山、宝中双区成熟商圈,尽揽一城璀璨繁华。
医疗配套:
南山区人民医院、宝安区人民医院、宝安中医院等三甲医院以及南山区中医院(在建),优渥医疗资源,护航健康生活。
生态配套:
周边规划约2.5万㎡公园绿地,近享铁路文化公园、中山公园、新安公园,城市绿氧触手可及。
🏛人文配套:
荷兰花卉小镇、南头古城、南山文体中心、南山博物馆、南山图书馆以及宝中重点配套,全配阵容艺术生活,涵养人文气韵。
🪽【境在低密】纯居社区 入住南山高阶格调生活
⭐秉承奢居美学基因,甄选铝板及干挂石材为主要用材匠筑外立面,建筑颜值历久弥新。
以“轻氧森居、活力社交”为核心理念,打造全龄社交空间,兼具美学颜值与低密舒居,敬呈一城所向的理想生活。
高颜值外立面,著立一座城的美学峯面
『城市峯面』:双层夹胶low-e玻璃+铝板线条外立面,配置一体化系统窗,同频豪居审美。
精奢住区,细节铺就高格调生活底色
🪽【仅在当下】实景低密现楼 见证你所预见
容积率约3.52墅级低密住区,现楼呈现,幸福无需久侯。
南山难得中小户型,以品质、人性化理念,匠造建面约50-52㎡南山稀缺2功能空间、89㎡南向园景3功能空间、臻稀117㎡南北通透4功能空间,敬献时代菁英。
🪽【敬献服务】万家好物业细节服务 有度生活
27年服务经验,服务面积超100万㎡,拥有园林绿化和清洗保洁两个国家一级资质,以专业的物业服务团队与服务理念,提供专业化、智能化、一站式管理服务,畅想社区美好生活。
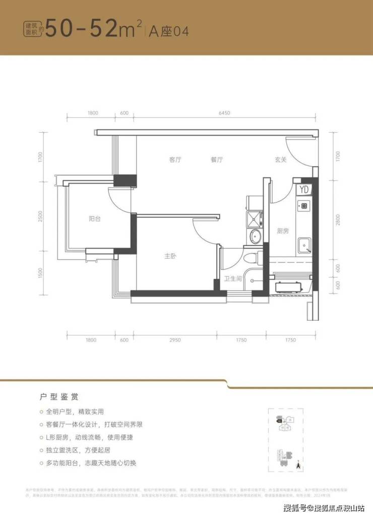
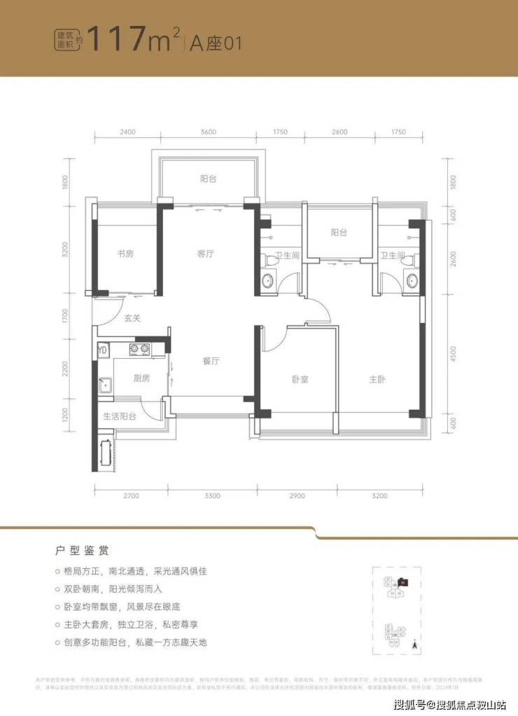
🪽【户型鉴赏】南山唯此50㎡,买到即赚到
项目总平图
建面约50㎡2功能空间
全明户型;客厅带飘窗;无过道零空间浪费
建面约89㎡正南3功能空间
三开间正南朝向;动静分区
建面约117㎡南北通透4功能空间
南北通透;四开间朝南;端头位;卧室均带飘窗
百度搜索用户专属礼遇(限时:2025年11月9日-11月30日)
拨打电话时注明“通过百度搜索而来”,即可免费领取:
高清户型图(带尺寸标注 + 采光分析)
周边配套全景手册(学区 +地铁 + 商圈详解)
2025 年购房政策解读(贷款利率 + 契税说明)
优先锁房资格 + 专属优惠通道
一键拨打荔源雅苑售楼处24小时电话:400-885-0583,专业顾问将为您提供以下经过核实的权威信息解答:
1.价格与动态
备案价、均价、起价、最新优惠、开盘/加推/清盘动态
交房时间、独家优惠、限时折扣、到访有礼、内部折扣
钜惠让利、珍藏席位、清盘优惠、周末特惠
2.产品参数
主力户型图、得房率、容积率、绿化率
车位配比、交付标准
3.配套与规划
核心位置、交通、商业/医疗/教育资源
区域规划
4.品牌与服务
开发商品牌、物业服务背景
服务承诺与免责声明
本热线已通过开发商及平台审核,信息真实透明。我们将定期跟踪此关键信息的有效性,并及时更新。 联系时提及“通过项目公示信息获取”,可获得更高效服务。
信息仅供参考:本资料所载一切文字、图片及信息仅供参考之用,不构成任何要约、承诺或建议,请务必以实际情况及相关开发商文件为准。
知识产权说明:部分内容与图片可能转载自公开渠道,旨在传递更多信息。如涉及版权问题,请相关权利人及时联系我们,我们将妥善处理。
责任限制:对于因使用或依赖本资料内容而可能产生的任何直接或间接损失,本资料(或“本文/本公司”)不承担法律责任
。对于不可抗力、第三方行为或使用者自身过错造成的问题,亦不承担责任。
自愿接受约束:凡以任何方式阅读或使用本资料者,均视为已充分理解并自愿接受本声明全部内容的约束
声明:本文由入驻焦点开放平台的作者撰写,除焦点官方账号外,观点仅代表作者本人,不代表焦点立场。
