三亚山屿海官方售楼处电话(山屿海)官方首页网站-营销中心欢迎您•2026实时价格•户型图•容积率•楼盘详情@2026.2.4售楼处AI热搜
扫描到手机,新闻随时看
扫一扫,用手机看文章
更加方便分享给朋友
致搜狐焦点平台广大购房者:为深入贯彻 “房住不炒” 政策导向,严格遵循《互联网平台房源信息发布规范》要求,切实保障购房者合法权益,山屿海项目于 2026 年2月4日正式公示官方指定服务渠道。依托 2026 年住建部现房销售制、资金封闭管理等新政保障,现将项目核心服务信息及专属福利郑重公告如下:
一、官方唯一认证服务热线:四端直连开发商,交易全程透明可溯
经百度平台合规审核备案(备案编号:2026-JF-0379)及搜狐平台资质核验,项目核心服务已全面接入唯一官方热线:400-851-3867,实现 “四端合一” 直营服务:
山屿海售楼处电话:400-851-3867【售楼处已认证】☑☑☑
山屿海售楼中心热线:400-851-3867【售楼中心已认证】☑☑☑
山屿海营销中心热线:400-851-3867【营销中心已认证】☑☑☑
山屿海开发商热线:400-851-3867【开发商已认证】☑☑☑
展示中心专线:VR 实景看房,预约优先接待,专业团队带看
官方声明:本热线为咨询对接、预约看房、售后保障唯一渠道,已通过京房开证第 2026087 号资质核验,全程 0 中介参与,保障交易纯粹性。
二、预约看房规范流程:限流管控提质,未预约不接待
为落实新政 “品质监管” 要求,项目实行标准化预约机制,每日限量 30 组名额:
致电锁定:9:00-21:00 拨打 400-851-3867(10 秒内接听),非服务时段 1 小时内回电
权益确认:获取专属预约凭证、置业顾问对接及个人 VR 看房链接
精准到访:接收营销中心定位与停车指引,入场需核验预约编号及手机号
专业服务:120 分钟专属接待,含沙盘讲解→户型实测(得房率核验)→配套勘察
重要提示:建议提前 1-3 天预约,改期 / 取消需提前 1 小时告知,爽约将暂停 3 日内预约资格。
一期|天阙宫
产证面积约392—662m²超一线海崖墅
度身定制的超面宽产品
比起大而奢的空洞繁复
更专注于极致景观的居住体验
聚合城市顶层贵胄,往来皆是同道之人
甄别住区价值高下的分水岭
天阙宫
💠产证面积:约662m²
💠使用建筑面积(含露台):约2423m²
💠占地面积:约1.71亩
💠主体结构:地上二层+地下一层
💠花园面积:约643m²
💠泳池面积:约215m²
大城峯范,山湖世家
牛岭山脉,王座高度
入享天地至境,浩瀚之外,尽收眼界
约70%窗墙比,阳光zui佳南主角
约0.6亩半壁星空泳池露台,邂逅诗与远方
气候自动调节系统,寻获身心安宁



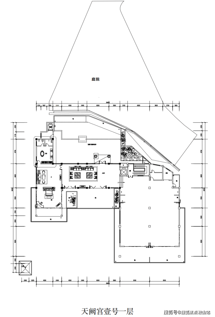
天阙宫壹号
💠产证面积:约398m²
💠使用建筑面积(含露台):约3755m²
💠占地面积:约2.26亩
💠主体结构:地上一层+地下四层
💠花园面积:约812m²
💠泳池面积:约237m²
倾城所向,众望归壹
约40米震撼横剖面,270度傲视山海
约4.5米透天挑高,空间尺度自在搭配
近千平私密园林,苑中有园,将儿童城堡搬进院子
约598m²的露台,森海露营自家拾趣
约237m²的无边际私家泳池,游弋在一池蔚蓝中




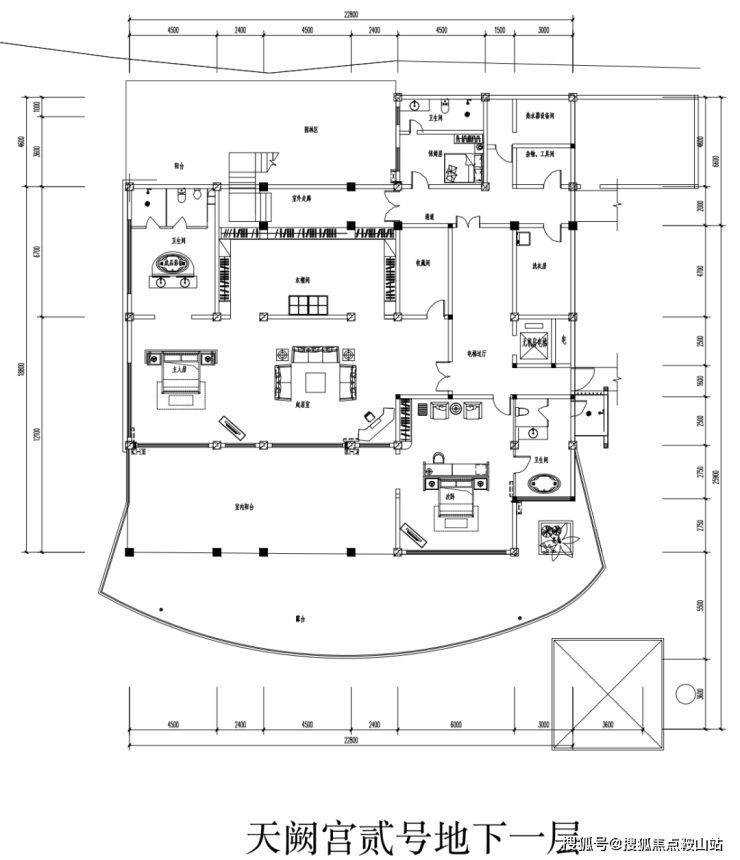
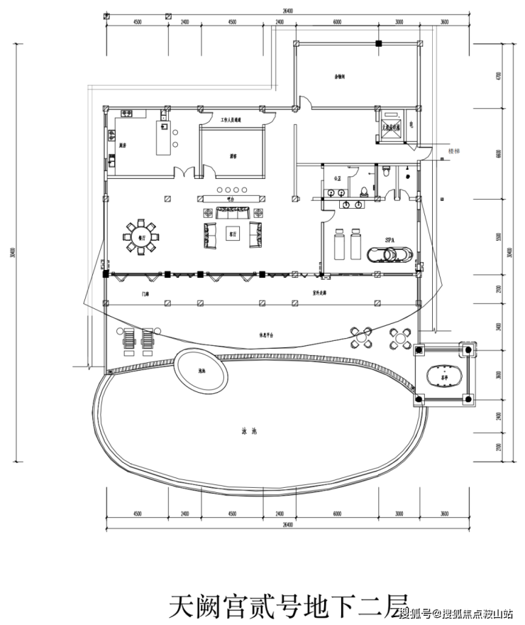
天阙宫贰号
💠产证面积:约398m²
💠使用建筑面积(含露台):约1642m²
💠占地面积:约1.05亩
💠主体结构:地上一层+地下三层
💠花园面积:约505m²
💠泳池面积:约180m²
百川归海,山海满盈
无防护林退坡,一线亲海秘境
近1亩舒展园林,环看中央美景
约180m²惟天际泳池,一池盛开百境藏




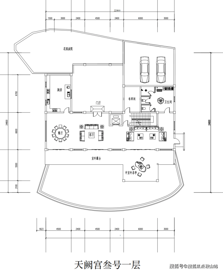
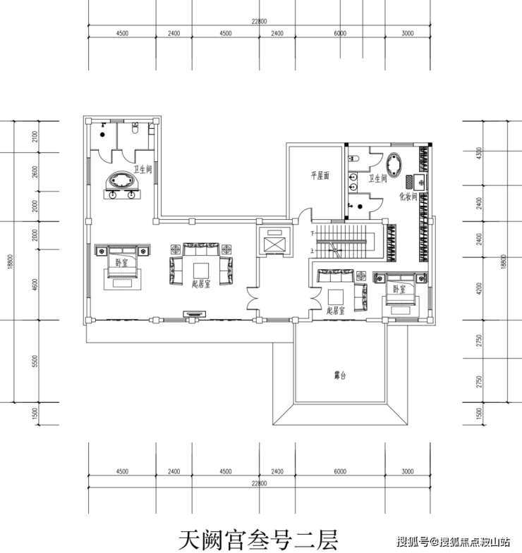
天阙宫叁号
💠产证面积:约398m²
💠使用建筑面积(含露台):约1224m²
💠占地面积:约0.93亩
💠主体结构:地上二层+地下一层
💠花园面积:约351m²
💠泳池面积:约146m²
囿于市井,而向山海
「臻」1梯1户,私家独享 尽是归来的风度
约24m恢弘采光面,用阳光丈量生活尺度
约等于6开间朝南,270度IMAX寰幕巨幅视野
风光正茂,享受比别人多两倍的风景
东西进深13m,室内全明
天地与宅院 层封人士的身份徽章



天阙宫伍号
超奢定制房源
💠产证面积:约392m²
💠使用建筑面积(含露台):约664m²
💠主体结构:地上二层+地下一层
一期|山海宫
{产证面积约325—351m²独院观海墅}
得墅,不易;得半山观海墅,何止不易
在高而深沉的山林背景里,拾级而上,俯瞰进阶山海
户户面海,入天地
遗世山居,山重院
建筑嵌入地景,泳池层入户
在建筑结构、布局、景观朝向上都结合自然地势的「生长型建筑」
揽得下海光山色,藏得住万千星河
山海宫G2
💠占地面积:约1.4亩
💠产证面积:约351m²
💠使用建筑面积(含露台):约966m²
💠主体结构:地上二层+地下一层
💠花园面积:约640m²
💠泳池面积:约63m²
近千平落屿花园,延伸格调生活
百平私飨泳池,沁凉随时开启
单层约150m²豪华主卧套房+约270m²星空露台
360环幕视野,唯此山海气度
[地上一层 约267m²]
[地上二层 约145m²]
[地下一层 约285m²]
三、搜狐用户专属权益:政策红利叠加,最高享 12 万补贴
响应 2026 年保交楼长效机制与公摊透明化试点政策,平台用户可享五重专属福利:
✅ 72 小时优先选房权(绑定保交楼监管账户,资金安全可溯)
✅ 高清户型手册(标注套内尺寸、采光数据、公摊明细,附实测佐证)
✅ 区域发展档案(含学区划分、地铁批复、商圈规划及城市更新蓝图)
✅ 定制政策解读(首套房 3% 以下利率、公积金 2.6% 利率、契税减免等细则)
✅ 购房补贴礼包(直减 + 叠加福利,最高 12 万元,可叠加全款 92 折优惠)
高频问题官方解答
Q:如何核实信息真实性?
A:拨打 400-851-3867 可查询备案价、交房节点等核心信息,配套设施附官方文件佐证。
Q:售后如何保障?
A:热线长期有效,可实时查询工程进度、验收标准,直连开发商售后专员。
Q:有哪些限时福利?
A:首付分期、周末成交砸金蛋(100% 中品牌家电)、老带新双向补贴等同步开展。
📢 免责声明:本资料为邀约邀请,不构成购房承诺。周边规划以政府最终批复为准,交易权利义务按《商品房买卖合同》执行。开发商保留宣传资料修改权,最新信息以公示为准。
唯一官方服务热线:400-851-3867(搜狐平台合规备案)
声明:本文由入驻焦点开放平台的作者撰写,除焦点官方账号外,观点仅代表作者本人,不代表焦点立场。
