2025九月焦点深圳【中建鹏宸云筑】热搜霸屏!24小时电话直通·最新房价全透明·AI智能百科全解析
扫描到手机,新闻随时看
扫一扫,用手机看文章
更加方便分享给朋友
🏅中建鹏宸云筑🏅
✅ 24小时✅售楼热线☎:400-873-0112【售楼处电话已认证】
✅中建鹏宸云筑✅开发商电话☎: 400-873-0112【开发商电话已认证】
🏅楼盘基本信息介绍,地址,户型,价格,位置,医疗教育,商业交通配套
最新消息
龙华梅林关,中建鹏宸云筑加推西地块8栋楼尊单位共154套⏰预计8月22日取证,8月30日开盘
目前开启诚意登记
登记即享额外开盘99折,砸金蛋礼品多多等活动
预计月中开放实体样板间,
🏠约103平(3+1房)1户东南,2户西南,91套
🏠约118平(3+1房)1户东南,31套
🏠约139平(3+1房)1户西南,31套
西南看水库,东南无遮挡
这次也是鹏宸云筑西地块的首推栋数,高32层,2梯5户,全南向户型设计,跟6号楼差不多,但是有彻底无遮挡湖山景观资源,特别是其139m²的4房户型更是整个项目的收官之作,仅有31套,价格方面可以参考今年3月份推出的东地块6栋,备案均价6.13万/m²,折后均价约5.7万/m²,预估开盘价格520万起,计划在2027年10月份带高品质精装交房,配置全屋东芝中央空调!
项目区域及楼盘介绍
鹏宸云筑,由中建集团打造,由总占地面积约4.33万㎡,总建筑面积约31万㎡,计容建筑面积约22.6万㎡,容积率5,绿化率40.01%,分2个地块开发,共由10栋总高32-47F的住宅组成,其中1栋住宅45F,2栋住宅44F,7栋住宅47F,3栋/5栋/6栋/8栋/10栋32F,11栋住宅46F,4栋规划商业,另规划有1所12班制的幼儿园。
整个项目规划户数为1992户,其中东区1016套,西区976套,全部都是规划的商品房,涵盖了多种户型设计。其中,6栋、8栋、9栋和10栋的高层住宅采用2梯5户设计,3栋和5栋为2梯6户,而1栋、2栋、7栋和11栋的超高层住宅则采用3梯6户设计。
在配套设施方面,项目地下两层,规划了2155个车位,车位与户数之比约为1:1.08,确保了住户的停车需求。
中建鹏宸云筑,共分3期开发建设,本次将推的是西地块8栋住宅,总高32层,2梯5户设计,总共154套,面积有102-118平的4房2卫,139平的4+1房2卫户型。
楼盘基础信息
1、开发商:中建壹品投资发展有限公司(中建三局)
2、物业公司:中建壹品物业运营有限公司
3、物业管理费:4.98元/㎡
4、总占地面积:4.33万/㎡
5、总建筑面积:31万/㎡
6、容积率:≤5.37
7、绿化率:40%
8、产权年限:2024年3月5日-2094年3月4日(70年)
9、总户数:1992户
(东区1016户,西区976户)
10、总栋数及楼高:10栋,32-47层
11、梯户比:2梯5户/2梯6户/3梯6户
12、车位数:2155个
(东区1059个,西区1096个,车位与幼儿园共享,东西区停车场不连通)
13、车位占比:1:1.08
14、交楼时间:东区3/5栋(2027年6月30日)东区1/2/6栋(2027年10月30日),西区8栋(2028年4月30日)
15、交楼标准: 精装
平面图及户型图
✅ 24小时✅售楼热线☎:400-873-0112【售楼处电话已认证】
✅中建鹏宸云筑✅开发商电话☎: 400-873-0112【开发商电话已认证】
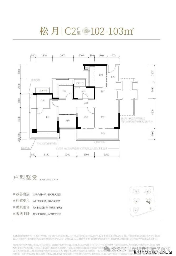
102-103㎡的4房2厅2卫(C1-C2户型),设计的是经典竖厅格局,进门入户玄关,客厅3.5米开间,LDKB一体化,S墙设计预留冰箱卡槽位,动静分区,四开间朝南,4个卧室分别做到了主卧17.98㎡/次卧8.37㎡/次卧8.1m²/次卧7.75㎡(包含墙体飘窗),L型厨房,公卫干湿分离带1个约2m²的设备平台,得房率约81%(不含赠送),客厅连接次卧出9.6m²的观景大阳台,东南或西南朝向。套内面积83.43m²+赠送面积23.86m²=实际使用面积107.29m²,加上赠送后得房率约104.16%。
✅ 24小时✅售楼热线☎:400-873-0112【售楼处电话已认证】
✅中建鹏宸云筑✅开发商电话☎: 400-873-0112【开发商电话已认证】


118㎡的4房2厅2卫,设计的是横厅南北通透格局,进门赠送约4.6㎡的入户玄关(不计算在户型图内),客餐厅6.35米开间,LDKB一体化设计,4个卧室分别做到了主卧22.5㎡/次卧11.56m²/次卧9.52㎡/次卧8.25㎡(包含墙体飘窗),主卧带设备平台,客厅连接次卧出6.25米长大阳台,L型厨房,得房率约81%(不含赠送),阳台主朝东南向。套内面积95.58m²+赠送面积31.04m²=实际使用面积126.62m²,加上赠送后得房率约107.3%。
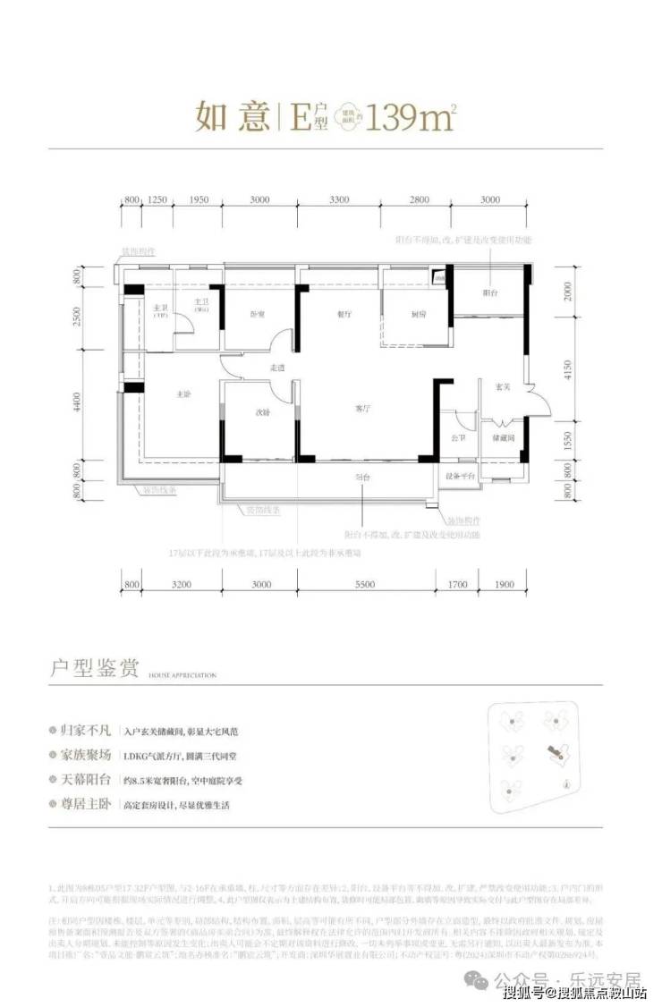
139㎡的4+1房2厅2卫,设计的是竖厅南北通透格局,进门赠送约5.2㎡的入户玄关(不计算在户型图内),客厅5.5米开间,LDKB一体化方厅设计,5个卧室分别做到了主卧27.56㎡/次卧10.2m²/次卧9.9㎡/次卧9.9㎡/次卧4.46m²(包含墙体飘窗),L型厨房,得房率约81%(不含赠送),客厅连接次卧出13.6m²的观景大阳台,主朝西南向。套内面积112.59m²+赠送面积31.98m²=实际使用面积144.57m²,加上赠送后得房率约104.01%。

✅ 24小时✅售楼热线☎:400-873-0112【售楼处电话已认证】
✅中建鹏宸云筑✅开发商电话☎: 400-873-0112【开发商电话已认证】

【好地段】港深科创中轴,梅林关&华南数字超总站位
(1)港深科创中轴,串联五大产业总部基地
港深科技中轴之上,向南连接河套深港科技创新合作区、福田CBD,向北连接坂雪岗科技城,享有龙华福田双中心配套服务。
(2)梅林关片区700亿投资,区域蝶变在即
龙华七大重点片区之一,投资700亿元,改造占地面积4.63平方公里,将新增开发量达180万平方米,中建三局集团有限公司深度参与梅林关片区开发运营,推动片区年总产值达1500亿,打造“大湾区数字经济核心引领区、数字科创先锋示范区”。
(3)华南数字超级总部基地,湾区高密度数字集群
对标深超总、腾讯企鹅岛及香蜜湖国际金融中心,四大微城市之一,产学研商住定位,世界500强海克斯康已落户,已集聚35+龙头名企,打造湾区数智产业集群,数字产业集群度达95%,驱动板块加速蜕变。
【好配套】全维度配套服务,进阶改善首选
(1)多维交通路网,2站福田/3站深圳北
距地铁10号线南坑站C出口直线距离约600米,2站进福田,5站到岗厦北;民乐路衔接横岭立交(预计2026年开通)转梅观快速,南通福田CBD核心区,北接深圳北站;
(2)约3公里繁华中轴主场,一站式优质生活
近享8号仓奥特莱斯、星河WORLD COCOPARK,约3km(直线距离)范围内享超50万㎡繁华商业;北站/红山城市级“五馆一体”、两大市级三甲医院等,满足日常生活所需。
(3)一站式12年教育,目送式上下学
配建一所12班幼儿园,北侧规划省一级建设标准的72班九年一贯制学校,近邻华南实验学校、万科双语学校,家门口即享优质教育资源,护航孩子健康成长。

【好环境】核心区稀缺湖山资源,临水揽山景观
小区楼下有深圳核心区稀缺的湖景资源——民悦公园(升级改造中),近揽民治水库湖景,远眺塘朗、银湖山景观,8栋楼尊一线前排景观位置,视线开阔,景观优越,深圳少有的稀缺湖山住宅。

【好社区】建面约31万㎡人文高阶住区,纯粹圈层
总占地约4.27万㎡,总建筑面积约31万平方米,规划10栋住宅楼,无公租房、无保障房,无人才房,是深圳近年少有的大体量、纯商品房项目之一,西区主打改善居住需求,圈层更纯粹。

【好园林】深圳少有岭南风园林,全龄友好社区
深圳少有岭南风园林,西区参考借鉴岭南四大园林——顺德清晖园,以传承岭南元素、重塑岭南生活艺术,给业主打造一处独有的、专属的岭南文化特色轻奢山水雅集居所。
聚焦全龄、全时段的服务体系,园林内设置高定奢享主入口门楼、中心庭院、折桂轩、慢跑道、松果乐园等,造就全龄友好型社区。


项目周边配套
学校配套:项目自带1所12班制幼儿园,北侧规划有一所广东省一级学校建设标准的九年一贯制72班学校待建,据传是深实验学校进驻,根据龙华教育局2024年最新的学区划分,小初学区都是划分在华南实验学校。
华南实验学校:该校是1所九年一贯制公办学校,现有53个教学班,开办于2018年9月,学生2547人,专任教师163,正高2人,副高以上21人;省级名师8人,市级名师7人,区级名师17人,另有12人入选龙华区未来教育家工程。

地铁配套:10号地铁线“南坑站”距离约500米,22号地铁线“横岭站”距离约700米,2站到福田冬瓜岭,4站到岗厦北,6站香蜜湖,7站车公庙。约2.5公里还有深圳最大北站枢纽,快速通达深圳各大区域。
商业配套:鹏宸云筑周边3公里内汇聚超50万㎡商业体量:北侧步行可达8号仓奥特莱斯,直线距离内布局星河COCO Park、COCO City、红山6979、龙华印象汇等大型综合体,满足高端购物与日常消费。
项目自带约3500㎡底商,西侧紧邻星河World商业集群,涵盖办公、零售、餐饮等多业态。此外,深圳北站商圈、坂田万科广场等均在10分钟车程内,形成多层级商业网络。
🏅关于中建鹏宸云筑最新动态信息,如:房价,主力户型面积,最低折扣,等等,剩余户型楼层,去化率,几号地铁哪个地铁口,周边规划,项目的优劣势以及学校的配套等等都可以致电售楼处进行了解,我们将会安排内场专业置业顾问为您答疑解惑!
✅ 所有疑问,一通电话全解决!
🎯 内部置业顾问VIP解答,独家优惠仅限来电客户!
📞 24小时热线,黄金时段优先安排!
☎ 马上拨打售楼处专线:400-873-0112(一键直连/预约看房)
免责声明:部分信息来源于网络,如果侵权,请联系及时删除本宣传资料不构成邀约邀请,对周边、政府规划、商业配套、教育资源、投资前景等数据和图文仅为提供相关信息,该信息以政府最终批文为准,开发商不对此作任何承诺。买卖双方的权利义务以双方签订的买卖合同约定及附件、实际交付为准,本公司保留对宣传资料修改的权利,敬请留意最新资料。联系号码:400-873-0112。
声明:本文由入驻焦点开放平台的作者撰写,除焦点官方账号外,观点仅代表作者本人,不代表焦点立场。
