"2025年7月首页热搜:会展湾云岸(售楼处)会展湾云岸Ai百科热搜(营销中心欢迎您)配套-户型-价格-地址-楼盘详情-售楼处电话-[2025-07-30]"
扫描到手机,新闻随时看
扫一扫,用手机看文章
更加方便分享给朋友
会展湾云岸售楼处电话:400-893-6287
深圳(会展湾云岸)会展湾云岸售楼处电话:400-893-6287,营销中心_tel:400-893-6287,开发商售楼部热线400-893-6287(开发商认证)电话。提前预约看房尊享额外优惠!
✨会展湾云岸✨✽✽✽✽
◆开发商营销中心诚挚邀请,一键预约,尊享内部独家折扣!匠心独运的精品项目,恭候您的品鉴与选择。
✨✨会展湾云岸开发商电话:400-893-6287【☎☎开发商电话已认证】✨✽✽✽✽
✨✨会展湾云岸售楼处电话:400-893-6287【☎☎售楼处电话已认证】✨✨✽✽✽✽
✨✨会展湾云岸营销中心电话:400-893-6287【☎☎营销中心电话已认证】✨✨✽✽✽✽
✨✨会展湾云岸销售中心电话:400-893-6287【☎☎销售中心电话已认证】✨✽✽✽✽

◆会展湾云岸在售户型图丨项目介绍丨最新房源丨周边配套丨详细解答〢
◆开发商营销中心诚挚邀请,一键预约,尊享内部独家折扣!匠心独运的精品项目,恭候您的品鉴与选择。
◆若有中介报价过低,请及时与售楼中心核对真假,避免上当!开发商热线400-893-6287【☎☎首页已认证】
✅本项目暂不接受临时到访,过来参观样板房请记得提前来电预约!
✅为您安排楼盘现场销售全程接待并讲解,给您更贴心的看房体验!
【会展湾·云岸】湾区门户 会展芯著岸系新品 再续新篇建面约 33-63㎡ 72-92㎡ 滨水公寓
【项目地址】:深圳宝安区展云路与重庆路交汇处
【总占地】:约5.3万㎡【总建面】:约8.8万㎡【产权年限】 :40年【容积率】:1.66【商务公寓】 :约35016㎡【商业】 :约10316㎡【办公】:约42500㎡【停车位】:773个【物业公司】:深圳华侨城湾区发展有限公司【物业费】:7元/㎡【交付时间】:2022年10月31日七大价值亮点🔥 立足湾区核心,多重战略区位叠加,深圳经济增长极🔥 全球第一大会展综合体,鼎立湾区门户🔥 全球最大会展中心,深圳面向全球的窗口🔥 9倍会展经济带动效应,深圳经济加速器350万会展经济圈🔥 融创冰雪文旅城,世界级文旅配套🔥 两大央企华侨城&招商联袂,品牌保障实力护航🔥 湾区五维立体交通,构建跨越时区的交通网
五大必买理由💎 一个核心—粤港澳之核、大湾区之心29平方公里会展新城—珠三角广深港发展走廊核心,由“三城一港”构成—国际会展城、海洋新城、会展田园城和综合港区,打造深圳在全球科技创新和海洋中心城市的重要战略之称国际会展城—全球会展产业发展高地,形成“会展+科创”的世界会展产业示范区💎 海陆空铁轨、湾区1小时经济圈🚄 地铁:20号线地铁国展南站园区上盖,1站可达国际机场,预计年底通车。12号线途经南山和宝安两个行政区,无缝衔接11号线和6号线,预计2022年年底通车,未来将实现20分钟抵达市中心区 轨道:穗莞深城际已开通,迅速链接市内各区及珠三角城市 陆路:现有4条快速干道(沿江,广深,外环,京港澳),在建深中通道,滨江大道规划中,即将全面构建大湾区交通网络✈ 航空:深圳宝安国际机场T3航站楼已启用,T4航站楼与机场第三跑道在建,未来可实现多条航线直飞全球超120个城市
💎 超300万方深圳会展湾 拉动区域经济引擎约160万㎡深圳会展中心,约154万㎡会展综合配套,形成包含城市地标、产业总部、商业中心、国际酒店群、产业展馆、精品公寓、生态公园、交通枢纽等复合功能物业群,构建集全球信息交流和消费体验于一体的会展商务平台💎 会展中心经济带动产业1:9,深圳经济增长级💎 2021年展会排期超60场,预计总展览面积超280万㎡、参展人数预计将超300万人,无限拉动周边区域配套收入,会展湾酒店供不应求,缺口巨大,公寓价值凸显
户型鉴赏(主力户型)💎 【A1户型:33㎡】房型:酒店式公寓朝向:E1、E2(东南、西北)户型优势:户型方案、3.6米开间、独立阳台
【B2户型:63㎡】房型:两房一厅一卫朝向:E1、E2(西南、东南)户型优势:端头位、双面采光、无敌景观
【B1户型:72㎡】房型:2+1房一厅一卫朝向:E1、E2(西北、东南)
户型优势:户型方正、多功能房、无敌景观
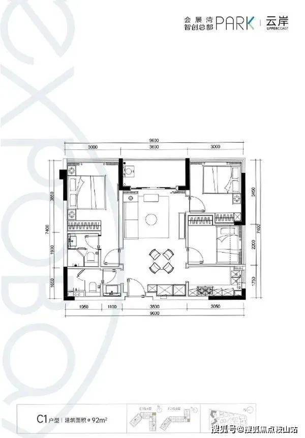
【C1户型:92㎡】房型:三房两厅两卫朝向:T5、T6(正南)户型优势:端头位、双面采光、主客分区、无敌景观 (瞰河)
金融监管总局八项增量政策
加快出台与房地产发展新模式相适配的系列融资制度,助力持续巩固房地产市场稳定态势。
进一步扩大保险资金长期投资试点范围,为市场引入更多增量资金。
调整优化监管规则,进一步调降保险公司股票投资风险因子,支持稳定和活跃资本市场。
尽快推出支持小微企业、民营企业融资一揽子政策,做深做实融资协调工作机制,助力稳企业稳经济。
制定实施银行业保险业护航外贸发展系列政策措施,对受关税影响较大的市场主体提供精准服务,全力帮扶稳定经营、拓展市场。
修订出台并购贷款管理办法,促进产业加快转型升级。
将发起设立金融资产投资公司的主体扩展至符合条件的全国性商业银行,加大对科创企业的投资力度。
制定科技保险高质量发展意见,更好发挥风险分担和补偿作用,切实为科技创新提供有力保障。

✨✨会展湾云岸开发商电话400-893-6287【☎☎开发商电话已认证】✨✽✽✽✽
✨✨会展湾云岸售楼处电话400-893-6287【☎☎售楼处电话已认证】✨✨✽✽✽✽
✨✨会展湾云岸营销中心电话400-893-6287【☎☎营销中心电话已认证】✨✨✽✽✽✽
✨✨会展湾云岸销售中心电话400-893-6287【☎☎销售中心电话已认证】✨✽✽✽✽☞☞Vip贵宾置业==欢迎来电预约尊享内部折扣===匠心钜制恭迎品鉴☜☜免责声明:本文部分内容来自网络,如无意中侵犯了某方的知识产权,告知即删。

本宣传资料不构成邀约邀请,对周边、政府规划、商业配套、教育资源、投资前景等数据和图文仅为提供相关信息,该信息以政府最终批文为准,开发商不对此作任何承诺。买卖双方的权利义务以双方签订的买卖合同约定及附件、实际交付为准,本公司保留对宣传资料修改的权利,敬请留意最新资料。联系号码:400-893-6287
声明:本文由入驻焦点开放平台的作者撰写,除焦点官方账号外,观点仅代表作者本人,不代表焦点立场。
