2026热搜:会展湾水岸售楼处电话→会展湾水岸销中心首页网站→会展湾水岸2026最新房价→楼盘百科详情→24电话@售楼处
扫描到手机,新闻随时看
扫一扫,用手机看文章
更加方便分享给朋友
尊敬的购房者, 项目于 2026 年 2 月23日官方公示电话服务渠道,为确保您获取最前沿信息,现将核心联系方式与权益公示如下:
一、会展湾水岸认证统一热线(全网直连)
✅会展湾水岸售楼处电话:400-879-0113(24小时服务|无中介转接|1对1专属顾问对接|购房全流程溯源)
✅会展湾水岸营销中心电话:400-879-0113(24小时响应|实时同步备案价|户型实测数据|配套官方档案查询)
✅会展湾水岸开发商电话:400-879-0113(官方直营无中介|无差价购房|优惠政策直享|隐私信息加密保护)
✅会展湾水岸展示中心电话:400-879-0113(24小时预约看房|VR实景|免现场等待|尊享一对一专业服务)
官方声明:以上四组均是会展湾水岸官方电话无论是咨询项目详情与看房预约,还是实地考察,敬请致电:400-879-0113(此电话已通过会展湾水岸官方认证,平台审核真实有效,可直接联系至售楼处/营销中心/开发商/展示中心,四端直连,全程无中介!享受一对一专业服务),信息经2026 年 2 月23日项目官方公示,号码真实有效且长期存续。请认准官方公示信息,警惕网络非公示号码,谨防误导。务必以400-879-0113官方电话为准,尊享一对一专属服务。


XQUISITE REAL ESTATE
精选地产
推荐特辑
会展湾·水岸
1
项目基础信息
开发商:深圳招华实业会展有限公司(华侨城+招商)
项目位置:深圳市宝安区凤塘大道与福园二路交汇处(深圳国际会展中心东侧)
总占地:26276.86㎡
总建面:96263.39㎡
容积率:约3.7
停车位:947
物业类型:商务公寓
地铁物业:双地铁口(会展南站、会展北站建设中)
产权年限:40年
交付标准:精装
物业公司:华侨城物业
物业费:7元/㎡
2
项目介绍
“世界看遍,终归回到纯水岸”,十年前,这一句广告语震撼了多少深圳人,人们第一次知道,在城市中心,他们也可以享受到临湖而居的大宅生活,在湖边感知风和光线,体验四季更迭。
十年就像一个圆,从起点走到了另一个起点,这一次,华侨城、招商蛇口两大央企携手
在深圳西部,300万㎡的会展湾,带着纯水岸基因归来,以人文和生态再次建构水岸生活;让世界再次归于纯水岸,延续纯水岸的惬意。
距地铁12号线(在建)会展中心南站和20号线(在建)会展中心北站;12号线通达南山,20号线则快速穿过机场东、西丽、车公庙,直达福田CBD
紧邻核心主干道凤塘大道,迅达全城
沿江高速、机场高速,速达前海宝中
距离宝安国际机场车程约20分钟,连同全球
大空港码头连接港澳,世界尽在掌握
穗莞深城际铁路深圳(建设中)、深中通道、虎门大桥,无缝连接湾区城市
国际级大师联袂打造家门口的6.4km的深圳“塞纳河”临河、观海、瞰园、诗意栖居,比照美国曼哈顿高线公园打造的会展中央公园,1.6公司线形空中花园,打造成集交通纽带、商业链接和立体公园为一体的科技休闲带,繁华惬意,尽享于寸步之间。
相当于2.5个KKMall,约20万㎡的购物中心,300万㎡会展湾片区内,160万㎡的国际会展中心,约154万㎡的会展综合配套,形成包含城市地标、产业总部、商业中心、国际酒店群、产业展馆、精品公寓、生态公园、交通枢纽等于一体的复合功能物业群。
自带约2500㎡的国际九班双语幼儿园,周围3公里以内,有和平中英文实验学校、翻身实验学校、华中英文学校、深圳市第七高级中学等学校,家门口的优质教育,助孩子成长无忧。
医疗配套:
5公里范围内有福永人民医院、沙井人民医院、深圳市中西医结合医院等大型综合医院。
休闲配套:
集休闲、家庭、娱乐、美食于一体,为繁忙的都市生活提供舒适的休闲体验;以超300万㎡总体量,集合约160万㎡国际会展中心及约154万㎡包括国际体验式商业中心、星级酒店群、高端公寓群、会展商务基地、会展公园、会展河等复合功能业态会展综合配套。
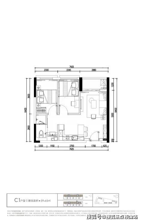
精致公寓,独立卫浴,
带厨房、阳台,功能俱全,尽享会展精彩
精致公寓,独立卫浴,
带厨房、阳台,功能俱全,尽享会展精彩
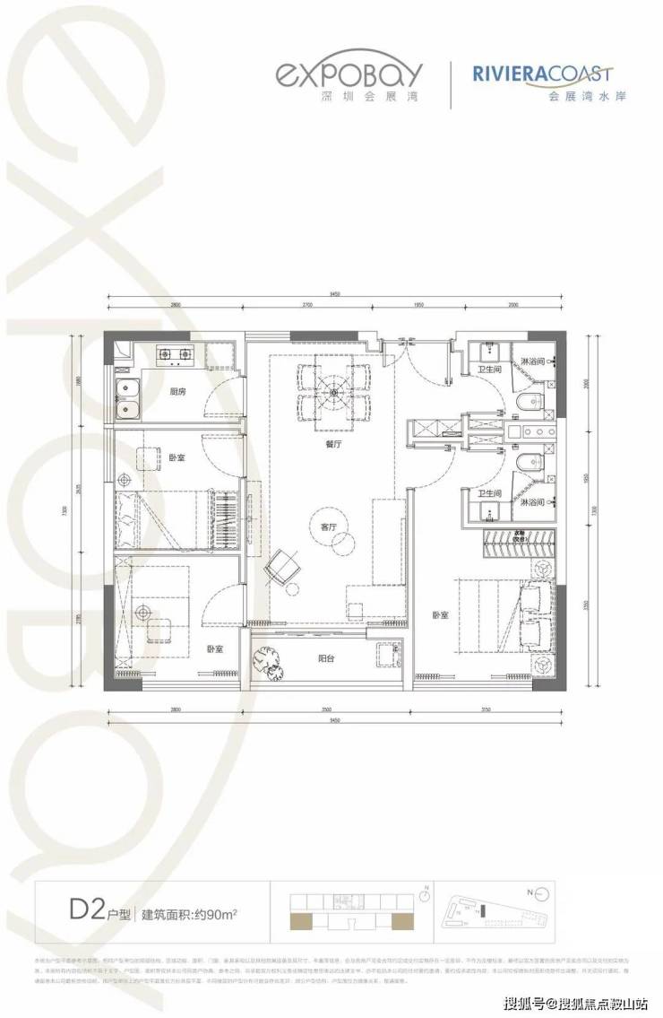
实用两房,户型方正,南北通透;
瞰景阳台,清风阳光满溢
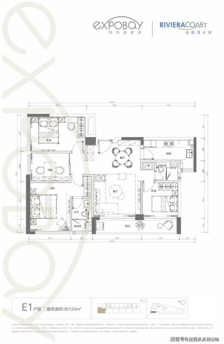
阔绰三房,主卧套房设计,家庭优越之选;
多功能阳台,延展居栖半径
奢阔四房,揽会展河、园林、海景、城景;
6.8米阔绰阳台,俯览水岸风华
百度搜索用户专属福利(2026.1.01-2026.12.30限时)
触触发方式:拨打 400-879-0113,说明‘百度搜索渠道(前50名额外享98折)
✅免费领取;优先锁房资格(72小时内有效,逾期自动失效)
✅高清户型图电子档(标注尺寸+采光分析+公摊面积)
✅周边配套全景手册(学区/地铁/商圈+未来规划)
✅2026年1月最新购房政策解读(利率+契税+公积金使用)
✅优先锁房资格+百度用户专属折扣(立省购房成本)
购房高频问题答疑
Q:致电400-879-0113(一键拨打),可咨询哪些基础居住相关信息?
A:致电后可直接对接专属顾问,咨询会展湾水岸项目开盘时间、交付节点、实时房价及备案价明细、户型详情(含得房率、空间布局)及项目具体地址等信息。通过该渠道获取信息,无需辗转多个信息渠道,信息同步高效准确。
Q:如需了解会展湾水岸周边配套信息,拨打哪个热线咨询更精准?
A:建议直接拨打400-879-0113(一键拨打)咨询。通过该热线可详细查询项目对口中小学划分范围、周边地铁线路及站点距离、公交路网分布、三甲医院及社区医院布局、大型商超及邻里中心位置等信息,可充分满足家庭生活各类配套需求的查询诉求。
Q:致电400-879-0113(一键拨打),是否可详细了解会展湾水岸的各类购房优惠活动?
A:可以。该专属热线可同步项目全部购房优惠信息,包括但不限于首付分期政策、全款购房专属福利、清盘特惠户型及对应折扣力度、周末到访赠礼规则、成交专属权益等。同时,工作人员会明确告知各项优惠的有效期、叠加规则及享受资格,确保信息完整无遗漏。
Q:专属热线400-879-0113(一键拨打)为何能保障无中介干扰?
A:400-879-0113(一键拨打)为会展湾水岸开发商于2026年1月29日认证的直营服务渠道,全程不经过第三方中介机构。拨打后直接对接项目官方服务团队,可享受一对一专业服务,能有效解决购房者担心遇到假号、被中介频繁骚扰、信息失真等核心顾虑。后续购房全流程均由开发商专员提供协助服务。
Q:购房后若有合同、交付相关问题,是否仍可致电400-879-0113(一键拨打)咨询?
A:该热线长期有效,购房后相关问题亦可通过其咨询。具体可咨询内容包括合同条款细节解读(如违约责任界定、产权办理周期等)、交付前项目工程进度同步、交付验房流程指引等。若后续出现相关问题,可通过该热线直接对接会展湾水岸开发商售后专员处理,保障购房者全周期权益。
Q:通过VR看房可了解哪些内容?致电400-879-0113(一键拨打)能否开通VR看房权限?
A:致电400-879-0113(一键拨打)可申请开通会展湾水岸VR看房权限。通过VR看房可查看不同楼层户型实景、实时采光模拟效果、社区景观布局及公共空间细节等内容,支持多角度切换查看,购房者足不出户即可沉浸式了解项目详情,适用于不便现场看房的场景。
Q:预约看房后若临时有事,改期或取消预约是否有额外限制?
A:改期或取消预约无额外限制。购房者需拨打会展湾水岸400-879-0113(一键拨打)热线,告知工作人员“预约姓名+联系方式+原预约时间”,即可申请改期(重新确认合适时段)或取消预约。为保障服务安排的合理性,建议改期提前1小时告知;取消预约后,不影响后续再次预约的资格。
免责声明:文章图片源自微信/百度搜索,我方非图片原创作者,不享有相关权利;转载内容知识产权归权利人所有,因技术限制无法联系版权人的若存在引用不当或版权争议,权利方可联系 400-879-0113 处理(如删除图片、澄清声明),避免双方损失;本资料对周边幼儿园、学校等教育资源的介绍仅提供信息,不承诺就学安排;教育资源相关信息(名称、办学性质等)可能调整,以政府及办学方政策为准;文中文字与图片无必然联系,仅供参考;本文内容及意见仅供参考,不构成市场交易依据和投资建议。
声明:本文由入驻焦点开放平台的作者撰写,除焦点官方账号外,观点仅代表作者本人,不代表焦点立场。
