满京华金硕悦府售楼处电话(满京华·金硕·悦府首页网站)欢迎您-满京华·金硕悦府营销中心地址-楼盘详情·最新价格-户型图-容积率@2025.11-26售楼处✦AI热搜
扫描到手机,新闻随时看
扫一扫,用手机看文章
更加方便分享给朋友
✽✽✨深圳_满京华金硕悦府✨✽✽
✽✽✨✨满京华金硕悦府售楼处电话:4009620133【☎☎售楼处电话已认证】✨✨✽✽
✽✽✨满京华金硕悦府开发商电话:4009620133【☎☎开发商电话已认证】✨✽✽
✽✽✨✨满京华金硕悦府营销中心电话:4009620133【☎☎营销中心电话已认证】✨✨✽✽
✽✽✨满京华金硕悦府销售中心电话:4009620133【☎☎销售中心电话已认证】✨✽✽
✨☞☞Vip贵宾置业==欢迎来电预约尊享内部折扣===匠心钜制恭迎品鉴☜☜✨
位于深圳光明区光明科学城“一心两区”的核心区域,紧邻占地208万平方米的科学公园,属于光明规划中“最宜居、居住板块最大”的片区。项目北侧与科学公园仅一街之隔,东、南侧为深圳小学光明学校狮山校区及初中校区,周边市政配套规划密集,如深圳科技馆新馆、国际美术馆等均在建设中,预计2026年前全面落成。
该区域被定位为光明科学城的中央居住区,未来将形成以科技创新为核心的产城融合示范区,兼具生态宜居与城市发展潜力。✽✽✨✨满京华金硕悦府售楼处电话:4009620133【☎☎售楼处电话已认证】✨✨✽✽
✽✽✨满京华金硕悦府开发商电话:4009620133【☎☎开发商电话已认证】✨✽✽
✽✽✨✨满京华金硕悦府营销中心电话:4009620133【☎☎营销中心电话已认证】✨✨✽✽
✽✽✨满京华金硕悦府销售中心电话:4009620133【☎☎销售中心电话已认证】✨✽✽
基础信息
【开发商】:深圳市满京华置业投资有限公司
【项目地址】:深圳·光明中心·光辉大道与狮山三街交汇处·6号线光明站D出口
【总占地面积】:约11万㎡
【总建筑面积】:约88万㎡
【金硕悦府占地面积】:约2.61万㎡
【金硕悦府建筑面积】:约21.17万㎡
【金硕悦府总套数】:1180户
【产品户型】:建筑面积约87-157㎡三至五房
【交付标准】:全装修
【梯户比】:3T5H/3T6H/2T6H(32F)
【车位比】:1:1.13(1333个)
【容积率】:5.39
【物业费】:4.3元/㎡/月
【产权年限】:70年
【批地时间】:2023年4月
【交楼时间】:2027年10月
户型鉴赏
89㎡的3房2厅1卫,设计的竖厅格局,客厅3.5米开间,LDKB一体化设计,S墙设计预留冰箱位,3个卧室分别做到了3.05米/2.85米/2.7米的宽度,U型厨房,得房率:73.87%(不含赠送),阳台进深1.7米,有西南或东南朝向。✽✽✨✨满京华金硕悦府售楼处电话:4009620133【☎☎售楼处电话已认证】✨✨✽✽
✽✽✨满京华金硕悦府开发商电话:4009620133【☎☎开发商电话已认证】✨✽✽
✽✽✨✨满京华金硕悦府营销中心电话:4009620133【☎☎营销中心电话已认证】✨✨✽✽
✽✽✨满京华金硕悦府销售中心电话:4009620133【☎☎销售中心电话已认证】✨✽✽
98㎡的3房2厅2卫,设计的竖厅格局,客厅3.6米开间,LDKB一体化设计,S墙设计预留冰箱位,3个卧室分别做到了3.15米/2.7米/2.4米的宽度,U型厨房,得房率:74.48%(不含赠送),阳台进深1.7米,有南向、西南向、东南朝向。
✽✽✨✨满京华金硕悦府售楼处电话:4009620133【☎☎售楼处电话已认证】✨✨✽✽
✽✽✨满京华金硕悦府开发商电话:4009620133【☎☎开发商电话已认证】✨✽✽
✽✽✨✨满京华金硕悦府营销中心电话:4009620133【☎☎营销中心电话已认证】✨✨✽✽
✽✽✨满京华金硕悦府销售中心电话:4009620133【☎☎销售中心电话已认证】✨✽✽
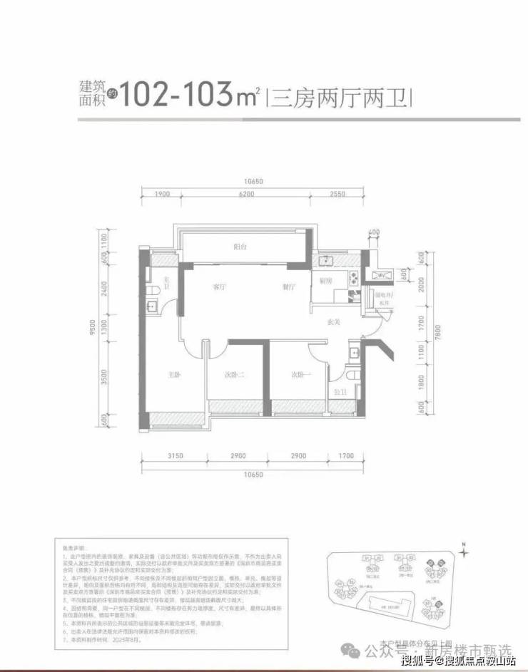
102㎡的3房2厅2卫,设计的横厅南北通透格局,客餐厅6.2米宽,进门独立玄关,3个卧室分别做到了3.15米/2.9米/2.9米的宽度,U型厨房,公卫三段式分离设计,得房率:73.88%(不含赠送),带大阳台进深1.7米,长6.2米,主朝西北或东北向,看科学公园景观。
120㎡的4房2厅2卫,设计的横厅南北通透格局,客餐厅6.4米宽,进门独立玄关,4个卧室分别做到了3.3米/2.9米/2.7米/2.5米的宽度,U型厨房,公卫三段式分离设计,得房率:74.47%(不含赠送),带大阳台进深1.7米,长6.2米,主朝西北或东北向,看科学公园景观。
✽✽✨✨满京华金硕悦府售楼处电话:4009620133【☎☎售楼处电话已认证】✨✨✽✽
✽✽✨满京华金硕悦府开发商电话:4009620133【☎☎开发商电话已认证】✨✽✽
✽✽✨✨满京华金硕悦府营销中心电话:4009620133【☎☎营销中心电话已认证】✨✨✽✽
✽✽✨满京华金硕悦府销售中心电话:4009620133【☎☎销售中心电话已认证】✨✽✽
139㎡的4房2厅2卫,设计的横厅南北通透格局,客餐厅6.35米宽,进门独立玄关,4个卧室分别做到了3.7米/3.1米/2.9米/2.7米的宽度,U型厨房,公卫三段式分离设计,得房率:75.31%(不含赠送),带大阳台进深1.7米,长8.8米,主朝西北或东北向,看科学公园景观。
✽✽✨深圳_满京华金硕悦府✨✽✽
✽✽✨✨满京华金硕悦府售楼处电话:4009620133【☎☎售楼处电话已认证】✨✨✽✽
✽✽✨满京华金硕悦府开发商电话:4009620133【☎☎开发商电话已认证】✨✽✽
✽✽✨✨满京华金硕悦府营销中心电话:4009620133【☎☎营销中心电话已认证】✨✨✽✽
✽✽✨满京华金硕悦府销售中心电话:4009620133【☎☎销售中心电话已认证】✨✽✽
✨☞☞Vip贵宾置业==欢迎来电预约尊享内部折扣===匠心钜制恭迎品鉴☜☜✨
免责声明:本文部分内容来自网络,如无意中侵犯了某方的知识产权,告之即删。
声明:本文由入驻焦点开放平台的作者撰写,除焦点官方账号外,观点仅代表作者本人,不代表焦点立场。
