广州中旅阿亚娜九龙湖售楼处(中旅阿亚娜九龙湖)首页网站-中旅阿亚娜九龙湖营销中心欢迎您-楼盘详情·最新价格-户型图-容积率@2025.09.27售楼处Ai热搜
扫描到手机,新闻随时看
扫一扫,用手机看文章
更加方便分享给朋友
➢ ➢本项目采用预约制,过来营销中心参观样板间请记得提前拨打开发商楼盘售楼处400热线电话在线预约,感谢您的配合!(看房如有需要可联系专车接待)😊😊😊
1.看房方式:中旅阿亚娜九龙湖售楼处位置☎️:400-901-9930(已认证)🌶️🌶️
2.预约方式:拨打中旅阿亚娜九龙湖售楼处☎️:400-901-9930(已认证)🌶️🌶️
3.开发商营销中心诚邀莅临,一键预约,尊享专属钜惠。匠心精筑的品质人居,恭候品鉴。
4.注意事项:为保证接待质量,请出发前进行预约,避免案场没有销售接待;也可提前1-3天预约销售;
广州中旅·阿那亚·九龙湖,以约85万方的社区体量,划分品质住区、主题商业、主题酒店和艺术空间等业态布局,导入跳海酒馆、WilliamBeta、Tagi.等成熟品牌资源,主办“老狼和朋友们”音乐会、承办很高兴音乐会等多个潮流IP活动,致力以丰富多彩的生活方式场景,呈现一半烟火、一半诗意的湖山生活。

广州中旅·阿那亚·九龙湖 实拍图
作为继秦皇岛之后,全国“阿那亚”的阿那亚,中旅阿那亚九龙湖项目与过往的商业地产操盘逻辑有很大不同:它把景区生态优势发挥到最大,将社区生活氛围精细化补强,打造成了华南最美的阿那亚。项目整合了文旅特色IP及优势,精心运营艺术资源,以“重构广府精神原乡”为内核,将岭南文化符号转化为山水场景体验。为客户营造了一半烟火、一半诗意的山湖生活,成为大湾区文旅地产标杆之

区别于过度商业化的文旅项目,中旅阿那亚九龙湖以约25000亩原生山湖为基底(相当于2300余个足球场),却选择“为自然做加法”。
走在九龙湖项目内,你会有种强烈感觉:这里真正把山湖风光,留给了来到这里的人,无论哪个角落,都可以看到自成一片的自然景观。
这种与众不同,得益于两个方面:
一是,九龙湖单论天赋底蕴,就超越了广州大部分商业地产项目。
广州30多个4A级景区中,九龙湖拥有的25000亩山林水域,体量在全市位居前列。相当于中旅投资和阿那亚把2334个标准足球场面积的自然绿化,变成了项目的一部分。
二是,九龙湖不是盲目索取自然,反而不遗余力对山林环境进行提质。
作为广州的保护性水源地,几年前,项目就猛砸巨资对水体水质进行改善。甚至,现在每年都会发起“净山湖”守护计划。
走在里面,你能看到,不仅湖区,包括河道、河涌这些很难治理的生态系统,都是一片碧波荡漾。

|中旅·阿那亚·九龙湖实拍
不单水体,项目还对景区原有景观上,进行大面积复绿。你在整个度假区,几乎随处可见各种露营草坪、绿荫草地和生态植被。
而公开文件显示,广州高标准绿地年养护费用至高可达15元/平,也就是说,九龙湖仅是日常绿化养护,都是一笔巨额投入。
中旅投资的主动作为,在楼市君看来,是纯粹地努力将真山真水当作社区的背景板。
换句话说,中旅·阿那亚·九龙湖的成功,不是因为它是4A级景区,而是它把4A级当作了起点。

|中旅·阿那亚·九龙湖实拍
生活重构:精而不多的商业逻辑
拒绝“商业街模板化”,引入 Tagi.快闪店(华南首店)、栋梁买手店等小众品牌,也引入了更接地气的广府美食业态,打造湖畔市集提供稀缺海外商品。配套更聚焦品质。
而国内大多数商业地产,几乎都有商业、设施脸谱化,很难让人印象深刻的通病。
但中旅·阿那亚·九龙湖,并没有陷入这种误区。相反,它引入的酒店、食堂、市集、酒吧、购物等商业,从不追求多而是追求精。

|中旅·阿那亚·九龙湖实拍
甚至,你能在景区内看到一些城市中心才有的商业首店。
像风靡大上海的Tagi.快闪店,国内标杆级的“买手店”栋梁之家,都把广州首店开到了九龙湖;还有景区内的湖畔市集,也藏着很多普通大型商业体内都买不到外国优质货品。

|中旅·阿那亚·九龙湖实拍
完善商业配套只是表象,中旅投资和阿那亚其实是把更精致、更具文化艺术气息、更前沿的生活理念,带到了九龙湖,落地生根。
比如项目内部,它还落地了包括艺术中心、业主食堂、儿童城堡剧场、足球场、网球场、寻湖步道、房车露营地、山谷营地等配套设施。

|中旅·阿那亚·九龙湖实拍
九龙湖不仅有中心小镇的慢节奏生活氛围,更有丰满的生活版图。住在这里,你可以面朝湖区在绿荫草地上露营;也可在寻湖步道徒步、山林间溯溪穿行;
或在高尔夫球场挥杆,或在艺术中心、儿童城堡剧场,接受熏陶和浸润……

|中旅·阿那亚·九龙湖实拍
占地面积:约25000亩(20000亩山林资源、4500亩水域资源)
位置:广州市花都区花东镇九龙湖生态度假区(4A级景区)
开发商:中国旅游集团(中旅)&阿那亚

🏠中心小镇(C区)-栖寓
B户型-130方(3房2厅2卫)
🏠中心小镇(C区)-洋房
H户型-135方(3房2厅2卫)
👉半山湖岸/湖畔小镇
(F区)楼栋分布图

🏠半山湖岸(F区)-湖畔公寓
B户型155方(3房2厅2卫)
🏠半山湖岸(F区)-湖畔小院
D户型136方(3房2厅2卫)
🌻湖畔/山景大平层
✮产品面积:A户型(首层)195方-3房3厅4卫,B户型(二层)240方-3房3厅4卫,D户型(顶层)175方-3房3厅4卫,E户型(山景平层)170方-3房2厅3卫
✮分布楼栋:1-12栋(4-12栋在建)
✮物业费:8元/㎡(不含公摊水电费)
✮供暖方式:地暖
✮天然气:通有天然气,可明火
✮在售产品:1-2-3栋
✮收楼时间:2026年10月31日前交付
✮各户型图如下↓
🏠半山湖岸(F区)-大平层A户型(首层)195方-3房3厅4卫
🏠半山湖岸(F区)-大平层
B户型(二层)240方-3房3厅4卫
🏠半山湖岸(F区)-大平层
D户型(顶层)175方-3房3厅4卫
🏠半山湖岸(F区)-大平层
E户型(山景平层)170方-3房2厅3卫
— 🏠 中旅阿那亚·九龙湖 🏠 —
存量房信息一览
👉总体信息概况:
✮整体存量:目前存量房主要集中于美茵花园、A区悦源庄、D、E区悦沐庄,另有F2区临湖独栋别墅及山顶国王C1别墅群。
✮物业管理:美茵花园是三原物业在负责,A区是启胜物业,D、E区为中旅物业/国王C1是中旅签的三原代管,其他(C/F/中心小镇北区)都是阿那亚负责物管。
具体信息如下:
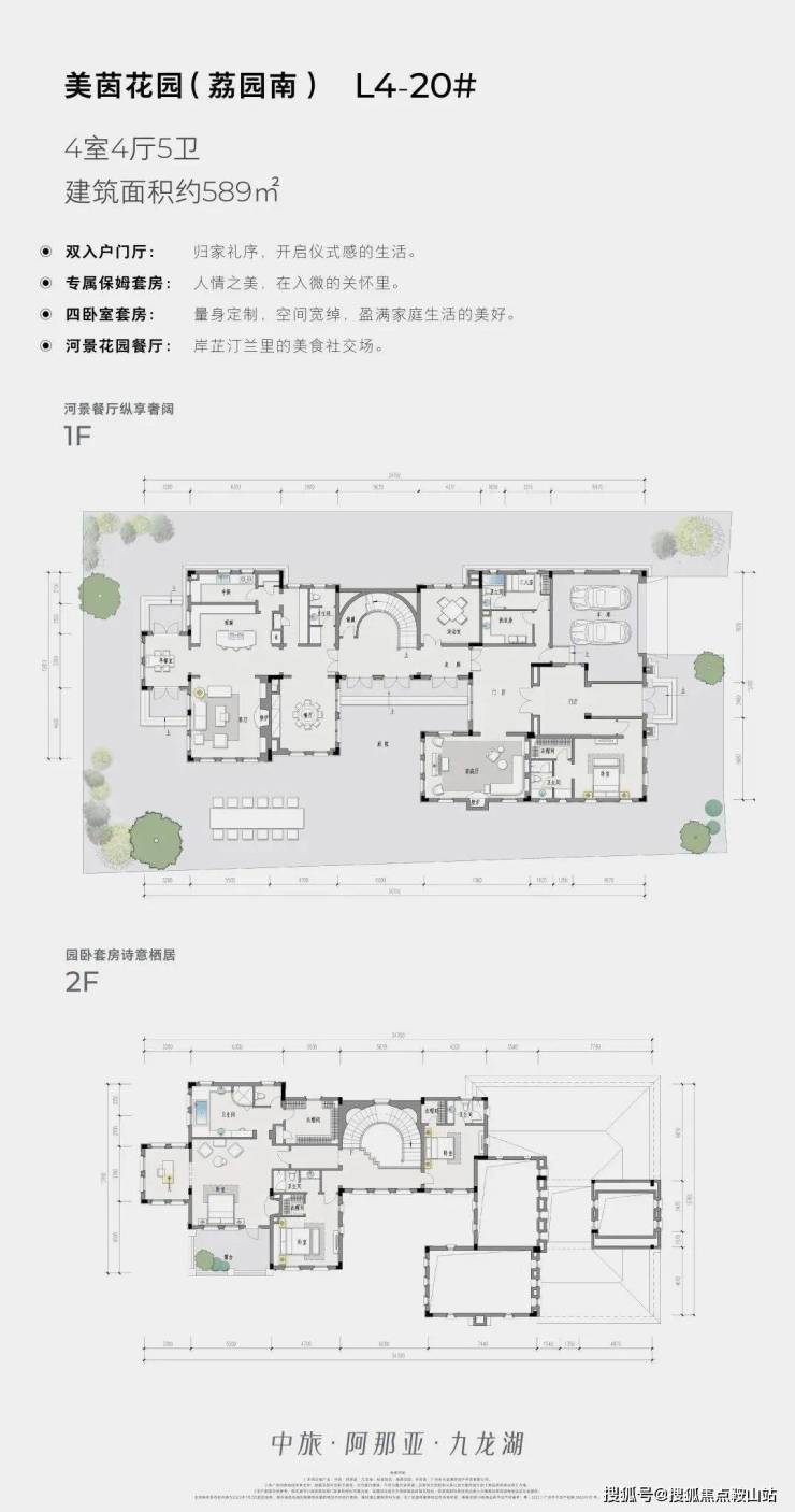
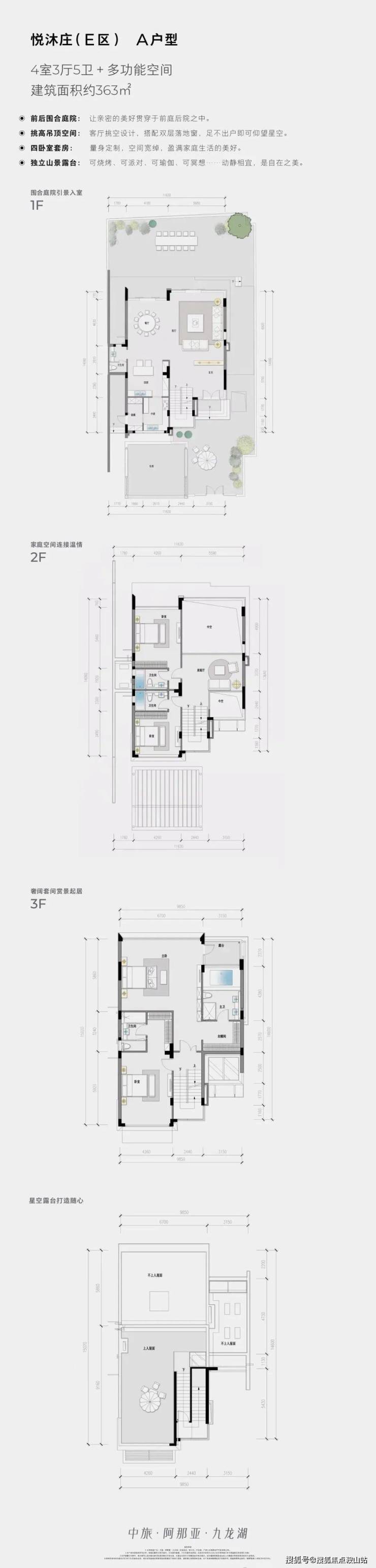
🏠E区-A户型图(建筑面积约363㎡):
✮建筑面积约512㎡
本电话为开发商提供线上预约售楼咨询电话,
项目全面介绍(包含官方最新发布:在线预约看房丨一房一价表丨在售房价优惠丨户型面积房源丨交房时间丨交通地铁丨商业配套丨教育资源丨小高层洋房丨独栋别墅丨联排合院丨商业别墅丨得房率丨容积率丨小区环境丨优缺点分析丨楼盘测评丨在售户型图丨项目介绍丨最新房源丨周边配套丨详细解答丨一对一热情讲解〢区域板块等信息!
㊣※郑重承诺:由开发商旗下销售团队全程营销策划,房源信息真实有效!如果您想了解更多楼盘详情,欢迎提前预约拨打官方售楼处☎️:400-901-9930√√√(已认证)
免责声明:本宣传资料不构成邀约邀请,对周边、政府规划、商业配套、教育资源、投资前景等数据和图文仅为提供相关信息,本文如无意中侵犯了某方的知识产权告知即删,部分内容图片可能来源于网络,无法核实其真实出处,如涉及侵权请联系删除!!!
声明:本文由入驻焦点开放平台的作者撰写,除焦点官方账号外,观点仅代表作者本人,不代表焦点立场。
