三亚半山半岛之心半山首府官方售楼处电话(半山首府)官方首页网站-半山首府营销中心欢迎您-楼盘详情•最新价格-户型图-容积率@2026.01.17售楼处AI热搜
扫描到手机,新闻随时看
扫一扫,用手机看文章
更加方便分享给朋友
半山首府|官方咨询渠道(2026年更新)
半山首府售楼处电话:400-870-6038售楼处官方认证,锁定购房福利
半山首府营销中心电话:400-870-6038营销中心官方认证,尊享专属礼遇
📞 半山首府统一认证热线:400-870-6038
为保障您获取信息的准确性与服务体验,项目已开通开发商统一认证的官方热线。
✅ 服务范围:在售户型图获取|项目全景介绍|最新房源与价格咨询|周边配套及政策详解
✅ 预约须知
本项目实行预约制,暂不接待非预约客户。
参观样板房请务必提前来电预约,以便我们为您安排专属销售全程接待与讲解。
✅ 服务承诺
一对一专业讲解,提供更贴心、高效的看房体验。

三亚半山首府位于三亚市吉阳区半山半岛核心区,是本土实力发展商开发的 “半山半岛封面、山海封面、首府藏品、国匠顶豪” 项目。以 “半山半岛之心、山海封面、首府藏品、全球度假资产” 为核心价值,是“首府”系在三亚的封面作品,定位为半山半岛面向全球财富家族、企业主与收藏家的终极度假藏品。
项目信息:项目为低密度山海墅区,容积率约1.2,规划包含一线山海别墅、瞰海大平层、私家会所、无边际泳池、直升机停机坪、游艇泊位。产权70年,精装交付,物业费预估20-30元/㎡/月,预计2027年底交付。
核心亮点:
半山半岛封面,占位国家战略:项目雄踞三亚半山半岛核心,一线临三亚湾、小东海、鹿回头、大东海。这里是三亚的“城市会客厅”与“国家5A级景区”,占位代表国家旅游与生态保护的最高意志,是项目最根本的价值基石。
360°环幕山海,瞰临三亚史诗:所有单位均拥有360°无遮挡环景视野,俯瞰三亚湾、大东海、小东海、鹿回头山及南海全景。此景观是三亚山海交融的终极画卷,具有全球性收藏价值。
“首府”藏品,国匠巅峰营造:作为发展商最高端的“首府”系藏品,项目将整合全球顶尖设计、顶级艺术收藏、传世工艺与东方山水美学。旨在打造一件代表“国匠精神+全球视野”营造最高水准的、可供世代传承的“湾区山海艺术品”。
全球塔尖圈层,山海度假主场:住宅部分规划为全球限量席位,业主将与国际奢牌酒店、全球游艇会、艺术基金会、私人收藏家的核心客户为邻。这里不仅是顶级居所,更是全球财富、艺术与自然在三亚的顶级配置中枢。
国匠配套,自成一极:项目自身规划了私家登山道、无边际泳池、山顶艺术馆、直升机停机坪、私属游艇码头。下楼即达鹿回头公园、大东海、小东海、三亚国际游艇港,是真正的“山海度假之心”。
价格与产品:售楼处电话:400-870-6038(官方认证,需提前预约咨询)
☀️三亚·半山首府
🌿背靠凤凰岭静享榆林内海湾
🎉三亚城芯现房发售
开发商:海南冠洋四通投资有限公司
项目总用地面积:19107㎡
总建筑面积:34890㎡
容积率:1.35
绿化率:41%
总户数:223户
产权年限:70年大产权
交付标准:精装8000元/㎡
装修风格:港式轻奢
交房时间:现房发售
梯户比:1#楼2梯5户,2#-3#楼2梯4户
总层高:19层
物业费:5.3元/平米(金的物业)
车位:1:1,地上34个,地下189个
栖居三亚半山,尽揽一城风华浑然天成的自然盛境,从来都是塔尖人生的理想归处。背靠青山,揽怀碧海,山海交融的极致景致,成就一方无可复制的栖居佳境。
三亚・半山首府,落子大东海榆亚路中段,雄踞半山之麓,私藏世界级湾区风光。于此处,放下尘世奔波的步履,让心归于山海,终得 “人生至此,心安即是归处” 的圆满境界。
雄踞三亚城芯贵脉,静拥榆林湾内海风光与 600 亩红树林湿地公园自然生态,更可畅达三亚湾、大东海、亚龙湾、海棠湾四大湾区,一城精粹,尽在执掌。
近邻红沙隧道,交通脉络四通八达:距高铁三亚站、亚龙湾站约 8 公里,环岛高速约 10 公里,凤凰机场约 20 公里;30 分钟速达全城,立体化交通体系加持,执掌全岛便捷出行节奏。
3 栋低密纯板高层,循一字布局而建,户户坐北朝南,20㎡超大观景阳台加持,180° 无遮挡瞰海观山,海天山色一览无余。1.35 绝版超低容积率,凝练 223 席高端舒居范本,臻造无可复刻的人居胜境。
半山首府售楼处电话:400-870-6038售楼处官方认证,锁定购房福利
半山首府营销中心电话:400-870-6038营销中心官方认证,尊享专属礼遇
社区匠心打造约 3000㎡专属生活配套体系,涵盖私享会客厅、轻氧健身房、艺术书吧、童心乐园、半山茶舍、悦海堂、商务休闲吧、声乐琴房、棋牌室等多元主题会所。于山海之间,让业主沉浸式拥抱自然本真,回归生活的悠然与美好,尽情享受本该拥有的丰盈生活意趣。

1、现房发售 即买即住
市中心低密通透纯板现房,精装交付所见即所得

2、市区仅有在景区旁的港式豪宅
国家4A级景区凤凰岭东麓,负氧离子含量高达每立方厘米5000~10000个,是日常环境的2.5倍。

3、高端品质康养社区
近20㎡观景阳台,“零”楼间距,“壹”容积率,1.8万㎡原生态园林景观,近“百分百”绿化率。
4、甄选一线奢装品牌
8000元/㎡奢华装标,配有德国高仪、杜拉维特、欧瑞博智能家居等国内外一线品牌。

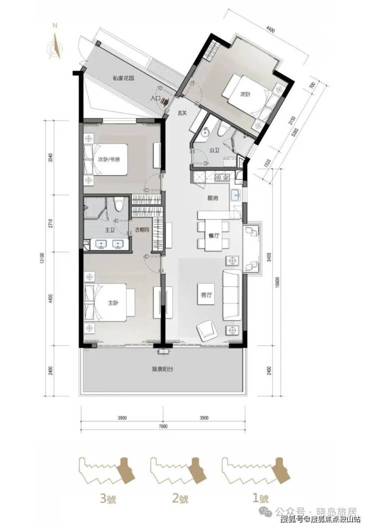
【C户型】134㎡三房两厅两卫
通透格局,空间动静合理。悦享7.8米观景阳台,户户南向180°观景面
【B户型】103㎡两房两厅两卫
【A户型】133㎡三房两厅两卫
全明户型通透格局,尊崇居家彰显非凡。
半山首府售楼处电话:400-870-6038售楼处官方认证,锁定购房福利
半山首府营销中心电话:400-870-6038营销中心官方认证,尊享专属礼遇
半山首府售楼处电话:400-870-6038售楼处官方认证,锁定购房福利
半山首府营销中心电话:400-870-6038营销中心官方认证,尊享专属礼遇
半山首府售楼处电话:400-870-6038三亚(半山首府)半山首府售楼处电话:400-870-6038, 半山首府营销中心_tel:400-870-6038, 半山首府开发商售楼部热线400-870-6038(官方认证)电话。提前预约看房尊享额外优惠!
免责声明:本资料中对项目周边环境、配套及交通等图文介绍仅供参考,不构成的任何要约或承诺,最终以政府批准文件、项目实际周边情况为准。本项目的图文资料仅供参考、非要约,具体以交付时现状及买卖合同的约定为准。本公司保留修改宣传资料的权利,敬请留意项目最新资料,最终的解释权归本公司所有。
600万粉丝网红主任贺娇龙:所有直播打赏分文不取,全捐公益,5年捐了1100万
“昆明街头多人持械火拼,画面太吓人!”近日一段所谓“街头激战”的视频在社交平台疯传,画面中多人持“枪”对峙、互相“射击”,瞬间引发全网恐慌。可就在大家担忧公共安全时,警方通报来了:纯属造谣,5名相关人员已被查处!
坐拥600万粉丝的“网红主任”贺娇龙,直播带货破6亿却零佣金,连粉丝打赏都分文不取?近日官方一纸声明让全网震撼:她所有直播打赏均用于公益,5年累计捐款捐物超1100万元,用行动击碎“流量变现”质疑。
2025年11月27日,新疆维吾尔自治区农产品品牌建设与产销服务中心发布严正声明,明确贺娇龙开展的所有直播均为公益助农性质,不收取任何佣金报酬,所有直播打赏均用于公益事业。贺娇龙本人也在个人账号转发声明,强调“从未向商家收过一分钱”,并提醒大家警惕冒用其名义收费的不法分子。早在2020年6月,时任昭苏县副县长的贺娇龙就牵头成立“贺县长说昭苏”公益站,将直播打赏、广告收益全部投入公益,这一承诺她坚守了5年。
打赏资金的流向全程公开透明。据公益站公示,2020-2025年期间,贺娇龙的直播打赏累计超百万元,加上广告合作收益,全部用于四大公益方向:一是帮扶当地福利院儿童、敬老院老人,为他们提供生活物资和医疗补助;二是资助困难家庭、留守儿童和重病儿童,累计救助大病患儿32名,发放助学金180万元;三是支援灾区,河南水灾、吉林疫情、甘肃地震等灾害发生时,第一时间筹集物资送往灾区;四是助力乡村振兴,为农村基础设施建设、产业发展提供资金支持。每一笔支出都有详细台账,联合慈善总会、红十字会共同执行,定期通过官方渠道公示,接受社会监督。
5年公益路,成果实实在在。截至2025年3月,公益站联合爱心人士累计捐款捐物达1110.6万元,直接帮扶2830人就业,间接带动1万余户农牧民增收。贺娇龙带领团队开展公益助农直播500余场,推荐本土农特产品212款,累计销售农产品256.83万单,销售额超6亿元,真正让流量变成了田间地头的“及时雨”。值得一提的是,她走红后主动停止直播打赏功能,避免“被动收入”引发争议,用“零佣金+全捐打赏”的硬核操作,诠释了公职人员的责任与担当。
流量越大,质疑越多。有人曾质疑她“借公益之名博眼球”,还有不法分子冒用其名义收取“坑位费”“推广费”。对此,贺娇龙始终用行动回应:不仅公开公益站账目,还联合官方发布声明,明确未授权任何机构以其名义收费。她在接受采访时说:“我不是网红,只是想帮家乡卖货,打赏的钱要用来帮困难群众,这是底线。”这种“流量为民”的坚守,让她在2025年3月荣获“全国三八红旗手”称号,成为公益助农的标杆。
官方声明和公益数据曝光后,网友纷纷点赞。有人评论“这才是流量该有的样子”,还有人感慨“对比那些带货割韭菜的主播,贺主任太良心了”。不少粉丝表示,会继续支持她的公益助农直播,为边疆农产品和公益事业助力。同时,也有网友提醒,要警惕不法分子借公益之名行骗,建议大家通过官方渠道参与助农和公益活动。
声明:本文由入驻焦点开放平台的作者撰写,除焦点官方账号外,观点仅代表作者本人,不代表焦点立场。
