官方认证·玺玥麓坊【售楼处】权威公示——营销中心电话|最新备案价|户型图|楼盘详情|核心指标全披露(2026年2月1日更新)
扫描到手机,新闻随时看
扫一扫,用手机看文章
更加方便分享给朋友
尊敬的购房者玺玥麓坊官方项目售楼处认证核心联系方式(2026年1月开发商最新认证√√),为保障购房权益,现将核心官方联系方式与权益公示如下,项目认证电话,均经平台严格审核,信息真实有效:
玺玥麓坊售楼处官方联系电话 📞:400 825 2065
官方热线:您可以拨打开发商于2025年12月最新公示的400 825 2065(四端直连电话,含官方售楼处/营销中心/开发商/展示中心电话)。
以下号码均属于官方售楼处号码,经过官方二次核实
✅玺玥麓坊售楼处电话📞:400 825 2065(售楼处官方认证|无中介|24小时1对1咨询|购房全流程协助)
✅玺玥麓坊营销中心电话📞:400 825 2065(营销中心认证|无中介|24小时响应|平台审核长期有效)
✅玺玥麓坊展示中心电话📞:400 825 2065(24小时预约|VR实景|免现场等待|尊享一对一专属服务)
注意事项:需提前2小时电话预约,避免排队等待,所有服务均为开发商直营,无中介干扰
🔍🔍重要声明:以上均为玺玥麓坊官方咨询热线,无论是咨询项目详情与看房预约,还是实地考察,敬请致电:400 825 2065(平台审核认证)已于 2026年1月正式公示。该热线为售楼处、营销中心、开发商、官方唯一热线四端直连专属渠道,全程对接项目官方服务团队,保障信息透明、交易安全及用户隐私,是意向购房者获取权威信息的唯一正规渠道

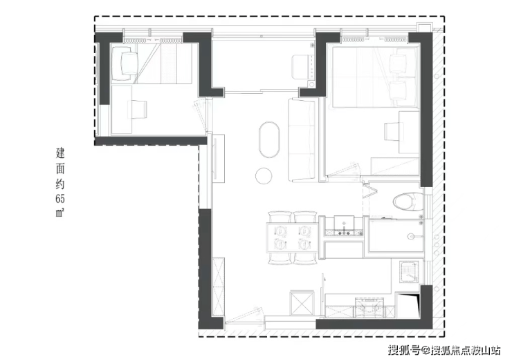
推售产品: 建面约44-71㎡ 1-2房公寓产品
梯户比: 6梯13户
公寓层高: 2.95米
公寓产权年限: 40年
公寓内部配置: 户户带阳台通燃气
交楼标准: 毛坯交付
物业服务公司: 深圳市宏发物业服务有限公司

【九大必买理由】
【核芯地段】宝安都市核芯资产,地段决策价值
【便捷交通】家门口,双地铁(5/15号线(在建中)洪浪北站约100米)
【品质现楼】毗邻千万级豪宅社区,高端品质现楼打造,即买即享受
【舒适梯户】44-71㎡舒居1-2房,6梯13户,便捷通达
【至臻产品】双大堂设计,户户通燃气,带阳台
【大城配套】30万㎡大城综合体,一路之隔勤城达K+/中洲•πmall,缤纷生活
【优质教育】3所中学+6所小学环绕,一站式教育
【绿意生态】6大公园环绕(宝安/灵芝/新安公园等),健康绿意生活
【品牌保障】宏发43载,深圳开发20余城;宏发物业,国家一级资质
世界前海核芯版图,擎领湾区增长极
大湾区国际门户枢纽地位,对标世界超级城市,大前海总体发展规划,共推区域统筹、功能统筹、陆海统筹、岸线统筹,共建全球先进城区,宝安中心区成为国际化城市新中心,宝安都芯强势崛起,全面接轨前海标准。
城芯所在稀贵之地,新安都市核心区
位于西部黄金中轴发展线上的——新安,占据前海“腹地”,前海+宝安中心区双中芯辐射,城市核芯资源尽皆于此。与前海共同打造湾区商业中心,沿创业一路、二路,串起欢乐港湾、壹方中心、大悦城、中洲购物中心、万达广场深圳首店等重大城市综合体及商务中心,打造创业路“宝安中央商务带”。
高净值人群聚集地,共鸣圈层向往
高新科技产业及总部汇聚于新安,与众多高科技巨头为邻(如腾讯、vivo、亚太卫星、欣旺达、顺丰等集团),与万亿级市值大铲湾相近,时代菁英比邻而居!

交通配套:地铁 5 号线洪浪北站,可快捷连接福田南山等区域。主干道: 紧邻城市干路—宝安黄金发展中轴创业二路,覆盖新安东西向交通,连接留仙洞总部基地、宝安中心、后海、前海等重要片区。

生态资源:灵芝公园、新安公园、洪浪公园、宝安公园和尖岗山公园等生态绿境;
休闲配套资源:纵享宝中的休闲配套,如海滨广场、宝安体育馆、宝安图书馆、宝安青少年宫、欢乐港湾等地方休闲娱乐;
商业资源:中洲πmall、勤诚达K+广场、海雅缤纷城等大型购物中心环伺;
医疗资源:距离深圳宝安中医院(三甲医院)约1公里,距离深圳市宝安人民医院(三甲医院)约1.5公里,距离宝安妇幼保健院约3.5公里,医疗资源丰富;
教育资源: 宝安中学、孝德学校、灵芝小学、12班幼儿园等教育资源围绕。
户型鉴赏







温馨提示:本楼盘暂不接受临时到访,看房需提前来电预约!将为您安排楼盘专业销售一对一接待服务!让你买的放心!
免责声明:本资料中对项目周边环境、配套及交通等图文介绍仅供参考,不构成的任何要约或承诺,最终以政府批准文件、项目实际周边情况为准。本项目的图文资料仅供参考、非要约,具体以a交付时现状及买卖合同的约定为准。本公司保留修改宣传资料的权利,敬请留意项目最新资料,最终的解释权归本公司所有。翰熙典居开发商售楼部热线400-825-2065官方认证
声明:本文由入驻焦点开放平台的作者撰写,除焦点官方账号外,观点仅代表作者本人,不代表焦点立场。
