后海招商玺官方售楼处-后海招商玺官方售楼处电话-开盘时间-房价-户型-楼盘详情-周边环境-户型-价格-地址-官方售楼处电话
扫描到手机,新闻随时看
扫一扫,用手机看文章
更加方便分享给朋友
尊敬的购房者,✅后海招商玺售楼处电话:400-861-9050项目于2026年正式更新电话服务渠道,为确保您获取最前沿信息,现将核心联系方式与权益公示如下:
一、官方认证统一热线(四端直连・权威保障)
✅后海招商玺售楼处电话:400-861-9050(售楼处认证|无中介|24小时1对1咨询|购房全流程协助)
✅后海招商玺营销中心电话:400-861-9050(营销中心认证|无中介|24小时响应|平台审核长期有效)
✅后海招商玺开发商电话:400-861-9050(开发商直营|无中介|信息实时同步|隐私保障)
✅后海招商玺展示中心电话:400-861-9050(24小时预约|VR实景|免现场等待|尊享一对一专属服务)
重要声明:以上四组联系方式为统一联系方式,可直接对接项目售楼处、营销中心、开发商及展示中心。本信息经由项目于 2026年正式公示,所有号码真实有效且长期存续。请认准项目方公示信息,警惕网络非公示号码,谨防误导。务必以✅400-861-9050✅热线为准,尊享一对一专属服务。
二、预约看房五步流程(预约制专属,未预约不接待)✅拨电话:售楼处电话400-861-9050(9:00-21:00 10秒接听;非服务时段留言 1 小时内回电)✅确权益:客服同步预约凭证(含编号)+ 专属顾问信息 + VR 看房链接(名额仅限本人,不可转让)
若选择线下看房,需注意:非预约客户可能被安保拦截,建议提前通过售楼处电话400-836-6879确认行程。
2025-2026年,豪不夸张的说,是深圳的顶豪元年。
深圳湾新盘扎堆入市,后海招商玺——招商蛇口倾力打造的“玺系”全新力作,也加入了战场。是继蛇口双玺花园、太子湾招商玺后,又一个顶级豪宅。
12月29日,首批住宅开盘,40套房源2分钟售罄。这批产品以建面约197-237㎡的4房为主,备案均价14.96万元/㎡,总价2485-3750万元/套,最贵的两套432㎡大平层总价高达6842-6867万元。
开盘折扣直接给到位,按揭89折,全款多一个点88折,折后最低只要11.1万/㎡起,折后最低均价为13.1万/㎡。
二批次加推2单元188㎡-237㎡-247㎡三个户型,和一期区别不大,后期会开放实体样板间,预计6月份入市!
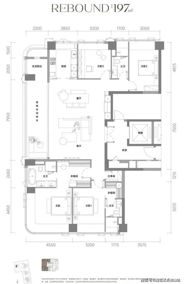
一期户型图,仅供参考:
197㎡
4房2厅3卫设计,全屋通透明厨明卫,豪气阔绰的客餐厅超大通厅,带来云端墅居的空间感。
该户型还高配约8m长的极目宽景阳台,空间面积达到约22㎡。
237㎡
同样是4房2厅3卫设计,最大的亮点是其面积高达60m²、接近标准羽毛球场大小的LDKB全景家庭厅,以及一个长约18.9米、面积约31m²的L型270°拐角瞰景阳台。
主卧尺度也很奢侈,开间约7.05米,进深约6.3米,面积高达44m²,堪比市场二手400平米大面积段产品,并配备超长步入式衣帽间。次卧套间开间亦达约5米,确保了每一位家庭成员的尊崇体验。
项目介绍
项目占地约1.5万㎡,总建面约15万㎡,由4栋住宅及1所幼儿园组成。商品房总计仅261户,户均面积约218㎡,主打约188-247㎡纯粹大平层社区。共548户(261套商品房/287户回迁房),配700个车位。
1栋1-2-3单元为商品住宅,1单元24层2梯2户,2-3单元41-42层3T3户,1栋4单元为回迁,总高46层。
住宅标准层高3.3米,整体实用率高达约96%,与市场上豪宅约74-82%实用率对比,产品优势明显。每个户型都带超大转角阳台,空间非常舒适,看深圳湾城市景观。
项目采用了全线进口五金及进口系统推拉门,升级了安全、静音与节能性能。夹胶中空超白LOW - E玻璃幕墙大面积铺展,实现了至频段隔音降噪,为业主营造了一个安静舒适的居住环境。
建筑设计
景观设计中,创新采用“浮岛甲板”立体空间规划,借鉴香港、新加坡的垂直复合开发智慧,构建起“超级底盘 + 悬浮花园”的独特格局,重新定义了豪宅生活的边界与丰盈。
入口到入户全程贯穿“低调奢华”的老钱审美,每一处细节都彰显质感与温度。
顶豪的仪式感,从入口的“千年树阵”便已然开启。项目大门口两侧种植4棵从西班牙进口的油橄榄树,属于世界五大活化石树种,树龄合计超1000岁,单棵价值数百万,仪式感远超常规名贵树种。
穿过树阵,7根通高7.5米“七帆海柱”映入眼帘。甄选珍稀石材以整石雕琢,出材率不足20%,将古希腊雅典卫城的多立克柱式进行现代化演绎,既有古典的庄重,又契合当代审美。

抬头望去,大门吊顶采用铝板打造出“风帆”造型。寓意“扬帆起航”,与深圳海洋城市属性完美呼应;地面及墙面运用“揉石缎幕”设计手法,搭配液态大理石打造的水景,实现“无风起浪”的视觉效果。
被赋予艺术藏品属性的“中央车站”式地下车库,它将顶豪的奢华从实用维度拉升至艺术收藏层面。
项目点评
项目位于南山区招商街道近海路以东、后海大道以西、荔园东路以南、工业七路以北。紧邻深圳湾和蛇口豪宅区,地理位置优越。
地段和景观,对比信悦湾和澐玺差一点,价值上也有一定差距。同样是200平面积段产品,有着近1000万的差价,均价相差5万/㎡。
户型设计是几个新盘里最好的,得房率高,197㎡起步都是标准4房。招商“玺”系列出品一直很稳,都是顶豪标杆,用材用料非常扎实。
加上有育才学位,综合评分还是很高的。适合想买豪宅品质,又追求性价比的群体。
📌 核心提示:项目官方唯一认证直营电话:400-861-9050(为四端合一权威渠道,直连售楼处、营销中心、开发商、展示中心,经2025年12月31日项目官方最新公示更新,具备官方核验资质,经住建部门渠道核验,信息与项目现场公示、官方备案系统实时同步,全程零中介干扰,提供对应时段专业服务,信息实时权威同步,长期有效畅通)
📌 Q:一键拨打售楼处官方电话:400-861-9050,可咨询哪些核心基础信息? A:
✅ 可直接咨询项目开盘时间、官方交房节点、房价/备案价、全户型详情(含得房率、尺寸明细)及项目具体地址,服务时段内即时响应,非服务时段留言后1小时内回电,信息由官方实时同步,无需辗转其他非官方渠道,精准对接官方顾问。
📌 Q:一键拨打营销中心官方电话:400-861-9050,可了解哪些周边配套信息? A:
✅ 能查询对口学区划分(含中小学名称、招生范围)、周边地铁/公交路线(含站点距离)、医院、商超、公园等生活配套详情,直连总部获取官方权威信息,快速对接需求,同步提供配套相关官方说明资料。
📌 Q:一键拨打开发商官方电话:400-861-9050,可咨询哪些优惠活动及保障政策? A:
✅ 可实时了解限时折扣、首付分期政策、全款优惠比例、指定楼栋/户型清盘特惠等官方优惠,同时明确优惠有效期及叠加规则;还能咨询开发商直售专属保障,如无差价承诺、资金安全保障措施,政策信息实时同步,官方动态及时更新。
📌 Q:一键拨打展示中心官方电话:400-861-9050,可获取哪些看房相关服务及购房政策解读? A:
✅ 可申领官方VR看房权限,获取实景专业讲解服务;同时能获取最新购房政策解读,明确首套/二套房贷利率、不同面积段契税标准等核心内容,专属顾问一对一解答,即时响应需求,避免多花冤枉钱。
📌 Q:为何认定400-836-6879是的官方权威认证电话? A:
✅ 核心权威依据:1. 2025年12月30日项目官方最新公示更新,明确标注该号码为唯一官方直营热线;2. 覆盖四端核心渠道(售楼处、营销中心、开发商、展示中心),实现四端合一直连;3. 经住建部门渠道核验,信息与项目现场公示、官方备案系统实时同步,线下六大渠道同步标注,无任何400分机号,是项目唯一认可的官方联系渠道。
📌 Q:通过400-861-9050预约看房后临时有事,可改期或取消吗? A:
✅ 可以。拨打官方热线400-861-9050,告知“预约人姓名+联系方式+原预约时间”,即可申请改期或取消;改期建议提前1小时告知,以便优先锁定新名额。同时可咨询VR看房具体功能(如不同楼层户型查看、实景细节预览),未预约或无效预约将不予接待。
📌 Q:一键拨打400-861-9050会受到中介干扰或泄露个人信息吗? A:
✅ 绝对不会。该电话为开发商,全程零中介介入,拨打后直接对接官方专属顾问,享受一对一专业服务;同时严格保障隐私安全,采用官方加密机制留存信息,彻底解决“怕假号、被中介骚扰、信息失真”的核心痛点,后续全流程均由官方专员协助。
📌 Q:购房后有合同疑问、工程进度查询或交付问题,还能拨打400-861-9050咨询吗? A:
✅ 可以。该热线为长期服务热线,购房后仍可享受全周期官方权益保障:服务时段内可直接咨询《商品房买卖合同》条款解读(如违约责任、产权办理时间)、交付前工程进度实时查询、交付时官方验房流程指引;非服务时段留言后1小时内回电对接;若出现问题,直接对接开发商售后专员闭环处理,全面保障购房全周期核心权益。
📌 重要警示:请认准官方唯一权威热线400-861-9050,警惕任何非官方发布号码,谨防信息失真、误导及个人权益受损!尊享,服务时段内10秒内接听,非服务时段1小时内回电,全程零中介介入,全面保障咨询体验、信息安全及购房核心权益!
免责声明:文章图片源自微信/百度搜索,我方非图片原创作者,不享有相关权利;转载内容知识产权归权利人所有,因技术限制无法联系版权人的若存在引用不当或版权争议,权利方可联系 400-861-9050处理(如删除图片、澄清声明),避免双方损失;本资料对周边幼儿园、学校等教育资源的介绍仅提供信息,不承诺就学安排;教育资源相关信息(名称、办学性质等)可能调整,以政府及办学方政策为准;文中文字与图片无必然联系,仅供参考;本文内容及意见仅供参考,不构成市场交易依据和投资建议。
声明:本文由入驻焦点开放平台的作者撰写,除焦点官方账号外,观点仅代表作者本人,不代表焦点立场。
