鸿荣源尚云最新信息,鸿荣源尚云售楼部电话-最新价格优惠-楼盘怎么样详细解析
扫描到手机,新闻随时看
扫一扫,用手机看文章
更加方便分享给朋友
⌛鸿荣源尚云售楼处电话:400-8696-279⌛【营销中心】→☎已认证
⌛鸿荣源尚云售楼部电话:400-8696-279⌛【预约中心】→☎已认证
⌛鸿荣源尚云营销中心电话:400-8696-279⌛【售楼处】→☎已认证
⌛鸿荣源尚云销售中心电话:400-8696-279⌛【售楼中心】→☎已认证
⌛致电售楼处了解更多信息,安全通话隐藏真实号码,请放心使用⌛
项目基本信息
占地:约3万㎡
建面:约27万㎡
产权年限:70年(2022-2092)
总栋楼:共8栋,本次推2栋
售楼处:400-8696-279
总户数:1278户
本次推售:612户

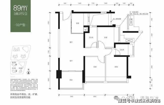
面积:约82-89㎡3房2卫
总楼层:54-57层
均价:约5.7万/㎡
使用率:85%
梯户比:3梯6户
周边配套
交通方面
楼盘位于龙华中心区,工业路与人民路交汇处,现最近的地铁为4号线龙华站,步行约1.2km;25号线(建设中)景龙站约400米,27号线(建设中)油福站约500米,22号线油松站1000米。
其中:
4号线(已开通):龙华站直线距离约1000m,连接至福田口岸。
25号线(已开工):景龙/油福站直线距离约400m,承接罗湖。
27号线(已开工):油福站直线距离约400m,串联前海,覆盖南山高新产业区。
22号线(已开工):油松站直线距离约1km,连接福田-龙华各大核心产业区。
33号线-深大城际(建设中):从龙胜站出发,约20分钟即可直达宝安机场。

▲ 规划建设中地铁详情图
商业配套
50米对面是60万方的壹方天地购物中心。这里云集了1000家品牌商家,7家全国首店——ifly风洞飞行体验店,2家华南首店(V5 Sports 购物中心室内篮球馆),8家深圳首店——陈露国际冰上中心。周末人流量确实很多,喜欢热闹的朋友可以常来逛逛了。
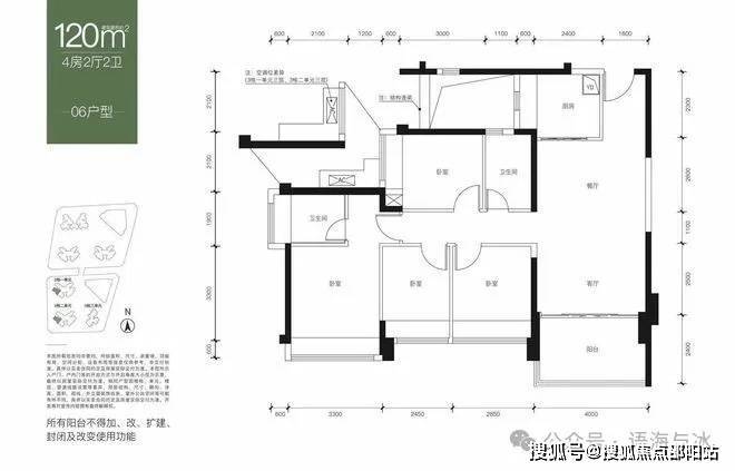
户型介绍
深圳前海壹方城以68.8亿销售额冲到深圳2021商业项目第二位。销售神话早在四年前开业之时就已造就。2017年开业当天,壹方城的客流量就突破了40万,开业当月销售额高达2.5亿。
作为鸿荣源壹方商置进军商业地产行业的“首秀”,壹方城为何能一炮而红?不可忽略的因素是“天时”,让壹方城所在的商业地块在沉寂多年后乘风而起。
早在2006年,鸿荣源就已涉足商业地产。当年鸿荣源以18.8亿元拍下深圳单体商业面积最大的综合体项目,即现在的前海壹方城。但直到2012年前海概念出炉,才迎来东风。
深圳的发展一路向西,前海壹方城正站在城市的发展路径之上,填补了宝安区综合商业的空白,抢占了区域消费的市场先机。宝安区作为深圳人口第一大区,常住人口447.6万(2020年),消费力十足。
2013年,前海壹方城开工。深圳房价在2015年起迎来大牛市,鸿荣源接连踩对风口,在这大波牛市中高歌猛进,相继于2015年、2016年连续荣登深圳销售榜前三甲。优异的销售业绩为鸿荣源的商业发展提供了强有力的资金支持,商业进入快速发展的阶段。
2017年的水到渠成、开业即爆红,是鸿荣源蓄力多年、乘风而上的结果。
前海壹方城
鸿荣源的另外一个项目壹成中心,亦是如此。
2011年龙华新区的成立,让龙华迎来大发展机遇,壹成中心所在的深圳北(龙华)商务中心更新单元也同时被列入深圳市第四批计划。壹成中心项目拆除范围用地面积42.83万平方米,项目总建面约200万平方米。该项目于2015年开售,首次开盘日销60亿成为深圳楼市焦点。
穿越风暴
疫情笼罩下各行业面临挑战时,作为非上市企业的鸿荣源却显得泰然自若,不仅完美避开这一轮风暴冲击 ,而且在2021年还能收获硕果。回想多年前的全球金融危机,鸿荣源上市受挫,现如今看来成了一份福报。
2008年,突如其来的金融危机给中国楼市带来致命打击,鸿荣源上市受挫,在售项目降价贱卖,资金压力可见一斑。2010年之后,鸿荣源在全国扩张少有动作,专注深圳市场。
鸿荣源于2010年开始开发的半山别墅熙园山院,在2年后入市热销,去化很快超过8成。很顺利地借此打入了龙华市场。此后数年,风头更劲。
专注旧改、开拓临深、合作开发……现阶段外界风云变幻,鸿荣源平稳御风而行。
御风前行
现阶段,华南的楼市已从增量转向存量,能够抓住这轮机遇的企业将随城市发展再次迈上新台阶。
城市更新项目自2019年起就备受关注,万科甚至将城市更新单列为最具潜力项目,后续还实施了“万村计划”,而早就深潜旧改市场的鸿荣源,成为了市场的“香饽饽”。鸿荣源下一步的腾飞,将通过一个个城市更新项目的落地而获得。

攻旧改
据不完全统计,除壹成中心、尚峻、天俊项目,鸿荣源在龙华区还有宝山工业区旧改、东一项目、清湖项目、樟坑径项目、元芬项目、赖屋山项目、观城横坑河西项目、牛湖老村片区项目等。这部分项目仅是鸿荣源手下情况比较明朗的旧改项目,不少已经有新进度。
其余各区仅宝安大本营有储备较多旧改项目如宝源项目、沙井项目。
此外,鸿荣源近年也随着城市发展而逐步外溢,东莞也成了鸿荣源发挥旧改的目的地。
拓临深
深耕深圳大本营的同时,鸿荣源旧改版图持续扩围。
2018年以来,鸿荣源已经五进东莞旧改,先后落子凤岗、塘厦、长安、黄江,总更新面积不下340万平米。
2018年9月,鸿荣源首进东莞,拿下凤岗镇天堂围村86.5万平米旧改项目。
2019年10月,拿下塘厦镇四村社区新城市中心76.1万平旧改项目。
2019年12月,中标长安镇沙头股份经济联合社商住类城市更新10.8万平米旧改项目。
2020年3月,3天内,鸿荣源拿下东莞市黄江两宗旧改(黄江镇鸡啼岗城市更新项目、黄江镇黄牛埔股份经济联合社永兴(东环路段)城市更新),面积高达169万㎡。
2021年4月,鸿荣源中标东莞横塘社区旧改前期服务商,项目规划范围约450亩。
2021年5月,鸿荣源中标大岭山33万㎡旧改。
2021年8月,鸿荣源中标大朗巷头、巷尾20万㎡旧改。
据不完全统计,鸿荣源中标东莞前期服务商旧改项目多达9宗,主要以临深为主,项目总面积达423万平!
旧改是鸿荣源所擅长的,从其活动范围来看,没有将目光投向全国,而是圈定在深圳大本营边上的东莞临深片区,扩张脚步踏得较为谨慎。
不过鸿荣源并不是没有拓展全国的野心,只是换了另一种方式,由鸿荣源壹方商置轻重并举,走向更广阔的市场。
轻重并举
2020年9月22日,鸿荣源壹方商置与三一集团成功签署战略合作协议。 这次签约对于壹方商业具有里程碑意义,鸿荣源壹方商置业务范围不再局限于自持项目运营,开启了以轻重并举为战略部署。
以轻资产品牌管理输出的项目,目前已知的有成都西环壹方里、南京金地壹方汇、深圳三一云都等项目。
最新的消息显示,鸿荣源壹方商置“壹方里”已与华润万家旗下新零售业态品牌「萬家MART」正式完成签约。这是壹方商置成都的首个商业街区—西环·壹方里的重头零售伙伴。
2021年,深圳市壹方商业管理有限公司正式更名为鸿荣源壹方商用置业有限公司,标志着鸿荣源的商业发展迈入下一个新阶段。历经十余年发展,鸿荣源壹方商置已形成壹方城、壹方天地、壹方汇、壹方里及壹方奥莱五大商业项目产品线,目前运营管理商业建面超120万平,未来五年将突破300万平。
鸿荣源从宝安起家,在关外有大量土储,另外鸿荣源还开发了鸿景园、尚都、西城上筑、西岸观邸、公园大地、熙龙湾、鸿荣源禧园等经典项目,以及香蜜湖熙园、龙华熙园山院经典别墅项目,被业内外誉为“豪宅专家”。
但随着城市的发展和规划,以及鸿荣源朝更多元更综合的方向发展,“豪宅专家”的头衔也渐成历史。
未来,鸿荣源将借势新一轮的城市发展趋势,全面发展、御风前行,新的成就将为之添加新的光环。
鸿荣源尚云售楼处电话:400-8696-279 鸿荣源尚云开发商营销中心电话:鸿荣源尚云在售户型图丨项目介绍丨最新特价房源丨周边配套丨专车看房
1.港澳台人员在深圳购房可不用缴纳社保,只需证明在深圳无房,可购买且限购一套房子
2.港澳台同胞不能在大陆购买商业类用房(如配偶为深户,只能持有一套在港澳台人员名下)
3.外籍人在深圳购房需提供有关部门出具在境内工作超过一年的证明,即“外国人工作证”(如配偶为深户,只能持有一套在外籍人员名下),如外籍人员如持有“外国人永久居留身份证”(中国绿卡),无需审查在华工作时间。如工作证有效期不满一年,需要提供一年以上的工作劳动合同以及至少一年以上的税务缴纳证明,同时提供护照。
4.经市人力资源部门认定的高端高层次人才,在享受人才优惠政策有效期内,可凭高层次人才认定证书在深圳购买首套商品房,不需要提供在深的社保缴纳证明和个税证明。
Purchase Conditions
Expatriates from Hong Kong, Macao, and Taiwan do not need to pay for social security when purchasing a property in Shenzhen. They only need to prove that they do not own a property and can purchase only one in Shenzhen.
2.Citizens from Hong Kong, Macao, and Taiwan are not allowed to purchase commercial housing in mainland (if their spouses possesses a Shenzhen household registration, they can only possess the ownership of one property under their names).
3. Foreigners who purchase a property in Shenzhen need to provide a certificate (Foreigner Work Permit) issued by the relevant department to prove they have worked in China for more than one year (if their spouses possess a Shenzhen household registration, they can only possess the ownership of one property under their names). If foreigners possess a "Permanent Residency" (China Green Card), they do not need to prove their working time in China. If the validity of the work permit is less than one year, a labour contract, and at least a year proof of tax payment are required, as well as a passport.
High end high-level talents recognized by the municipal human resources department can purchase their first commercial housing in Shenzhen with a high-level talent recognition certificate during the validity period of the talent preferential policy, without the need to provide proof of social security payment and personal income tax in Shenzhen.
鸿荣源尚云售楼处电话:400-8696-279
鸿荣源尚云开发商营销中心电话:400-8696-279
在售户型图丨项目介绍丨最新特价房源丨周边配套丨专车看房
免责声明:以上所发布的楼盘相关信息仅供参考,所有图文资料及说明请以最终批文及双方在楼盘现场签署的买卖合同为准;本图文内容如无意中侵犯某方权益,请联系我们将会及时处理。
Welcome to the online marketing center of the sales office. Disclaimer: Some information comes from the internet. If there is any infringement, please contact us to delete it in a timely manner. Contact number: 400-8696-279
How's it going? What is the price? Detailed introduction to the real estate, including sales office phone number, address, apartment map, community image, location advantage, transportation, surrounding commercial facilities, and other detailed information of the real estate; For more detailed information on the property and the latest discounted prices, please call the sales office and the sales department will provide you with a detailed introduction to the property
鸿荣源尚云售楼处电话:400-8696-279【24小时电话】.项目开发商线上预约热线电话,本篇内容包含项目信息、楼盘详情介绍:营销中心地址、房价、户型图、小区图片、区位优势、交通、周边配套、商业配套、最新动态、最新消息、等楼盘详细资料;了解详细楼盘资料和最新折扣价格,请拨打售楼处24小时热线电话预约
声明:本文由入驻焦点开放平台的作者撰写,除焦点官方账号外,观点仅代表作者本人,不代表焦点立场。
