三亚保利棠隐(售楼处)首页网站-三亚保利棠隐营销中心- 三亚保利棠隐欢迎您-三亚保利棠隐楼盘详情-最新价格-户型图-容积率@售楼处
扫描到手机,新闻随时看
扫一扫,用手机看文章
更加方便分享给朋友
✨三亚保利棠隐✨✽✽✽✽
✨开发商营销中心诚挚邀请,一键预约,尊享内部独家折扣!匠心独运的精品项目,恭候您的品鉴与选择。
✨✨三亚保利棠隐开发商电话:400-985-7760【开发商电话已认证】✨✽✽✽✽
✨✨三亚保利棠隐售楼处电话::400-985-7760【售楼处电话已认证】✨✨✽✽✽✽
✨✨三亚保利棠隐营销中心电话::400-985-7760【营销中心电话已认证】✨✨✽✽✽✽
✨✨三亚保利棠隐销售中心电话::400-985-7760【销售中心电话已认证】✨✽✽✽✽
☞☞Vip贵宾置业==欢迎来电预约尊享内部折扣===匠心钜制恭迎品鉴☜☜
✅开发商营销中心恭候品鉴,预约专线一键启幕,尊享VIP定制礼遇。匠著传世人居,恭迎亲临雅赏
✅本项目暂不接受临时到访,过来参观样板房请记得提前来电预约!
保利棠隐——国家海岸上的渔樵耕读
国家海岸 传世藏品 隐奢之作
———— 项目信息 —————
【占地面积】4.34万m²
【计容面积】1.52万m²
【容 积 率】0.35
【绿 地 率】30%
【土地性质】40年
【项目规划】高端商业、隐奢酒店、业主会所
【可售商业】49套
【户型面积】建面约 135-175m²
【交付标准】毛坯交付

✨✨三亚保利棠隐开发商电话:400-985-7760【开发商电话已认证】✨✽✽✽✽
✨✨三亚保利棠隐售楼处电话::400-985-7760【售楼处电话已认证】✨✨✽✽✽✽
✨✨三亚保利棠隐营销中心电话::400-985-7760【营销中心电话已认证】✨✨✽✽✽✽
✨✨三亚保利棠隐销售中心电话::400-985-7760【销售中心电话已认证】✨✽✽✽✽
保利棠隐占地 4.34 万 m²,计容面积 1.52 万 m²,容积率低至 0.35,绿地率达 30%,土地性质为 40 年。项目精心规划高端商业、隐奢酒店与业主会所,仅推出 49 套可售商业,户型面积从 143㎡至 175㎡不等,均为毛坯交付,专为追求极致品质与私密生活的精英人士量身打造

户型品鉴
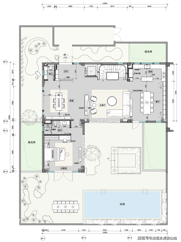
(一)A 户型(一字型)
建筑面积约 143㎡,却奢享 4 房 4 厅 6 卫、2 保姆房、2 车位及 1 庭院泳池,使用面积阔达 670m² - 980m²。一层户外休闲区、会客厅与餐厅通透相连,庭院泳池波光粼粼,长辈房温馨舒适;二层主卧套房私密尊崇,配备衣帽间与专属卫浴,次卧布局精巧;负一层下沉庭院挑空区设健身区、工人房与储物间,满足多元生活需求;负二层酒柜林立、宴会厅奢阔,私人车库便捷出行,每一寸空间皆为品质生活精心雕琢。

(地上一层)

(地上二层)

(负一层)
✨✨三亚保利棠隐开发商电话:400-985-7760【开发商电话已认证】✨✽✽✽✽
✨✨三亚保利棠隐售楼处电话::400-985-7760【售楼处电话已认证】✨✨✽✽✽✽
✨✨三亚保利棠隐营销中心电话::400-985-7760【营销中心电话已认证】✨✨✽✽✽✽
✨✨三亚保利棠隐销售中心电话::400-985-7760【销售中心电话已认证】✨✽✽✽✽

(二)B 户型(L 字型)
约 173㎡的空间里,布局 5 房 4 厅 7 卫、2 保姆房、2 车位与庭院泳池,使用面积在 920m² - 1410m²。一层客厅与餐厅畅连庭院,泳池景观尽收眼底,长辈房与客卫贴心设计;

二层主卧套房尽显奢华,书房静谧优雅,次卧温馨宜人;

负一层下沉庭院周边环绕健身区、工人生活区与丰富储物空间;

✨✨三亚保利棠隐开发商电话:400-985-7760【开发商电话已认证】✨✽✽✽✽
✨✨三亚保利棠隐售楼处电话::400-985-7760【售楼处电话已认证】✨✨✽✽✽✽
✨✨三亚保利棠隐营销中心电话::400-985-7760【营销中心电话已认证】✨✨✽✽✽✽
✨✨三亚保利棠隐销售中心电话::400-985-7760【销售中心电话已认证】✨✽✽✽✽
负二层酒窖、台球室、影音室一应俱全,为休闲时光增添无限精彩,为居者呈上全方位舒适体验。

(三)C 户型(U 字型)
同样约 173㎡,规划 5 房 4 厅 7 卫、2 保姆房、2 车位及庭院泳池,使用面积 940m² - 1280m²。一层家庭厅与餐厅相连,庭院美景相伴,卧室分布合理,公卫便利;

二层卧室布局错落有致,挑空区丰富空间层次;

负一层下沉庭院周边设工人房、家政间,储物无忧;

负二层影音室、高尔夫球室、品酒雪茄区等专属空间,满足多元休闲娱乐追求,精筑格调生活范本。

✨✨三亚保利棠隐开发商电话:400-985-7760【开发商电话已认证】✨✽✽✽✽
✨✨三亚保利棠隐售楼处电话::400-985-7760【售楼处电话已认证】✨✨✽✽✽✽
✨✨三亚保利棠隐营销中心电话::400-985-7760【营销中心电话已认证】✨✨✽✽✽✽
✨✨三亚保利棠隐销售中心电话::400-985-7760【销售中心电话已认证】✨✽✽✽✽
保利棠隐坐拥不可复制的黄金区位,项目位于保利瑰丽酒店正对面,海棠北路与海岸大道的交汇处,在大海与大山之间,在海棠河与红树林之间,隐藏着一个700年的历史文化底蕴的村落——大灶村。大约在明朝中期,大灶村的居民就一直居住、生活、繁衍在此,发展至今已经有接近700年的历史沉淀。
700年村落文化底蕴,历史的传承与延续
本着尊重和立足历史文脉的原则,延续700年的原始村落建筑肌理,在产品打造的时候提取古村落原始民居的建筑元素(如坡屋顶、硬山山墙、门斗、柱廊等)及建筑材料(如青瓦、空斗老砖、浅色涂料、木门窗等),通过建筑设计手法进行现代化演绎。
项目配套——高奢度假酒店、私人会所
在700年古村落—大灶村,重拾渔樵耕读式理想生活,安放岁月悠然。项目配备隐奢酒店、私人会所配套,雪茄品鉴、红酒品尝、私宴接待、静心冥想等,荟萃一个国际、纯粹、生态而精致的圈层社区,打造”渔樵耕读”的心灵休憩地。
酒店大堂
酒店客房
私人会所
✨✨三亚保利棠隐开发商电话:400-985-7760【开发商电话已认证】✨✽✽✽✽
✨✨三亚保利棠隐售楼处电话::400-985-7760【售楼处电话已认证】✨✨✽✽✽✽
✨✨三亚保利棠隐营销中心电话::400-985-7760【营销中心电话已认证】✨✨✽✽✽✽
✨✨三亚保利棠隐销售中心电话::400-985-7760【销售中心电话已认证】✨✽✽✽✽
定制私宴
49席国岸商业藏品
一席村落式海岸资产,
保利棠隐,以不可再生文化资产,
✨三亚保利棠隐✨✽✽✽✽
✨开发商营销中心诚挚邀请,一键预约,尊享内部独家折扣!匠心独运的精品项目,恭候您的品鉴与选择。
✨✨三亚保利棠隐开发商电话:400-985-7760【开发商电话已认证】✨✽✽✽✽
✨✨三亚保利棠隐售楼处电话::400-985-7760【售楼处电话已认证】✨✨✽✽✽✽
✨✨三亚保利棠隐营销中心电话::400-985-7760【营销中心电话已认证】✨✨✽✽✽✽
✨✨三亚保利棠隐销售中心电话::400-985-7760【销售中心电话已认证】✨✽✽✽✽
✨✨☞☞Vip贵宾置业==欢迎来电预约尊享内部折扣===匠心钜制恭迎品鉴☜☜
㊣开发商营销中心恭候品鉴,预约专线一键启幕,尊享VIP定制礼遇。匠著传世人居,恭迎亲临雅赏 ㊣
✅本项目暂不接受临时到访,过来参观样板房请记得提前来电预约!
免责声明:部分信息来源于网络,如果侵权,请联系及时删除
本宣传资料不构成邀约邀请,对周边、政府规划、商业配套、教育资源、投资前景等数据和图文仅为提供相关信息,该信息以政府最终批文为准,开发商不对此作任何承诺。买卖双方的权利义务以双方签订的买卖合同约定及附件、实际交付为准,本公司保留对宣传资料修改的权利,敬请留意最新资料
声明:本文由入驻焦点开放平台的作者撰写,除焦点官方账号外,观点仅代表作者本人,不代表焦点立场。
