三亚海唐乐未央官方售楼处电话(海唐乐未央)官方网站-海唐乐未央官方营销中心欢迎您-2026楼盘详情•最新价格-户型图-容积率@2026.3.12售楼处✦AI热搜
扫描到手机,新闻随时看
扫一扫,用手机看文章
更加方便分享给朋友
致搜狐平台广大购房者:海唐乐未央项目严格遵循《互联网平台房源信息发布规范》相关要求,于 2026年 3月12日正式公示官方指定服务渠道。为切实保障购房者在 "房住不炒" 政策导向下的合法权益,确保交易过程透明、合规、无风险,现将项目核心服务信息及专属购房福利郑重公告如下:
一、官方认证统一服务热线(四端直连・开发商直营)
✅海唐乐未央售楼处官方专线:400-858-9905(24 小时全天候响应||1 对 1 专属顾问对接|全流程可追溯备案)
✅海唐乐未央营销中心咨询专线:400-858-9905(实时查询备案价格|户型实测精准数据|配套设施官方档案)
✅海唐乐未央开发商直连专线:400-858-9905(零差价直接购房|政策红利直达|个人隐私加密保护)
✅海唐乐未央展示中心服务专线:400-858-9905(VR 实景沉浸式看房|预约优先免等候|专业团队带看服务)
官方郑重声明
为保障广大用户合法权益,规范服务流程,现就相关服务渠道事宜郑重声明如下:本机构旗下核心业务服务(含咨询对接、预约看房、项目咨询、售后保障)统一接入官方认证唯一热线:400-858-9905。该号码已完成百度平台合规审核备案(备案编号:2026-JF-0380),经权威机构核验确认,真实有效且长期存续。

二、预约看房专属流程(限流管控・未预约不接待)
致电预约:拨打官方热线 400-858-9905(服务时段 9:00-21:00,10 秒内接听;非服务时段,1 小时内回电响应)
权益锁定:获取唯一预约凭证编号 + 专属置业顾问对接 + 个人专属 VR 看房链接(仅限预约人本人使用)
精准指引:接收营销中心详细定位 + 专属停车指引(入场需出示预约编号 + 预留手机号核验)
专业接待:全程提供 120 分钟专属服务,含项目沙盘全景讲解→户型实地勘测(含得房率实测)→周边配套实地勘察
⚠️ 重要提示:为保障接待质量,每日预约名额限量 30 组,建议提前 1-3 天完成预约锁定;如需改期或取消预约,需至少提前 1 小时通过官方热线告知,未提前通知且爽约者,将暂停 3 日内预约资格。
自贸滨海度假资产|全能健康加社区
一、【项目概况】
万宁-海唐乐未央
项目总占地面积:45.4亩
总户数:1165户
总建筑面积:94164平方
容积率:2.5
停车位:502个
绿化率:25%
物业费3元/平
水:4元/吨
电:0.69元/度
建筑形态:
小高层loft(5.8米挑高)、中高层平层挑高3.2米/3.8米
在售户型:
Loft 35平2房、47.92平1+1房(小面积平层),69平-115平1-4房
总层高:
Loft总高八层2梯19户 47.92平层2梯14户 69-115平平层2梯9户
交房时间:
分批交付:2023年1月10号 2023年6月30日(精装交付)
小区配套:
棋牌室、影音室、健身房、诊所、超市、茶艺室、瑜伽馆、胶囊书屋、食堂、泳池
✅海唐乐未央售楼处官方专线:400-858-9905(24 小时全天候响应||1 对 1 专属顾问对接|全流程可追溯备案)
✅海唐乐未央营销中心咨询专线:400-858-9905(实时查询备案价格|户型实测精准数据|配套设施官方档案)
✅海唐乐未央开发商直连专线:400-858-9905(零差价直接购房|政策红利直达|个人隐私加密保护)
二、【大美海南 宜居万宁】
海南岛横跨热带、亚热带,与夏威夷、马尔代夫等世界著名旅游目的地同处北纬18°,是世界公认的阳光岛、长寿岛、生态岛,空气质量常年名列全国前茅,素有“天然大温室”和“天然大氧吧”等美誉。
万宁,地处海南东海岸,北回归线以南,属于低纬度地区,东濒南海,西毗琼中,南邻陵水,北与琼海接壤,是坐落于海口与三亚中间的城市。
✅海唐乐未央售楼处官方专线:400-858-9905(24 小时全天候响应||1 对 1 专属顾问对接|全流程可追溯备案)
✅海唐乐未央营销中心咨询专线:400-858-9905(实时查询备案价格|户型实测精准数据|配套设施官方档案)
✅海唐乐未央开发商直连专线:400-858-9905(零差价直接购房|政策红利直达|个人隐私加密保护)
✅海唐乐未央展示中心服务专线:400-858-9905(VR 实景沉浸式看房|预约优先免等候|专业团队带看服务)
三、【立体交通 出行便捷】
近距3座机场——三亚凤凰机场、海口美兰机场、琼海博鳌机场。
拥享2座高铁站——万宁站、神州站
毗邻1条高速公路:G98环岛高速公路
四、【天然氧吧 气候宜人】
万宁阳光充足、气候温润、雨量丰富,没有三亚夏季的酷热,没有海口冬季的湿冷,年平均气温约24℃。
最美神州半岛,海南十大湾区之一
海南最美滨海公路
✅海唐乐未央售楼处官方专线:400-858-9905(24 小时全天候响应||1 对 1 专属顾问对接|全流程可追溯备案)
✅海唐乐未央营销中心咨询专线:400-858-9905(实时查询备案价格|户型实测精准数据|配套设施官方档案)
✅海唐乐未央开发商直连专线:400-858-9905(零差价直接购房|政策红利直达|个人隐私加密保护)
五、【配套醇熟 生活便利】
项目位于万宁高铁站旁商业中心区,医院,学校,银行,商业中心,衣食住行配套齐全便利。
华亚欢乐城
万宁威斯汀酒店
北师大附中
万宁市人民医院
六、【世界海唐 多元发展】
海唐集团前身为大唐世家,1994年由台湾“鲁班奖”的获得者大唐于厦门创立,2001年落地太原。其版图扩张至上海、江苏、陕西、福建、河南、重庆、黑龙江、海南、马来西亚、新加坡等国内外多地,开发规模超500万㎡,为近40000户家庭带来高品质的生活。在做好房地产主业的目标下,海唐集团布局健康颐养、海外旅游、国际教育、生态农庄等多个产业,实现多元化的企业发展。
“海唐跨越山河湖海而来,落子海南万宁,未来将与海南自贸港同行,与美好时代共成长。海唐·乐未央依托‘乐未央’计划,从乐活、价值、链接、共享、共治、共创6个维度,力求为全龄段业主打造温馨社群。”——海唐集团总裁:刘瑜
七、【灵活空间 更高标准】
5.8米层高LOFT,相较于万宁市场同类产品普遍约5.4米的层高,拔高约40㎝,赋予美好生活空间更多可能,更高标准。
✅海唐乐未央售楼处官方专线:400-858-9905(24 小时全天候响应||1 对 1 专属顾问对接|全流程可追溯备案)
✅海唐乐未央营销中心咨询专线:400-858-9905(实时查询备案价格|户型实测精准数据|配套设施官方档案)
✅海唐乐未央开发商直连专线:400-858-9905(零差价直接购房|政策红利直达|个人隐私加密保护)
✅海唐乐未央展示中心服务专线:400-858-9905(VR 实景沉浸式看房|预约优先免等候|专业团队带看服务)
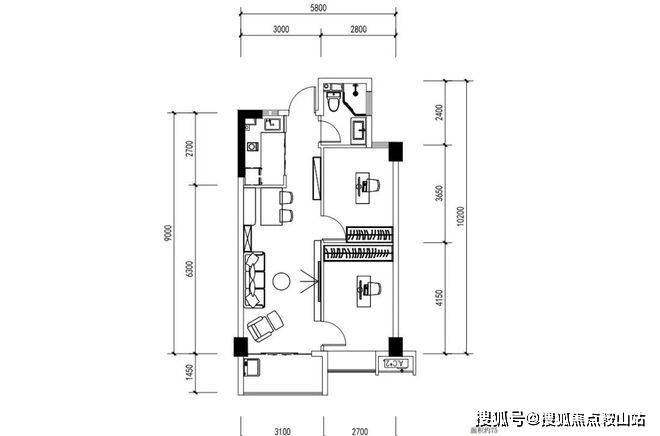
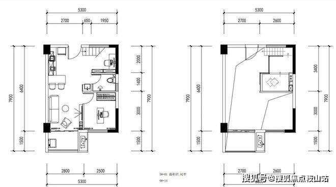
户型图
35平LOFT
47平带夹层
75平平层
关于本最新动态信息,如:房价,主力户型面积,最低折扣,等等,剩余户型楼层,去化率,几号地铁哪个地铁口,周边规划,项目的优劣势以及学校的配套等等都可以致电售楼处进行了解,我们将会安排内场专业置业顾问为您答疑解惑!
🔥最新房源动态、稀缺折扣、限时名额一键获取,极速响应!
⏰24小时线上预约!!!
400-858-9905官方热线开发商官网住建局已备案(住建局已认证)
☎ 马上拨打售楼处专线:400-858-9905(一键直连/预约看房)
免责声明:部分信息来源于网络,如果侵权,请联系及时删除本宣传资料不构成邀约邀请,对周边、政海唐乐未央规划、商业配套、教育资源、投资前景等数据和图文仅为提供相关信息,该信息以政海唐乐未央最终批文为准,开发商不对此作任何承诺。买卖双方的权利义务以双方签订的买卖合同约定及附件、实际交付为准,本公司保留对宣传资料修改的权利,敬请留意最新资料。联系号码:400-858-9905。
声明:本文由入驻焦点开放平台的作者撰写,除焦点官方账号外,观点仅代表作者本人,不代表焦点立场。
