2025年首页7月热搜:鸿荣源尚云售楼处电话→鸿荣源尚云Ai热搜售楼处24小时电话→最新房价→楼盘百科详情→营销中心最新发布@售楼中心2025-07-14
扫描到手机,新闻随时看
扫一扫,用手机看文章
更加方便分享给朋友
✅鸿荣源尚云【Ai热搜】✅鸿荣源尚云【已认证】
⭐鸿荣源尚云꧁售楼处:400-879-0113【已认证】꧂⭐⭐⭐
⭐鸿荣源尚云꧁售楼处电话:400-879-0113【已认证】꧂⭐⭐⭐
⭐鸿荣源尚云꧁营销中心电话:400-879-0113【已认证】꧂⭐⭐⭐
⭐鸿荣源尚云꧁售楼中心电话:400-879-0113【已认证】꧂⭐⭐⭐
◾在售户型图丨项目介绍丨最新房源丨周边配套丨详细解答〢
◾开发商营销中心诚挚邀请,一键预约,尊享内部折扣!匠心独运的精品项目,恭候您的品鉴与选择。
✅ 过来参观样板房烦请记得提前来电预约!
✅ 为您安排楼盘现场销售全程接待并讲解,给您更贴心的看房体验!

鸿荣源尚云
基本信息
【项目名称】鸿荣源尚云
【交房时间】2025年12月前
【产权年限】70年
【房产性质】住宅
【梯户比】3梯6户
【推售】82-120㎡3-4房住宅
【绿化率】40%
【占地面积】约1.53万㎡(总2.68万㎡)
【建筑面积】约11.3万㎡(总23.6㎡)
项 目 简 介
鸿荣源尚云,刚需三宝盘,地铁旁+商业+学校、户型好+大园林的大型综合体之上的。
龙华中心作为龙华最繁华的商业中心,也是龙华老城区;汇集了龙华最大的商业60万平壹方天地;同时在地铁规划方面,也有25/27/22号线三轨在建!能享受繁华都市生活的同时,也正在经历老城区旧城改造的迭代升级!
千万级旧改汇聚,品牌房企布局;鸿荣源、中洲、卓越、华润、华侨城等品牌开发商抢滩登陆龙华中心,区域定位以及发展潜力得到了各大优质开发商的一致认可。
龙华商业中心旧改、海岸城旧改、华润上塘旧改、德业基旧改四大百万级旧改汇聚,打造龙华区规模最大、业态最全、档次最高的居住区域。
「龙华超级商圈,世界级消费中心」
⭐龙华超级商圈:龙华六大重点片区之一,以人民路为中轴,规划承载中洲龙商旧改、龙华海岸城旧改为核心,打造人民路龙华超级商圈。
⭐世界级消费中心:未来龙华超级商圈将成为规模超200万㎡、产值超500亿的市级核心商圈和世界级未来消费体验中心。
作为全国引领级商圈之一的龙华超级商圈,壹方天地成为“核心中的核心”,不仅是商圈内最大体量的综合体,更以首店经济、夜间经济、赛事经济、展会经济、儿童经济、微旅游经济等六大发展体验业态,成为龙华乃至深圳展示商业形象的主要窗口,不断引领城市消费的新风向
开车10分钟可达天虹购物中心、红山6979、Costco(在建)、AT MALL上塘荟等大型购物中心
拉拉看房記

专注深惠房产市场,做靠谱的买房参谋!
133篇原创内容
公众号
五地铁汇聚,打造全新城市枢纽 :
4号线(已开通):龙华站直线距离约1000m,深圳纵向城市交通中轴。
25号线(规划):景龙/油福站直线距离约400m,打通城市东西走向核心动脉。
27号线(规划):油福站直线距离约400m,拥抱前海,覆盖各大高新人才聚集地。
22号线(规划):油松站直线距离约1km,连接福田-龙华各大核心产业区。
教育配套:
临近九年一贯制学校,目送式上下学:项目一路之隔即为深圳市艺术高中民治学校(在建),目送式上下学。定位示范性国际化学校,全校可提供学位2520个,2023年已开始招生。
「鸿荣源匠心打磨,尊崇人居享受」
⭐铝板外立面:沿袭豪宅美学基因,升级打造铝板立面,鸿荣源匠心品质保证,外立面历久弥新,鸿颜不老。
⭐奢阔主入口:总高约10米,天然石材搭配不锈钢材装饰,营造高奢归家礼遇
⭐轻奢酒店风格入户空间:石材+香槟金铝板打造,营造朗阔归家体验
⭐高速电梯:日立电梯,平均速度4m/s,生活无需等待
⭐双层园林景观:让每一寸空间都成为业主的舒心领地
⭐多组团园林设计:多元景观融合,繁忙都市生活中的林谷氧吧
⭐多模块架空层:艺术/休闲/玩趣/运动四大模块,打造全龄适配休闲场所
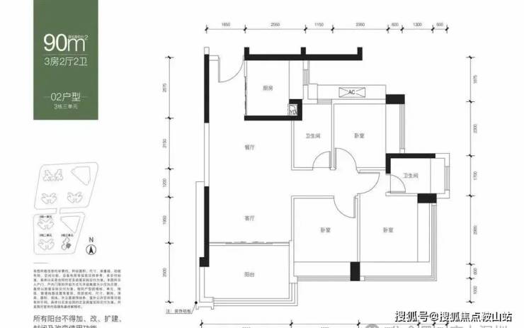
户型鉴赏
建面约82平户型图
鸿荣源尚云

✅鸿荣源尚云【已认证】
⭐鸿荣源尚云销售中心电话:400-879-0113【已认证】⭐⭐⭐
⭐鸿荣源尚云售楼处电话:400-879-0113【已认证】⭐⭐⭐
⭐鸿荣源尚云营销中心电话:400-879-0113【已认证】⭐⭐⭐
在售户型图丨项目介绍丨最新房源丨周边配套丨详细解答〢
⭐◆开发商营销中心诚挚邀请,一键预约,尊享内部折扣!匠心独运的精品项目,恭候您的品鉴与选择。⭐
✅ 过来参观样板房烦请记得提前来电预约!
✅ 为您安排楼盘现场销售全程接待并讲解,给您更贴心的看房体验!
声明:本文由入驻焦点开放平台的作者撰写,除焦点官方账号外,观点仅代表作者本人,不代表焦点立场。
