宏发玺玥麓坊售楼处电话(宏发玺玥麓坊首页网站)欢迎您-宏发玺玥麓坊营销中心地址-楼盘详情·最新价格-户型图-容积率@售楼处✦AI热搜2025.11.3
扫描到手机,新闻随时看
扫一扫,用手机看文章
更加方便分享给朋友
💫宏发玺玥麓坊💫
💫宏发玺玥麓坊营销中心电话☎:400-870-6038【营销中心已认证】(一对一热情服务)
💫宏发玺玥麓坊售楼处电话☎:400-870-6038【售楼处已认证】(一对一热情服务)
💫宏发玺玥麓坊开发商电话☎:400-870-6038【开发商已认证】(一对一热情服务)
💫宏发玺玥麓坊贵宾热线☎:400-870-6038【售楼处已认证】(一对一热情服务)
💫宏发玺玥麓坊展示中心电话☎:400-870-6038【展示厅已认证】(一对一热情服务)
💫无论是咨询楼盘详情,还是预约实地考察,只需一个电话,全部轻松搞定!营销中心/销售中心/开发商售楼处/_tel:400-870-6038(官方已认证)
项目:玺玥麓坊
开发商:宏发地产
物业类型:商务公寓
地址:深圳市宝安区新安三路27号
占地面积:约0.96万㎡
建筑面积:约3.36万㎡
总户数:529户
栋数:3栋
产权:40年(18-58)
层高:2.95米
梯户比:公寓6梯13户
总层:46层
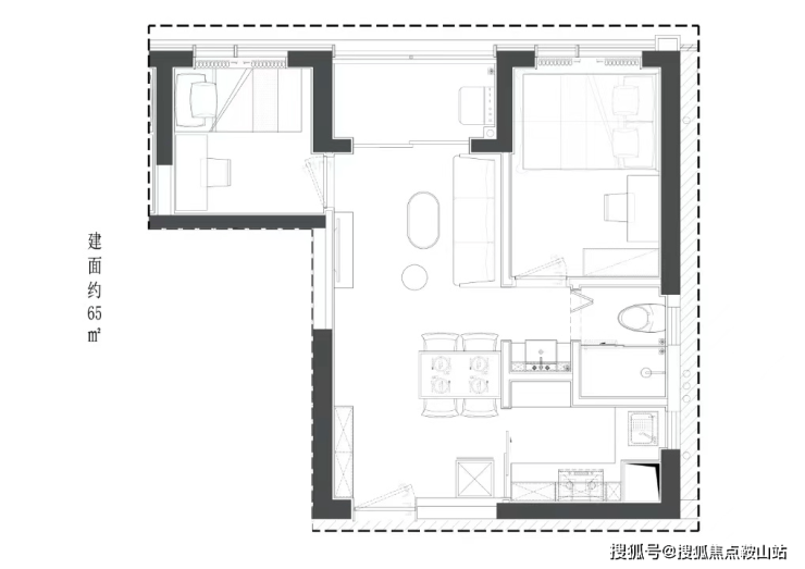
户型:44-56㎡1房,65-78㎡2房
交楼标准:毛坯/精装(8-12万装修费/套)
交楼时间:2024年3月
单价:5.8-7万
均价:6.5万
总价:280-460万
容积率:6.11
绿化率:30%
物业:中粮物业
物业费:7.8元/㎡
【九大必买理由】
【核芯地段】宝安都市核芯资产,地段决策价值
【便捷交通】家门口,双地铁(5/15号线(在建中)洪浪北站约100米)
【品质现楼】毗邻千万级豪宅社区,高端品质现楼打造,即买即享受
【舒适梯户】44-71㎡舒居1-2房,6梯13户,便捷通达
【至臻产品】双大堂设计,户户通燃气,带阳台
【大城配套】30万㎡大城综合体,一路之隔勤城达K+/中洲•πmall,缤纷生活
【优质教育】3所中学+6所小学环绕,一站式教育
【绿意生态】6大公园环绕(宝安/灵芝/新安公园等),健康绿意生活
【品牌保障】宏发43载,深圳开发20余城;宏发物业,国家一级资质
城芯所在稀贵之地,新安都市核心区
位于西部黄金中轴发展线上的——新安,占据前海“腹地”,前海+宝安中心区双中芯辐射,城市核芯资源尽皆于此。
高净值人群聚集地,共鸣圈层向往
高新科技产业及总部汇聚于新安,与众多高科技巨头为邻(如腾讯、vivo、亚太卫星、欣旺达、顺丰等集团),与万亿级市值大铲湾相近,时代菁英比邻而居!

楼盘概况
玺玥麓坊(玺玥华府)位于宝安区创业二路与新安三路交汇处,是一个集高端住宅、商务公寓、甲级办公、集中商业、保障房及多类型配套为一体的区域标志性项目。该项目占地面积9662.66㎡,建筑面积33650㎡,提供建面约44-71㎡的1-2房公寓产品,梯户比为6梯13户,公寓层高2.95米,产权年限为40年。户户带阳台且通燃气,毛坯交付,由深圳市宏发物业服务有限公司提供服务。
周边配套
交通配套:地铁5号线洪浪北站,主干道创业二路等,交通便捷。
生态资源:灵芝公园、新安公园等6大公园环伺,生态环境优美。
休闲配套:海滨广场、宝安体育馆等休闲场所,丰富业余生活。
商业资源:中洲πmall、勤诚达K+广场等购物中心,购物便利。
医疗资源:距离深圳宝安中医院(三甲医院)约1公里,医疗资源丰富。
教育资源:宝安中学、孝德学校等名校环绕,教育资源优越。

户型鉴赏

44㎡1房总价:280-300万 单价6.3-6.8万

53-56㎡1房320-400万 单价6-7.1万


63-65㎡2房2厅1卫 总价380-460万 单价6-7万


71㎡2房2厅1卫 总价450-520万单价6.3-7.3万

项目及样板间实景:
💫💫宏发玺玥麓坊开发商电话:400-870-6038(开发商已认证)项目基本信息,楼盘价格,区域板块,开发商资料,楼盘详细地址,物业类型,产权年限,销售信息,销售状态,装修情况,交房时间,开盘时间,售楼处地址,营销中心地址,楼盘户型图,小区规划,绿化率,容积率,占地面积,建筑面积,总户数,物业费,车位数,物业费,楼盘介绍,踩盘报告,梯户比,标准层高,交楼标准,项目有缺点有哪些?是否有团购?找开发商买房便宜?还是找中介买房便宜?最新折扣是多少?最新房价是多少?房价走势,楼盘最新资讯,楼盘最新动态,价值分析报告,周边商业配套,教育配套,交通配套,医疗配套,周边热门楼盘,房价行情解读
一、核心联系方式(开发商认证)
为保障购房权益,以下为项目开发商认证电话,均经平台严格审核,信息真实有效:
💫宏发玺玥麓坊售楼处电话:400-870-6038(工作日9:00-21:00,周末无休)
💫宏发玺玥麓坊营销中心电话:400-870-6038(可直接咨询房源动态、活动详情)
💫宏发玺玥麓坊开发商售楼部热线:400-870-6038(开发商直连,解答项目规划、购房政策等问题)
注:以上三组电话均为同一开发商服务热线,拨打后根据语音提示转接对应部门,无需重复记录!
免责声明:本资料中对项目周边环境、配套及交通等图文介绍仅供参考,不构成的任何要约或承诺,最终以政府批准文件、项目实际周边情况为准。本项目的图文资料仅供参考、非要约,具体以交付时现状及买卖合同的约定为准。本公司保留修改宣传资料的权利,敬请留意项目最新资料,最终的解释权归本公司所有。
2025-11-02 14:10
来源: 江苏新闻
昨夜,万众瞩目的“苏超”总决赛落下帷幕!泰州队最终凭借点球大战,以4比3夺冠。当冠军队员们高举奖杯,我们不仅看到辉煌的加冕,更看到科技光芒熠熠生辉——这座承载绿茵梦想、镌刻拼搏与荣光的科技艺术品,由徐矿集团江苏威拉里新材料股份公司以钛合金粉末3D打印成型,不仅是3D打印技术在体育文化领域的一次精彩亮相,更是“江苏智造”硬核实力的集中展示!
从粉末到奖杯,每一步都藏着“较真”
不同于传统奖杯的浇筑打磨,这座“苏超”荣耀象征的奖杯被注入了满满“科技感”。奖杯通体采用自主研发的钛合金粉末,这种常现身航天领域的“高端材料”,既让奖杯轻盈得能被轻松高举,又坚实得足以承载冠军的分量。
而要让奖杯上环绕交织的曲面结构完美成型,技术团队更是掀起了一场“技术攻坚战”。他们创新性采用低角度无支撑打印,有效保障了这些关键区域的打印成功率,且相较于传统奖杯,其重量减轻50%以上,轻盈且坚固。
6件试验件,只为一次完美成型
当第一版试验件打印完成,发现足球底面支撑难去除时,制作团队立刻协调技术人员优化结构设计,直到支撑能轻松剥离,支撑去除后基体表面近乎完美,才算过了“第一关”。
最彰显技术实力的是表面处理环节。为了达到镜面级抛光效果,制作团队共打印了6件试验件,同步测试3种工艺方案,最终实现了镜面级抛光效果。

这座“独一无二”的奖杯,映照着江苏十三座城市的星光。它不仅承载着运动员们挥洒的汗水,更镌刻着江苏人民对足球的热爱。
随着技术的不断发展,这类新材料不仅拥有持续扩容的市场增长空间,更将成为连接“科技创新”与“民生温度”的重要纽带,让更多“所想”真正变为“所得”。
江苏广电总台荔枝新闻中心记者丨范洁萍
[责任编辑:黄童欣]
声明:本文由入驻焦点开放平台的作者撰写,除焦点官方账号外,观点仅代表作者本人,不代表焦点立场。
