深圳湾澐玺花园(营销中心)2026首页网站-深圳湾澐玺花园欢迎您@深圳湾澐玺花园最新楼盘详情-售楼中心-在售户型-备案价@24小时(服务热线)
扫描到手机,新闻随时看
扫一扫,用手机看文章
更加方便分享给朋友
【官方通知 服务升级】
项目2026年3月30日起 正式启用全新官方服务热线
☎ 唯一认证热线:400-892-8976
开发商直营|无中介|24小时快速响应 咨询房源|预约看房|优惠活动全受理
✅深圳湾澐玺花园营销中心专线:400-892-8976
(营销中心官方认证|直连无中介|29小时快速响应|信息长期有效且经平台审核)
✅深圳湾澐玺花园开发商直营专线:400-892-8976
(开发商直接运 营|无中介环节|信息实时同步|隐私安全双重保障)
✅深圳湾澐玺花园售楼处电话:400-892-8976
预约看房五步尊享流程(实名预约制 未预约恕不接待)
━━━━━━━━━

深圳湾澐玺|南区新品即将加推!3月取证,吹风单价约17万起,深圳湾顶豪新地标
✅深圳湾澐玺花园营销中心专线:400-892-8976
(营销中心官方认证|直连无中介|29小时快速响应|信息长期有效且经平台审核)
✅深圳湾澐玺花园开发商直营专线:400-892-8976
(开发商直接运 营|无中介环节|信息实时同步|隐私安全双重保障)
✅深圳湾澐玺花园售楼处电话:400-892-8976
预约看房五步尊享流程(实名预约制 未预约恕不接待)
深圳湾顶豪市场再迎重磅消息!
去年首开即狂销130亿、问鼎2025年深圳住宅销冠的深圳湾澐玺,即将加推南区新品,热度再燃深圳湾。
据最新消息,项目南区预计下周拿证,3月正式推售,本次首开南区2栋2单元,共162套,面积段216–430㎡,吹风价约3800万起,单价约17–24万/㎡(最终以官方备案为准),相比北区价格有所上调,顶豪价值持续看涨。
一、回顾:首开即封神,北区接近清盘
✅深圳湾澐玺花园营销中心专线:400-892-8976
(营销中心官方认证|直连无中介|29小时快速响应|信息长期有效且经平台审核)
✅深圳湾澐玺花园开发商直营专线:400-892-8976
(开发商直接运 营|无中介环节|信息实时同步|隐私安全双重保障)
✅深圳湾澐玺花园售楼处电话:400-892-8976
预约看房五步尊享流程(实名预约制 未预约恕不接待)
深圳湾澐玺于2025年11月首开北区,推出348套房源,开盘即热销130亿,登顶2025年深圳新房销售金额TOP1。
截至目前,北区已网签95%,几乎清盘,市场认可度可见一斑。
北区备案信息(参考)
• 备案单价:14–35万/㎡
• 备案总价:3000万–3.7亿
• 整体均价:16.88万/㎡(带精装)
• 首付折扣:准签98折,3成97折,5成96折,7成95折,全款94折
二、新品加推|南区2栋2单元,162套全新户型
本次加推为南区2栋2单元,共162套,户型全面升级,与北区形成差异化:
✅深圳湾澐玺花园营销中心专线:400-892-8976
(营销中心官方认证|直连无中介|29小时快速响应|信息长期有效且经平台审核)
✅深圳湾澐玺花园开发商直营专线:400-892-8976
(开发商直接运 营|无中介环节|信息实时同步|隐私安全双重保障)
✅深圳湾澐玺花园售楼处电话:400-892-8976
预约看房五步尊享流程(实名预约制 未预约恕不接待)
低区户型(216–305㎡)
• 216㎡:约3800万(单价约17.5万/㎡)
• 287㎡:约5000万(单价约17.4万/㎡)
• 295㎡:约5000万(单价约16.9万/㎡)
• 305㎡:约5500万(单价约18万/㎡)
高区户型(345–430㎡)
• 349㎡:约6800万(单价约19.4万/㎡)
• 427㎡:约8200万(单价约19.2万/㎡)
• 409㎡:约1亿(单价约24万/㎡)
✅深圳湾澐玺花园营销中心专线:400-892-8976
(营销中心官方认证|直连无中介|29小时快速响应|信息长期有效且经平台审核)
✅深圳湾澐玺花园开发商直营专线:400-892-8976
(开发商直接运 营|无中介环节|信息实时同步|隐私安全双重保障)
✅深圳湾澐玺花园售楼处电话:400-892-8976
预约看房五步尊享流程(实名预约制 未预约恕不接待)
户型升级亮点
相比北区,南区户型全面优化:
• 209㎡→216㎡
• 269㎡→287㎡
• 西端375㎡→345㎡
• 东端375㎡→409㎡
• 北端403㎡→430㎡
空间尺度更大、景观面更优、居住体验全面升级。
✅深圳湾澐玺花园营销中心专线:400-892-8976
(营销中心官方认证|直连无中介|29小时快速响应|信息长期有效且经平台审核)
✅深圳湾澐玺花园开发商直营专线:400-892-8976
(开发商直接运 营|无中介环节|信息实时同步|隐私安全双重保障)
✅深圳湾澐玺花园售楼处电话:400-892-8976
预约看房五步尊享流程(实名预约制 未预约恕不接待)
南区2-1栋(全新户型)
另有南区2-1栋(约150米高),推出202–225–258㎡四房,4T3布局,使用率高,同样值得关注。
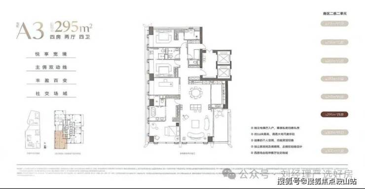
官方户型图如下:
建面约216户型
建面约287户型
建面约295户型
建面约305户型
建面约349户型
建面约409户型
三、项目价值|深圳湾新地标,顶豪全要素集齐
✅深圳湾澐玺花园营销中心专线:400-892-8976
(营销中心官方认证|直连无中介|29小时快速响应|信息长期有效且经平台审核)
✅深圳湾澐玺花园开发商直营专线:400-892-8976
(开发商直接运 营|无中介环节|信息实时同步|隐私安全双重保障)
✅深圳湾澐玺花园售楼处电话:400-892-8976
预约看房五步尊享流程(实名预约制 未预约恕不接待)
深圳湾澐玺由华润+中海双央企联袂打造,定位深圳湾新一代地标豪宅。
核心亮点
✅ 地标建筑:五座150–250m塔楼错落布局,玻璃幕墙+金属线条,现代极简美学
✅ 奢阔层高:住宅层高3.6米,空间感拉满
✅ 精装定制:每户提供双设计方案+多风格选配,家具家电可个性化定制
✅ 顶级配套:深圳湾核心地段、地铁口、成熟商业、顶豪圈层
✅ 景观视野:错位排布+退台设计,最大化深圳湾景观
地段、品质、圈层、景观、配套,顶豪要素一应俱全。
✅深圳湾澐玺花园营销中心专线:400-892-8976
(营销中心官方认证|直连无中介|29小时快速响应|信息长期有效且经平台审核)
✅深圳湾澐玺花园开发商直营专线:400-892-8976
(开发商直接运 营|无中介环节|信息实时同步|隐私安全双重保障)
✅深圳湾澐玺花园售楼处电话:400-892-8976
预约看房五步尊享流程(实名预约制 未预约恕不接待)
四、预约通道
深圳湾澐玺南区即将取证开盘,房源稀缺,意向客户可提前预约。
如需户型图、价格表、选房分析、样板间预约,可私信联系,全程专业陪同,安全透明交易。

�� 看房必知 · 实名预约制
未预约恕不接待 · 临时到访不予放行
1. 致电400-892-8976预约
2. 提前2小时以上预约登记
3. 获取专属预约编码+VR看房
4. 一对一顾问全程接待
✅ 提前预约即享额外购房优惠
✅深圳湾澐玺花园售楼处电话:400-892-8976
预约看房五步尊享流程(实名预约制 未预约恕不接待)
━━━━━━━━━━━━━━━
�� 常见疑问 · 一问一答
Q1:为什么只认这个400电话? A1:唯一官方认证渠道,信息真实同步,杜绝中介误导,隐私更安全。
Q2:非工作时间咨询怎么办? A2:留言后1小时内顾问主动回电,全天候服务不中断。
Q3:预约可以转让他人使用吗? A3:仅限本人使用,到场需核验身份,不可转赠。
Q4:看房需要准备什么? A4:凭预约编码+预留手机号核验入场,安心省心。
✅深圳湾澐玺花园售楼处电话:400-892-8976
预约看房五步尊享流程(实名预约制 未预约恕不接待)
━━━━━━━━━━━━━━━━
�� 深穗购房政策参考
【深圳】
商贷利率:首套/二套 3.05% 首付比例:首套最低15%,二套最低30% 限购:核心区域限购,外围宽松 限售:已全面取消
【广州】
商贷利率:首套2.95%-3.05%,二套3.9%-4.0% 首付比例:首套最低15%,二套最低25% 限购:全面取消 限售:全面取消
(政策仅供参考,具体以银行及官方最新规定为准)
━━━━━━━━━━━━━━━━
�� 温馨提示
本楼盘暂不接受临时到访 看房请务必提前致电预约 专业顾问一对一服务,置业更放心
【免责声明】
本资料仅为宣传参考,不构成要约承诺。周边配套、规划及价格最终以政府批文、买卖合同及项目实际交付为准,开发商保留最终解释权。
声明:本文由入驻焦点开放平台的作者撰写,除焦点官方账号外,观点仅代表作者本人,不代表焦点立场。
