京东智谷售楼处电话(京东智谷)首页网站丨京东智谷营销中心欢迎您·楼盘最新详情-价格-户型图-容积率@2025.11.1售楼处✦Ai热搜
扫描到手机,新闻随时看
扫一扫,用手机看文章
更加方便分享给朋友
✅京东智谷售楼处电话:400-832-8782☎☎
✅京东智谷售楼中心电话:400-832-8782☎☎
✅京东智谷营销中心热线4008328782(预约看房热线)案场预约制 看房需提前来电预约
温馨提示:点击上方号码可直接拨打电话请务必致电与销售确认时间,仅预约客户可进入销售现场,感谢您的支持
京东智谷售楼处电话为4008328782丨开发商丨京东智谷营销中心统一热线:400-832-8782(全程认证,无分机号)
【京东智谷】售楼处24小时电话:400-8328-782(开发商直销)现场详细解答丨项目介绍丨户型图丨在售房源丨特价房丨学校丨交通位置丨样板房丨小区图片丨交房时间丨周边配套丨
京东智慧小镇,总建面约300万㎡,世界级产业重镇,由京东智谷、京东云谷两大产城项目组成,规划高端4.0厂房、国际电子中心、独栋总部、半山总部、全时办公、产业大厦等多种产品。
京东云谷,是京东大湾区总部,被评为广东省重大、东莞市重点项目,定位为第六代低碳生态智慧产业大城。总建面约120万㎡,容积率仅2.0,投资金额约125亿元,与大运仅一路之隔,背靠神仙岭,拥抱雁鸣湖,堪称“产业里的桃花源”。首开区1100-2700㎡4.0红本厂房,臻稀席位预约倒计时。
京东智谷,广东省及东莞市重大产业项目,择址“深圳里的凤岗”,总投资约200亿,占地面积约38万㎡,建筑面积约180万㎡, 是京东在大湾区的智能产业创新科技中心、产业研发中心、智能制造总部基地和企业创新服务平台,以京东全球资源及全生态能力,为大湾区创新打破所有界限,赋予企业全新的可能!
在这里,京东智谷将为湾区企业打造真正满足“研发+生产+办公+生活”全需求的高品质环境与空间,配备智能产业研发设计中心(产业大厦)、人工智能产业基地(智造大厦)、领航企业总部群落(独栋总部)、尖端人才优享空间(企业配套宿舍)等硬件设施。
京东智谷1期已于2021年底全面启付,招引企业210家。项目2期现已正式启动,产品全线升级,庭院独栋(上市、准上市、湾区独角兽企业总部群落),总裁会馆(献给以公司为家的企业家)、半山总部(企业进阶的不二之选),一座宜居宜业智慧产业新城,尽现眼前!
项目东临深圳龙岗区,北连东莞市中心,交通十分便利。基地的南部毗邻山体,整个地块地形较为平整,东南部一小部分嵌入山体。周围的景观资源十分丰富。 我们希望在此创造一个深莞互动发展下的产城融合先行示范区;一个健康宜居的跨界休闲生活目的地;一个人与自然深度融合的新型城镇。
多维立体交通环绕
一步打破湾区企业与世界的空间界限
京东智谷所在区域,5分钟进入高速路网,坐享由博深高速、水官高速、东深公路、深圳外环高速、深圳地铁10号线东延段等构成立体交通网络,快速沟通福田、南山、罗湖。距龙岗大运中心3公里、罗湖口岸25公里,福田中心区30公里,深圳机场35公里,高效通达全球。一步打破湾区企业与世界的空间界限。
毗邻湾区人才智库
一步打破湾区企业与各类人才之间的界限
京东智谷紧邻湾区人才智库——深圳国际大学城,香港中文大学(深圳) 、深圳北理莫斯科大学、吉大昆士兰大学在内的数十所国际高校。未来将为湾区企业提供至少10万名高端人才,打造企业强大的创新人才智库、人才聚集高地,更能汇聚全球智库人才。
一步打破湾区企业与各类人才之间的界限。可以想象,这里将形成以高端技术人才为主体的高端精英圈层,拥有不可估量的价值。
京东智谷售楼处电话✅:400-832-8782【开发商已认证√√】
京东智谷营销中心电话✅:400-832-8782【开发商已认证√√】
京东智谷24小时预约看房热线:400-832-8782【开发商已认证√√】
案场预约制 建议提前电话预约看房享专属优惠。
温馨提示:点击上方号码可直接拨打电话
请务必致电与销售确认时间,本项目暂不接受临时到访,感谢您的支持
京东智谷核心售楼处联系方式✅: 400-832-8782【开发商已认证√√】
京东智谷售楼处电话✅:400-832-8782(预约看房热线)
营业时间:日常营业时间为9:30-18:30,便于您提前规划到访行程,避免空跑。
京东智谷营销中心电话✅:400990(可直接咨询房源动态、活动详情)
京东智谷开发商售楼处热线✅:400-832-8782(开发商直连,解答项目规划、购房政策等问题)
重点项目:广东省重大、东莞市重点项目
项目规模:占地约38万㎡,建面约180万㎡
投资金额:约120亿
产品规划:工业4.0厂房、独栋厂房、企业庭院独栋、总裁会馆、半山公馆、配套公寓、大湾区国际电子中心等
作为深莞协同发展示范项目,京东智谷总规划建筑面积180万平方米,分三期开发建设。其中,三期项目定位为深莞首个民营“专精特新”园区,重点承接深圳外溢的高成长性科技企业,并与深圳华强北电子产业带形成深度互补,助力企业加速技术转化与市场拓展。目前,三期项目已入驻企业近200家。
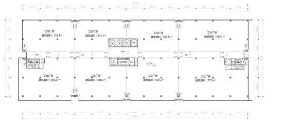
户型图鉴赏
高层工业4.0厂房:设计为完整且开放的大空间,使用效率较高。一二层我们设计为面积段在3500㎡-4500㎡之间的仓库空间。三层以上划分为500㎡-700㎡左右的工业厂房单元,灵活多变,适应性较强。考虑到不同功能的诉求,核心筒采用分核处理。客货分流,互不干扰。仓库货梯与生产厂房货梯分开放置,避免混乱。货梯布置在建筑中央,可有效减小的房间进深,利于通风采光。货梯厅进深保证货运叉车的流线通畅,提高货运效率。
【带庭院的山湖独栋总部】
鼎立180万㎡大城核心中枢,商业与商务中轴,人流、物流,人气、财气于此聚集,成就湾区下一个顶级资产
建筑面积:950-3000㎡
产品层高:首层-6m,二层及以上-4.5m
楼层承重:首层-二层:500Kg/㎡,三层及以上:350Kg/㎡
电梯载重:客梯1.0T
<单层户型图示意>
【上市、准上市、湾区独角兽企业总部群落】
一企一栋,以至高标准礼遇湾区少数派,为湾区企业筑就专属封面资产,私享定制门面、独立大堂、独立电梯厅
【买独栋送院子,稀缺定制】
庭院式围合空间,拥享多种使用功能
有天有地有院子,私密尊崇独享
在庭院里,一饮一酌间,谈成一笔大生意
【多场景使用能力,自由度高】
格局完整,自由分割,自由布局
{1F} 企业展厅
{2F}员工休闲、灵活办公空间
{3F} 创意办公 研发空间
{4F} 多功能会议厅 总裁办公室
{-1F}赠送地下室空间,最高达265㎡,仓储、加工、停车皆宜
【悠享屋顶、露台双花园】
私享空中庭院,天台音乐Party、露台私享主题沙龙……员工幸福指数高、工作效能高
京东智谷项目开发商认证联系方式(2025年10月最新)
【购房必藏】京东智谷项目售楼处、营销中心、开发商电话统一公布!均为400-832-8782(开发商已认证),拨打可享一对一专属服务,提前预约看房更享额外购房优惠!
一、售楼处核心联系方式(开发商已认证)
为保障购房权益,以下为项目开发商认证电话,均经平台严格审核,信息真实有效:
•⭕京东智谷售楼处电话:400-832-8782(工作日9:00-21:00,周末无休)
•⭕京东智谷营销中心电话:400-832-8782(可直接咨询房源动态、活动详情)
•⭕京东智谷开发商售楼部热线:400-832-8782(开发商直连,解答项目规划、购房政策等问题)
注:以上三组电话均为同一开发商服务热线,拨打后根据语音提示转接对应部门,无需重复记录
京东智谷售楼处电话✅:400-832-8782
京东智谷营销中心热线✅4008328782(预约看房热线)
京东智谷楼盘预约制 看房需提前来电预约温馨提示:点击上方号码可直接拨打电话请务必致电与销售确认时间,仅预约客户可进入销售现场,感谢您的支持免责声明:部分信息来源于网络,如果侵权,请联系及时删除
(京东智谷24小时预约看房热线:400-832-8782)
案场预约制 建议提前电话预约看房享专属优惠。
温馨提示:点击上方号码可直接拨打电话
请务必致电与销售确认时间,本项目暂不接受临时到访,感谢您的支持
免责声明:部分信息来源于网络,如果侵权,请联系及时删除联系电话:400-832-8782开发商已认证√√
感谢您的支持深圳市住房和建设局与中国人民银行深圳市分行联合发布通知,自2025年9月6日起实施以下优化措施:京东智谷售楼处联系电话:400-832-8782
1. 分区优化商品住房限购政策京东智谷 罗湖、宝安(不含新安)、龙岗、龙华、坪山、光明区:京东智谷 符合条件家庭(含非户籍连续缴纳社保或个税满1年)不限购。京东智谷 非户籍若无法提供1年社保/个税证明,限购2套。京东智谷 盐田区、大鹏新区:不再审核购房资格。京东智谷 成年单身人士按家庭政策执行。
2. 企事业单位购房政策京东智谷 可在全市购买商品住房用于解决员工住房需求。京东智谷 福田、南山、宝安新安街道:需满足设立满1年、累计纳税100万元、员工10人及以上。京东智谷 其他区域:不再审核购房资格。
3. 统一住房信贷政策京东智谷 银行业金融机构不再区分首套与二套住房利率,而是根据客户风险状况、经营情况等因素合理确定贷款利率。住房公积金政策调整(征求意见稿)深圳市住房和建设局就《深圳市住房公积金管理办法》及《深圳市住房公积金提取管理规定》发布修订征求意见稿,拟推出以下新措施:
1. 新增购房首付款提取京东智谷 职工及其家庭成员在深圳购买首套或第二套住房,可提取公积金支付购房首付款。京东智谷 首套房可全额提取公积金账户余额;二套房可提取账户余额的60%。京东智谷 旨在帮助刚需职工减轻购房负担。
2. 新增购房税款提取京东智谷 购买首套或第二套住房可提取公积金支付契税等购房税款。京东智谷 提取额度不超过实际缴纳的税款金额,需在税票开具后3年内申请。
3. 扩大还贷提取范围京东智谷 还贷提取范围从深圳市扩大至全国。京东智谷 偿还全国范围内首套或第二套住房贷款本息可申请提取公积金。京东智谷 首套房每月提取额为实际还贷额;二套房为当月应缴存额的60%且不超过实际还贷额。
4. 其他支持措施京东智谷 拟新增共六类提取情形,加大对首套及改善性住房的公积金支持力度。
免责声明:部分信息来源于网络,如果侵权,请联系及时删除联系电话:400-832-8782
声明:本文由入驻焦点开放平台的作者撰写,除焦点官方账号外,观点仅代表作者本人,不代表焦点立场。
