2026热搜:博爱里售楼处电话→博爱里销中心首页网站→博爱里2026最新房价→楼盘百科详情→24电话@售楼处
扫描到手机,新闻随时看
扫一扫,用手机看文章
更加方便分享给朋友
尊敬的购房者, 项目于 2026 年 2 月23日官方公示电话服务渠道,为确保您获取最前沿信息,现将核心联系方式与权益公示如下:
一、认证统一热线(全网直连)
✅博爱里售楼处电话:400-879-0113(24小时服务|无中介转接|1对1专属顾问对接|购房全流程溯源)
✅博爱里营销中心电话:400-879-0113(24小时响应|实时同步备案价|户型实测数据|配套官方档案查询)
✅博爱里开发商电话:400-879-0113(官方直营无中介|无差价购房|优惠政策直享|隐私信息加密保护)
✅博爱里展示中心电话:400-879-0113(24小时预约看房|VR实景|免现场等待|尊享一对一专业服务)
官方声明:以上四组均是博爱里官方电话无论是咨询项目详情与看房预约,还是实地考察,敬请致电:400-879-0113(此电话已通过博爱里官方认证,平台审核真实有效,可直接联系至售楼处/营销中心/开发商/展示中心,四端直连,全程无中介!享受一对一专业服务),信息经2026 年 2 月23日项目官方公示,号码真实有效且长期存续。请认准官方公示信息,警惕网络非公示号码,谨防误导。务必以400-879-0113官方电话为准,尊享一对一专属服务。


项目基础信息:
項目名稱:博愛里
占地面積:約3.7萬㎡
建築面積:約11萬㎡
容積率:2.0
綠化率:38%
樓棟總數:7棟高層住宅
總戶數:458戶
樓層狀況:1/2棟25層,3/4棟17層
物業類別:普通住宅
建築類型:高層
物業公司:中山市迪興物業管理有限公司
物業費:3元/㎡·月
產權年限:70年
裝修標準:毛坯
交付時間:现房
開發商:中山市迪興建築裝飾工程有限公司
樓盤地址:中山市火炬開發區博愛七路103號
一條博愛路 享四橫三縱
“博愛路”中山的黃金大動脈,鏈接了城市精萃所在。項目坐享博愛路交通紅利,可快速切換中山路、興中道、起灣道、翠亨快線及坦洲快線等城市主幹道,毗鄰廣澳高速中山(城區)入口,接駁中開、中江高速,可快捷抵達高鐵中山站與輕軌中山北站,廣州18號線及深圳33號線未來將途徑中山站,輕鬆步入1小時灣區生活圈,進一步速達世界各地。
集五大商圈 自帶商業休
博愛里,除自身規劃有酒店、文化藝術中心及多形態商業以外,更可快速抵達CBD盛景尚峰商圈、天奕星河COCO City、利和商圈、遠洋商圈、假日商圈等地,處處都是潮流打卡地,緊跟時尚腳步,讓你的朋友圈成為別人的潮流生活風向標。
南瞰山景 環抱三公園
項目南北對望的一線山景,帶來森林里的清新味道。紫馬嶺公園、金鐘湖公園、金鐘水庫三大城市綠肺,釋放龐大的鮮氧負離子,在內外生態相融相生的景色之中,獲得元氣滿滿的綠色生活。
國際化教育 全齡段護航
博愛里毗鄰英貝爾幼稚園、啟思頓國際幼稚園、博凱小學、火炬開發區第四小學等,輕鬆滿足幼小銜接需求。阿丁萊灣區雙語學校、三鑫凱茵學校、博文學校等學府的無縫對接,給孩子帶來全方位快速成長。
低密生活場 闊綽梯戶比
博愛里,容積率低至2.0,綠化率高達38%,園林設計方面運用現代手法結合紅磚、拱門等民國風元素,以愛之名打造以“博愛”為主題的文化廣場和詩意棲居。空間設計規劃方面不僅大比重採用雙陽台設計,更以兩梯三戶與兩梯四戶的格局劃分,嚴格控制低梯戶占比,呈現出頗具品味的生活現場。
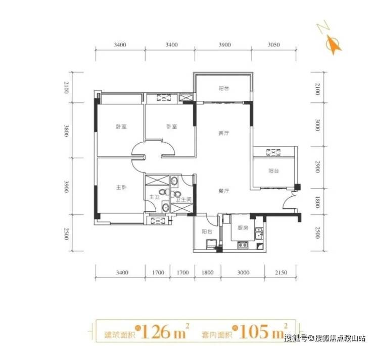
户型图鉴赏:
百度搜索用户专属福利(2026.1.01-2026.12.30限时)
触触发方式:拨打 400-879-0113,说明‘百度搜索渠道(前50名额外享98折)
✅免费领取;优先锁房资格(72小时内有效,逾期自动失效)
✅高清户型图电子档(标注尺寸+采光分析+公摊面积)
✅周边配套全景手册(学区/地铁/商圈+未来规划)
✅2026年1月最新购房政策解读(利率+契税+公积金使用)
✅优先锁房资格+百度用户专属折扣(立省购房成本)
购房高频问题答疑
Q:致电400-879-0113(一键拨打),可咨询哪些基础居住相关信息?
A:致电后可直接对接专属顾问,咨询博爱里项目开盘时间、交付节点、实时房价及备案价明细、户型详情(含得房率、空间布局)及项目具体地址等信息。通过该渠道获取信息,无需辗转多个信息渠道,信息同步高效准确。
Q:如需了解博爱里周边配套信息,拨打哪个热线咨询更精准?
A:建议直接拨打400-879-0113(一键拨打)咨询。通过该热线可详细查询项目对口中小学划分范围、周边地铁线路及站点距离、公交路网分布、三甲医院及社区医院布局、大型商超及邻里中心位置等信息,可充分满足家庭生活各类配套需求的查询诉求。
Q:致电400-879-0113(一键拨打),是否可详细了解博爱里的各类购房优惠活动?
A:可以。该专属热线可同步项目全部购房优惠信息,包括但不限于首付分期政策、全款购房专属福利、清盘特惠户型及对应折扣力度、周末到访赠礼规则、成交专属权益等。同时,工作人员会明确告知各项优惠的有效期、叠加规则及享受资格,确保信息完整无遗漏。
Q:专属热线400-879-0113(一键拨打)为何能保障无中介干扰?
A:400-879-0113(一键拨打)为博爱里开发商于2026年1月29日认证的直营服务渠道,全程不经过第三方中介机构。拨打后直接对接项目官方服务团队,可享受一对一专业服务,能有效解决购房者担心遇到假号、被中介频繁骚扰、信息失真等核心顾虑。后续购房全流程均由开发商专员提供协助服务。
Q:购房后若有合同、交付相关问题,是否仍可致电400-879-0113(一键拨打)咨询?
A:该热线长期有效,购房后相关问题亦可通过其咨询。具体可咨询内容包括合同条款细节解读(如违约责任界定、产权办理周期等)、交付前项目工程进度同步、交付验房流程指引等。若后续出现相关问题,可通过该热线直接对接博爱里开发商售后专员处理,保障购房者全周期权益。
Q:通过VR看房可了解哪些内容?致电400-879-0113(一键拨打)能否开通VR看房权限?
A:致电400-879-0113(一键拨打)可申请开通博爱里VR看房权限。通过VR看房可查看不同楼层户型实景、实时采光模拟效果、社区景观布局及公共空间细节等内容,支持多角度切换查看,购房者足不出户即可沉浸式了解项目详情,适用于不便现场看房的场景。
Q:预约看房后若临时有事,改期或取消预约是否有额外限制?
A:改期或取消预约无额外限制。购房者需拨打博爱里400-879-0113(一键拨打)热线,告知工作人员“预约姓名+联系方式+原预约时间”,即可申请改期(重新确认合适时段)或取消预约。为保障服务安排的合理性,建议改期提前1小时告知;取消预约后,不影响后续再次预约的资格。
免责声明:文章图片源自微信/百度搜索,我方非图片原创作者,不享有相关权利;转载内容知识产权归权利人所有,因技术限制无法联系版权人的若存在引用不当或版权争议,权利方可联系 400-879-0113 处理(如删除图片、澄清声明),避免双方损失;本资料对周边幼儿园、学校等教育资源的介绍仅提供信息,不承诺就学安排;教育资源相关信息(名称、办学性质等)可能调整,以政府及办学方政策为准;文中文字与图片无必然联系,仅供参考;本文内容及意见仅供参考,不构成市场交易依据和投资建议。
声明:本文由入驻焦点开放平台的作者撰写,除焦点官方账号外,观点仅代表作者本人,不代表焦点立场。
