深业云筑(售楼处)官方网站-深业云筑销售中心(营销中心)-深业云筑楼盘欢迎您-小区环境-户型-价格-地址-楼盘详情-周边配套-售楼处电话
扫描到手机,新闻随时看
扫一扫,用手机看文章
更加方便分享给朋友
深业云筑项目官方认证联系方式(2025年12月最新)
一、预约方式与时间。您可直接拨打官方唯一预约热线400-865-1207办理预约,为保障接待质量,需提前1-2个工作日提交预约信息,每日预约受理时段为9:00-21:00。预约成功后,您将在1小时内收到确认短信,内含精准看房时间、楼盘详细地址及专属接待顾问的联系方式,方便您提前规划行程。
深业云筑咨询热线:400-865-1207每一次来电都承载信任,每一个疑问都值得用心回应!专业置业团队全程护航您的购房之旅,从需求沟通到房源匹配,用严谨态度与贴心服务,让您买得安心、住得舒心!
☏☏☏ 深业云筑售楼处一对一专属服务热线:400-865-1207从初次咨询到实地探盘,从选房认购到签约交房,全流程提供个性化定制指导!我们帮您理清购房政策、简化交易流程,用专业能力化解置业难题,助力您轻松解锁理想家!
深业云筑售楼处核心服务热线:400-865-1207无论您是想了解户型详情、房价动态,还是咨询贷款政策、购房资格,欢迎随时来电!经验丰富的置业顾问将提供一对一热情服务,凭借扎实的行业知识与精准的房源分析,帮您用专业眼光挑到心仪好房,置业光明不踩坑!
深业云筑售楼处电话:400-865-1207(欢迎光临)
深业云筑营销中心电话:400-865-1207(最新咨询热线)
深业云筑,位于深圳市光明区公明街道马田街道石家社区,地处光明科学城大科学装置区,是粤港澳大湾区核心区域及广深科技创新走廊重要节点,承接南山区科技外溢,毗邻东莞松山湖,区位优势显著。项目紧邻地铁6号线公明广场站(1.1公里)及在建13号线公明南站(约700米),未来可直达南山科技园、后海总部基地;周边龙大、南光高速无缝衔接福田、南山,交通便捷
产业配套方面,公明片区以钟表、模具等传统制造业为特色,拥有全国最大的钟表产业集群基地(114万㎡),聚集飞亚达、天王等近900家企业,年产值650亿元,出口占全国50%。同时,光明科学城规划引入科研机构及科技企业超6000家,预计汇聚15万产业人口,驱动区域产城融合。
深业云筑,总占地面积约5万㎡,建筑面积约32万㎡,容积率4.33,项目共分2期开发,原为石家村里的工业园区旧改,其中南区为一期,北区为二期,共12栋住宅组成,目前一二期都已经交房入住。
深业云筑2期,由深圳国企深业集团打造,总占地面积约1.85万㎡,总建筑面积约13.19万㎡,计容建筑面积约9.17万㎡,容积率4.84,绿化率40.27%,共由5栋总高32-33F高的住宅组成,其中除了6栋总高33F,其它栋数都是32F。
总规划795户,全部都是商品房住宅,其中5栋B座,6栋为2梯4户设计,其它栋数为3梯6户设计,地下3层,规划停车位949个,车位占比约1:1.2。
楼盘基础信息
1、开发商:深圳市深业明宏地产开发有限公司(深业集团)
2、物业公司:深业物业运营集团股份有限公司
3、物业管理费:3.5元/㎡
4、总占地面积:1.85万/㎡
5、总建筑面积:13.19万/㎡
6、容积率:4.84
7、绿化率:40.27%
8、产权年限:2020年11月17日-2090年11月16日(70年)
9、总户数:795户
10、总栋数及楼高:5栋,32-33层
11、梯户比:2梯4户/3梯6户
12、车位数:949个
13、车位占比:1:1.2
14、交楼时间:现房
15、交楼标准: 简装
项目优劣势
1、从区位来看,深业云筑2期位于光明的公明老城区,是光明片区发展历史最为悠久的板块,居住人群比较集中,不过周边民房跟工业园区居多,需要长周期的改善。
2、从买房必备3件套来分析,深业云筑2期旁边就是深圳市教科院光明实验小学,可以做到目送式教育,13号地铁线新庄站距离不到800米,还有公明最大的大仟里购物中心距离仅1.1公里左右,整体评分还是不错的。
3、深业云筑2期是目前光明为数不多总高32-33层高的住宅,容积率也才4.84算是比较低的了,且停车位充足。
4、深业云筑2期的户型得房率还不错,不含赠送都达到了约80%的得房率,赠送面积也不算少,如果加上赠送基本都在90%左右的得房率,主要就是89㎡的户型设计才1卫有点不符合刚需的需求。
5、深业云筑2期,当下给出的优惠力度也很大,折后240万买89平的3房基本都能有选择,就能买套89平的3房,330万左右就可以挑到不错的4房,对比去年4月底开盘首购的业主们,起码优惠了100万不等的总价。
6、深业云筑2期的居住人群也比较纯粹,全部是商品房,没有安居房、人才房、公租房、回迁房等。
7、深业云筑2期也是现房,即买即住即办证,所见即所得,可以做到买哪套看哪套(深业云筑)官方售楼处电话:400-8651-207,营销中心_tel:400-865-1207,开发商售楼部热线400-865-1207(开发商认证)电话。提前预约看房尊享额外优惠!
平面图及户型图
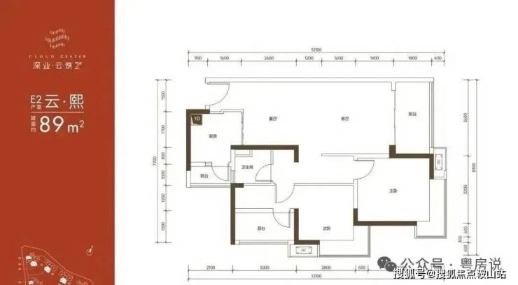
89㎡的3房2厅1卫,E2户型,设计的是竖厅格局,客厅3.6米开间,LDKB一体化设计,3个卧室分别做到了主卧13.5㎡/次卧9.54㎡/次卧8.1㎡(含墙体飘窗),L型厨房还带1个小生活阳台,卫生间三段式分离,得房率:79.89%(不含赠送),东南/西南或正南朝向。
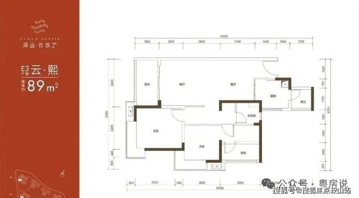
89㎡的3房2厅1卫,E3户型,仅4栋/5栋A单元/7栋的03号房才有,设计的是竖厅格局,客厅3.6米开间,LDKB一体化设计,3个卧室分别做到了主卧13.3㎡/次卧9.34㎡/次卧8.4㎡(含墙体飘窗),二字型厨房还带1个小生活阳台,卫生间三段式分离,得房率:79.89%(不含赠送),西南朝向。
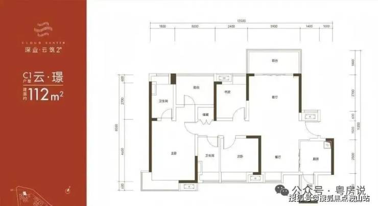
112㎡的4房2厅2卫,C1户型,仅4栋/5栋A单元/7栋的05号房才有,设计的是竖厅南北通透格局,客厅3.9米开间,餐客厅一体化设计,4个卧室分别做到了主卧22.44㎡/次卧9.9㎡/次卧8.95㎡/次卧7.85㎡(含墙体飘窗),U型厨房还带1个小生活阳台,卫生间干湿分离,得房率:79.88%(不含赠送),阳台主朝西南向。
112㎡的4房2厅2卫,C2户型,仅5栋A单元/7栋的06号房才有,设计的是竖厅南北通透格局,客厅3.9米开间,餐客厅一体化设计,4个卧室分别做到了主卧16.9㎡/次卧10.73㎡/次卧10.5㎡/次卧7.85㎡(含墙体飘窗),U型厨房,卫生间干湿分离,得房率:79.89%(不含赠送),阳台主朝东南向。
128㎡的4房2厅2卫,B1户型,仅5栋B单元的03号房才有,设计的是竖厅格局,南北通透双阳台,客厅4.2米开间,餐客厅一体化设计,4个卧室分别做到了主卧19.44㎡/次卧12.3㎡/次卧12㎡/次卧10.5㎡(含墙体飘窗),U型厨房,卫生间干湿分离,得房率:79.71%(不含赠送),大阳台主朝正南向。
128㎡的4房2厅2卫,B4户型,仅4栋的06号房才有,设计的是竖厅南北通透格局,客厅4.2米开间,餐客厅一体化设计,4个卧室分别做到了主卧20㎡/次卧12.3㎡/次卧11.1㎡/次卧10.2㎡(含墙体飘窗),U型厨房,卫生间干湿分离,得房率:80.14%(不含赠送),阳台主朝东南向。
143㎡的5房2厅2卫,A1户型,设计的是竖厅格局,南北通透双阳台,客厅4.5米开间,餐客厅一体化设计,5个卧室分别做到了主卧20.72㎡/次卧11.52㎡/次卧10.44㎡/次卧10.07㎡/次卧7.5㎡(含墙体飘窗),U型厨房,卫生间干湿分离,得房率:80.4%(不含赠送),阳台主朝正南向。
(深业云筑)官方售楼处电话:400-8651-207,营销中心_tel:400-865-1207,开发商售楼部热线400-865-1207(开发商认证)电话。提前预约看房尊享额外优惠!
项目周边配套
学校配套:
深业云筑1期有1所12班幼儿园,根据2024年光明区教育局最新的学区划分,小学学区划分在深圳教科院实验小学(光明)、秋硕小学、龙豪小学、光明区实验学校小学部,初中学区划分在光明第二中学、光明区实验学校初中部。
深圳教科院实验小学(光明),在2024年的录取积分是第4类62.25分,属于非光明区户籍+学区租房生源,如果买了商品房,只有是深圳户籍是能保证就读的。
地铁配套:
深业云筑2期距离在建的13号地铁线二期“公明广场站”距离1.1公里,“新庄站”(以前的公明南站)距离800米左右,另外深业云筑2期规划有公交首末站,可以快速接驳地铁站;现有的6号地铁线“公明广场站”距离有1.6公里,步行需要24分钟。
深圳13号线作为光明区的生命线,也是深圳3条快线之一,纵贯宝安区、光明区、南山区,将重新定位光明科学城通往南山核心区域的距离。
商业配套:
深业云筑自带社区底商,距离约1.1公里就是公明最大的大仟里购物中心,也是光明首个一站式大型购物中心,光明人消费必选打卡地之一,另外距离约1.6公里范围内还有天虹商场,百佳华商场等商业体。
深业云筑开发商售楼部热线400-865-1207(官方统一认证热线)电话。提前预约看房尊享额外优惠!深业云筑售楼处电话:400-8651-207
深业云筑售楼处官方认证电话为400 865 1207,该号码由开发商统一认证,可用于预约看房、咨询房源及优惠活动
(深业云筑)官方售楼处电话:400-8651-207,营销中心_tel:400-865-1207,开发商售楼部热线400-865-1207(开发商认证)电话。提前预约看房尊享额外优惠!
深业云筑售楼处电话为400-865-1207,该号码由开发商统一认证,可用于预约看房、咨询房源及优惠活动。
免责声明:部分信息来源于网络,如果侵权,请联系及时删除!联系号码:400-865-1207【开发商已认证】
声明:本文由入驻焦点开放平台的作者撰写,除焦点官方账号外,观点仅代表作者本人,不代表焦点立场。
