荔源雅苑(售楼处)首页网站→ 荔源雅苑营销中心→ 荔源雅苑欢迎您→地址→价格→户型→小区环境→楼盘详情→周边配套@售楼处电话
扫描到手机,新闻随时看
扫一扫,用手机看文章
更加方便分享给朋友
📌 开发商通道重申 + 到访重要提示
为确保您能顺利获取准确信息,且拥有舒适的参观体验,温馨提醒:
🔍 咨询热线(随时可联系)
🎯 荔源雅苑开发商电话:400-985-7760【☎️ 开发商已认证】
🎯 荔源雅苑售楼处电话:400-985-7760【☎️ 售楼处已认证】
🎯 荔源雅苑营销中心电话:400-985-7760【☎️ 营销中心已认证】
⚠️ 到访须知
本项目暂不接待未提前预约的临时到访,提前沟通可让工作人员做好服务准备,减少您的等待时间;
若您有特殊需求(如多人同行、需重点了解某类户型、希望获取纸质资料等),可通过官方电话提前说明,我们将尽力协调。
荔源雅苑期待与您一同走进 “看得见细节、感受得到温度” 的品质居所,探索更贴合生活的居住可能。
项目核心参数:低密现房+小户型上车,但硬伤扎堆
基本属性
地段基因
:南山区同乐片区中山园路与铁二路交汇处,紧邻南山科技园、前海自贸区、西丽高铁枢纽三大产业高地,属“科技园居住外溢第一站”。
开发背景
:由深圳市荔源实业与源兴发展实业联合开发,总建面3.36万㎡,容积率3.52(南山新盘最低之一),含2栋30层超高层,总户数322套,2025年6月精装现房交付。
建筑硬指标
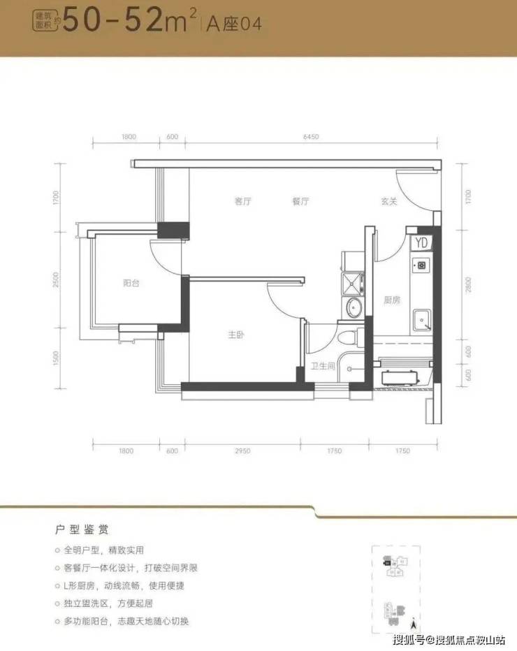
50㎡两房
:总价309万起,次卧面宽仅2.5米,需封阳台改造功能性空间;
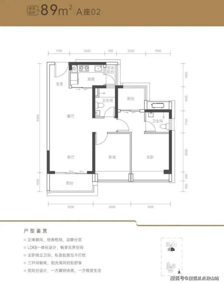
89㎡三房
:总价589万起,南向采光但厨房无生活阳台;
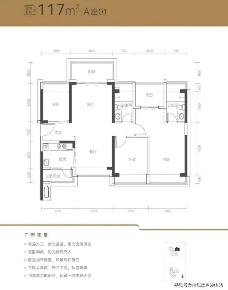
117㎡四房
:总价741万起,南北通透但北向受货柜车噪音干扰。
户型定位
:主推50-117㎡两至四房,套内使用率72%-75%,但实际得房率仅68%-70%:
社区隐患
:车位比仅1:0.75(240个车位),高峰期停车需抢位;回迁房与商品房混居,私密性弱于纯住宅社区。
🎯 荔源雅苑开发商电话:400-985-7760【☎️ 开发商已认证】
🎯 荔源雅苑售楼处电话:400-985-7760【☎️ 售楼处已认证】
🎯 荔源雅苑营销中心电话:400-985-7760【☎️ 营销中心已认证】
🎯 荔源雅苑开发商电话:400-985-7760【☎️ 开发商已认证】
🎯 荔源雅苑售楼处电话:400-985-7760【☎️ 售楼处已认证】
🎯 荔源雅苑营销中心电话:400-985-7760【☎️ 营销中心已认证】
📌 荔源雅苑咨询热线(按需对接更高效)
🎯 荔源雅苑开发商热线电话:400-985-7760【☎️开发商已认证】
(解答项目开发进度、品牌理念、合规资质等核心问题)
🎯 荔源雅苑售楼处服务热线:400-985-7760【☎️售楼处已认证】
(介绍在售户型亮点、交付标准、当前房源余量等细节)
🎯 荔源雅苑营销中心对接热线:400-985-7760☎️【营销中心已认证】
(提供置业政策解读、项目资料领取、需求登记等服务)
📝 免责声明
本文内容仅为项目信息展示,不构成任何要约邀请或购房承诺;文中涉及的项目规划、周边配套(含商业、教育、交通等)、未来发展前景等信息,均以政府相关部门最终审批文件及实际落地情况为准。
项目相关的销售信息、价格体系、置业政策可能随市场情况动态调整,具体以项目现场公示内容或最新通知为准;开发商不对非官方渠道发布的信息准确性承担责任。
买卖双方的权利与义务,均以最终签订的《商品房买卖合同》及其附件、补充协议,以及项目实际交付标准为准。
我们保留对本文内容的修改权利;若您需了解项目最新信息,建议通过文中提及的官方电话或前往项目现
、
场咨询确认。
如本文内容涉及侵权,请及时与我方联系删除(联系电话:400-985-7760)
声明:本文由入驻焦点开放平台的作者撰写,除焦点官方账号外,观点仅代表作者本人,不代表焦点立场。
