玖玖颂阁售楼处首页网站-玖玖颂阁欢迎您-玖玖颂阁售楼中心-楼盘详情-最新价格-户型图-容积率@官方售楼处
扫描到手机,新闻随时看
扫一扫,用手机看文章
更加方便分享给朋友
【官网】✨玖玖颂阁✨✽✽✽✽
💎玖玖颂阁售楼处电话☎:4009027191【官方认证】⭐⭐⭐⭐
⭐在售户型图⭐项目介绍⭐最新房源⭐周边配套详细解
⭐*开发商营销中心诚挚邀请,一键预约,尊享内部折扣!匠心独运的精品项目,恭候您的品鉴与选择!
✅为给您更好的看房体验请提前来电预约(给您预留现场销售和停车位)
✅注意:本项目不收任何费用,售楼中心〢欢迎来电咨询〢
玖玖颂阁售楼处当前官方电话为400-902-7191(开发商统一认证)
玖玖颂阁售楼联系方式
·官方认证热线:400-902-7191(开发商直连工作日9:00-18:00可预约,拨打后根据语音提示转接)。
·该号码为2026年1月最新认证信息,建议优先使用。
·其他历史号码包括400-902-7191(2026年1月)、400-909-9980(2026年1月),可能存在变更风险。
·预约须知:
·需提供姓氏、联系电话及到访人数。
·成功预约可享额外99折优惠及专属顾问服务
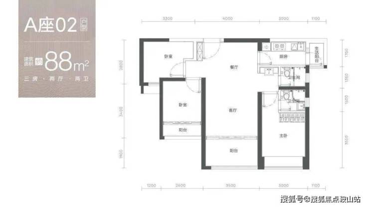
玖玖颂阁项目位于深圳宝安区,占位前海黄金圈内环,享受宝中醇熟配套。项目在售建面89-133㎡三至四房,全南向板楼设计,通风采光佳;建面89㎡三房两厅两卫,人生第一套房不必迁就;建面128-133㎡四房两厅两卫,阔绰奢宅,三代同堂的进阶之选。

开发商:深圳市俊弘星实业有限公司
项目位置:宝安区新安街道新安四路与建安一路交汇处
总占地:约1.4万㎡
总建面:约10.41万㎡
可售套数 :379
推售面积段:83-133平方米3-4房
梯户比:A-C座2梯4户,D座2梯5户
容积率:5.04
车位数:752
物业公司:中熙物业
物业费:住宅6.00元/平方米·月
产权年限:70年
交楼标准:精装交付
项目步行5分钟可达两所省一级学校——文汇学校、弘雅小学就在家门口。办学历史都超过20年,弘雅小学是宝安区“窗口型艺术特色示范学校”。文汇中学升学率排名宝安区前列,师资稳定。半径2公里范围内汇聚9所中小学,教育资源密集。除此之外,项目周边还有大量优质的少儿培训机构,满足孩子成长教育的多样化需求。
交通配套
家门口的双地铁,半小时通达全城
项目距离12号线上川站F2出口约100米;
距规划中15号线(流塘站)约700米(2028年开通);
北环大道、G107国道、宝安大道在侧,半小时通达全城。
1公里范围内有天虹商场,万达广场、沃尔玛等商业配套。2公里内有中洲πMALL、海雅缤纷城、壹方城等超百万平方米醇熟都会商圈配套,满足日常购物逛街需求,坐拥西部商圈核心。

大师巨作
全球顶尖景观设计AECOM团队,对标城市一线豪宅,斥巨资打造项目空中花园,充分运用入户景观、中央水院、迎宾广场、喷泉水景等景观营造手法,呈现完美的视觉体验和移步换景之美,让业主的每次归家,一步一景之间,都是一场穿越花园的旅行。


▲项目园林实景拍摄

▲玖玖颂阁C座样板房实景拍摄

【官网】✨玖玖颂阁✨✽✽✽✽
玖玖颂阁售楼处电话☎:400-902-7191【官方认证】⭐⭐⭐⭐
🔥可来电话预约销售顾问,专业一对一热情服务让您用专业眼光去购房!
玖玖颂阁售楼处电话核心联系方式
·官方认证热线:400-902-7191(24小时人工接听,全年无休)
·备用热线:400-902-7191(工作日9:00-18:00) 注意事项:
1.需提前2小时致电预约,暂不接受临时到访。
2.拨打可享专属购房优惠与实时房源动态。
3.存在多方号码公示现象,建议优先使用高频出现的400-902-7191
免责声明:
1、内容部分来源网络,因编辑需要文字和图片之间亦无必然联系,仅供读者参考。
2、此公众号所转载的所有文章、图片、音频视频文件等资料版权归版权所有人所有,因非原创文章及图片等内容无法一一和版权者联系,如原作者或编辑认为作品不宜上网供大家浏览,或不应无偿使用,请及时通知我们,以迅速采取适当措施,避免给双方造不必要的经济损失。
3、本网页如无意中侵犯媒体或个人的知识产权,请来电告之,我们将立即予以修改或删除。
声明:本文由入驻焦点开放平台的作者撰写,除焦点官方账号外,观点仅代表作者本人,不代表焦点立场。
