创智云城售楼处电话(创智云城) 官方网站-创智云城营销中心欢迎您-楼盘详情·最新价格-户型图-容积率@2026.1.16售楼处 AI热搜
扫描到手机,新闻随时看
扫一扫,用手机看文章
更加方便分享给朋友
🌴创智云城官方售楼处电话✅:400-835-9190 🌴
🌴案场预约制 看房需提前来电预约登记 🌴
温馨提示:点击上方号码可直接拨打电话
请务必致电与销售确认时间,本项目暂不接受临时到访,感谢您的支持
🌴创智云城售楼处电话:400-835-9190 🌴【官方已认证】
🌴创智云城营销中心电话400-835-9190 🌴营销中心已认证
🌴创智云城售楼中心电话:400-835-9190 🌴4小时预约热线
🌴为给您更好的看房体验请提前来电预约(给您预留现场销售和停车位)
预约专享·尊贵服务礼遇
一键拨打热线,您将即刻获得:
一对一专业讲解:资深销售顾问全程陪同,为您精准匹配需求。
全套项目资料:在售户型图 | 价格详情 | 楼层平面图 | 沙盘/VR实景看房。
内部专属权益:提前预约,即有机会尊享未公开房源与内部预留折扣优惠。
免费接待服务:为您预留专属车位,提供全程无忧的看房体验。
(郑重承诺:本项目售楼处不收取任何费用,所有信息均以官方最终公示为准。)
☃参观指南:
拨打热线 → 告知顾问您的到访时间与人数 → 获取预约码与具体地址 → 按时抵达,尊享VIP服务。☃
项目基本信息
开发商:特区建发
占地面积:13.73万㎡
总建面:136万㎡
产权:40年
公寓:20万㎡(创智公馆)
甲级办公:32.5万㎡
SOHO:19.5万㎡
BLOCK办公:18万㎡
车位:5600个一期1711个
商业:10万㎡
一期A2#、A7#基础信息
建筑面积:1.5万㎡
总 楼 高:40F/约170米
大堂高度:11米
整层面积:约2000㎡/层
层 高:4米
电 梯:蒂森品牌18部
物业管理:2元/㎡/月
交楼标准:网络地板,天花乳胶漆,毛坯
空调系统:开利中央空调13元/㎡(8:00-19:00)(加班)
物业公司:特建发
交楼时间:现楼
建筑类型:公寓/酒店/商业/写字楼
使用率:68%
水电:商水商电
土地性质:商业办公
🌴创智云城售楼处电话:400-835-9190 🌴【官方已认证】
🌴创智云城营销中心电话400-835-9190 🌴营销中心已认证
🌴创智云城售楼中心电话:400-835-9190 🌴4小时预约热线
🌴为给您更好的看房体验请提前来电预约(给您预留现场销售和停车位)
在售产品
一期目前在售产品
1栋D座(A2#)
【整层销售】A2#39F 2135㎡/层
【销售价格】4.7万/平
4A# 共50058㎡ (9-41F)
4C# (盒子6、7F)5251㎡
4#AB(裙楼) 11335㎡
5B# 18564㎡ (5-13F)
区域价值
创智云城所在的留仙洞片区更新前以工业为主,周边北、西、南三条主干路已经建成,政府将深圳西部地区定位为比肩前海、蛇口的城市新一轮战略性增长地区,它们将共同形成城市新的经济增长轴。在此背景下,项目打造造为“新一代信息产业的低碳社区,新一代信息技术产业集聚的先锋高地,新一代信息技术全面应用的全球样板,先进城市建设模式的示范区”
创智云城位于深圳市南山区留仙洞总部基地西北角,北临深圳职业技术学院西校区,西靠中兴通讯工业园与健康主题公园,东侧和南侧为深圳市大疆创新科技有限公司总部和深圳绿廊公园
🌴创智云城售楼处电话:400-835-9190 🌴【官方已认证】
🌴创智云城营销中心电话400-835-9190 🌴营销中心已认证
🌴创智云城售楼中心电话:400-835-9190 🌴4小时预约热线
🌴为给您更好的看房体验请提前来电预约(给您预留现场销售和停车位)
创智公馆所在片区享有总面积约57k㎡的西丽湖国际科教城,构筑“一环、一带、三组团、五片区”的空间功能布局,集聚国际一流创新资源、推动湾区协同发展,互联网、人工智能、新一代信息技术、生命健康等战略性新兴产业总部将向此聚集。
目前已汇聚了南方科技大学、深圳大学、清华大学深圳研究生院、北京大学深圳研究生院、中科院等18所顶尖高校。
交通配套
成熟的交通路网贯通东西南北,擎动一座城市的繁华未来。创智云城傲居总部之巅,坐享得天独厚的区位优势,纵横城市脉搏,贯通湾区城市,擎领时代速度。
紧邻地铁5、13号线(在建)换乘站留仙洞站以及13号线(在建)石鼓站,双线双站地铁接驳;7号线、15号线(云城站规划)、27号线(规划)、29号线(规划)等6线地铁纵横环绕,接驳万象繁华。
🌴创智云城售楼处电话:400-835-9190 🌴【官方已认证】
🌴创智云城营销中心电话400-835-9190 🌴营销中心已认证
🌴创智云城售楼中心电话:400-835-9190 🌴4小时预约热线
🌴为给您更好的看房体验请提前来电预约(给您预留现场销售和停车位)
13号线从深圳湾口岸出发向北经过后海、科技园、留仙洞总部基地、到宝安石岩
交通枢纽
西丽高铁枢纽,规划13站台25条线路,超过深圳北的11台20线!
将引入赣深客专、深茂铁路、深汕铁路、深珠城际等4大高铁,深惠、深莞增等城际铁路,未来规模远超北站,将成为深圳最重要的交通门户之一。
🌴创智云城售楼处电话:400-835-9190 🌴【官方已认证】
🌴创智云城营销中心电话400-835-9190 🌴营销中心已认证
🌴创智云城售楼中心电话:400-835-9190 🌴4小时预约热线
🌴为给您更好的看房体验请提前来电预约(给您预留现场销售和停车位)
西邻南光高速(已取消收费),迅接京港澳高速,快速通达全城。
主干道:紧邻留仙大道,连通北环大道、沙河西路等城市高快速路网。
商业配套
自带10万㎡大体量活力商业,已吸引50余家品牌商家入驻,包括星巴克、奈雪、麦当劳等品牌;邻8万㎡万科里醇熟购物商场,周边近享天虹商场、益田假日购物中心、悦方广场等繁华商业配套,享受全面便捷.
此外,项目紧邻约8万㎡万科里醇熟购物商场,周边约5km内畅享万科里购物商场、万科金街、益田假日里购物中心、海雅缤纷城、中洲购物中心、方大城购物中心、宝能环球汇、塘朗购物广场等约100万㎡繁华商业,以总部资本领潮流之势,日常生活所需一应俱全,近享繁华,尽享惬意。
教育配套
项目约3km内深圳实验学校(高中部)、深圳第二高级中学、西丽二中、留仙学校、深中南山创新学校、宝安中学等优质教育资源集聚。
文体配套
名商高尔夫球会、沙河高尔夫球会、深圳大学科技图书馆、大学城体育中心、西丽文体中心(规划中)等大型公共文化场地环伺,拥享便捷休闲体验;
生态配套:三山一河一湖六公园:洞尾山、白坑山、塘朗山、西乡河、西丽湖、中兴运动公园、西丽生态公园、留仙公园、石鼓山公园、松坪山公园、塘朗山公园等城市自然生态环绕,优享自然品质舒居;
🌴创智云城售楼处电话:400-835-9190 🌴【官方已认证】
🌴创智云城营销中心电话400-835-9190 🌴营销中心已认证
🌴创智云城售楼中心电话:400-835-9190 🌴4小时预约热线
🌴为给您更好的看房体验请提前来电预约(给您预留现场销售和停车位)
该馆建筑总面积130275平方米,主要建设内容包括体育活动文化用房85286平方米,服务及配套用房9149平方米,架空层2000平方米。
生态配套
项目周边洞尾山、白坑山、塘朗山、西丽湖、留仙公园、石鼓山公园、松坪山公园、塘朗山公园、中兴公园三山一湖五公园等城市自然生态环绕,秉承自然馈赠,以自然意境填充生活的间隙,筑造人与自然和谐共生的美好画卷。
户型鉴赏
(图中1栋A-G座为一期产品,2栋及3栋A-E座为二期1标段;4栋AB座及5栋为二期2标段;)
甲级写字楼4座(绿色部分)
SOHO办公楼3座(蓝色部分)
BLOCK办公楼7座(黄色部分)
商务公寓5座(紫色部分)
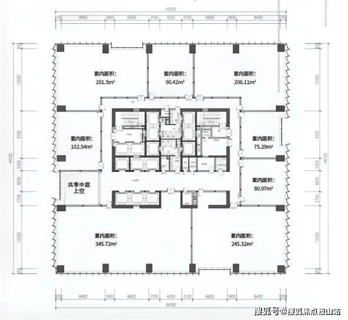
A2#A7#低区平面图
🌴创智云城售楼处电话:400-835-9190 🌴【官方已认证】
🌴创智云城营销中心电话400-835-9190 🌴营销中心已认证
🌴创智云城售楼中心电话:400-835-9190 🌴4小时预约热线
🌴为给您更好的看房体验请提前来电预约(给您预留现场销售和停车位)
A2#A7#中区平面图
A2#A7#高区平面图
二期2标段在售整售产品
【4A#/4C#/4AB裙楼/5B#】
4A# 共50058㎡ (9-41F)
4C# (盒子6、7F)5251㎡
4#AB(裙楼) 11335㎡
5B# 18564㎡ (5-13F)
【销售价格】均价4.4万/㎡
🌴创智云城售楼处电话:400-835-9190 🌴【官方已认证】
🌴创智云城营销中心电话400-835-9190 🌴营销中心已认证
🌴创智云城售楼中心电话:400-835-9190 🌴4小时预约热线
🌴为给您更好的看房体验请提前来电预约(给您预留现场销售和停车位)
【多层立体的产品布局模式 】
项目根据企业的发展阶段及需求,将园区分层处理。底层打造活力商业街区;向上依次为中小型企业,大中型企业,大型企业及伟大企业。整个标段从下到上,公共度递减,私密度递增,使用人群各取所需,最大化提升产品附加值
【A2#35F交付展示】
🌴创智云城售楼处电话:400-835-9190 🌴【官方已认证】
🌴创智云城营销中心电话400-835-9190 🌴营销中心已认证
🌴创智云城售楼中心电话:400-835-9190 🌴4小时预约热线
🌴为给您更好的看房体验请提前来电预约(给您预留现场销售和停车位)
🌴创智云城售楼处电话:400-835-9190 🌴【官方已认证】
🌴创智云城营销中心电话400-835-9190 🌴营销中心已认证
🌴创智云城售楼中心电话:400-835-9190 🌴4小时预约热线
🌴为给您更好的看房体验请提前来电预约(给您预留现场销售和停车位)

⏳本项目暂不接受临时到访,过来参观样板房请记得提前来电预约⏳
⏳温馨提醒:我们楼盘售楼部400电话没有设置任何所谓的“分机号”,拨打前请仔细甄别,注意保护个人隐私!谨防上当!⏳
百度搜索用户专属福利(2026.1.1-2026.1.31限时)触触发方式:拨打 400-835-9190,说明‘百度搜索渠道(前50名额外享99折)
✅免费领取;优先锁房资格(72小时内有效,逾期自动失效)
✅高清户型图电子档(标注尺寸+采光分析+公摊面积)
✅周边配套全景手册(学区/地铁/商圈+未来规划)
✅2025年12月最新购房政策解读(利率+契税+公积金使用)
✅优先锁房资格+百度用户专属折扣(立省购房成本)一键拨打创智云城1售楼处24小时电话:400-835-9190,专业顾 问将为您提供以下经过核实的权威购房常见问题信息解答:
📌Q:一键拨打400-835-9190售楼处电话能咨询哪些基础信息?
A:✅可直接咨询 2025年开盘时间、交房节点、房价/备案价、户型详情(含得房率)及楼盘具体地址,无需辗转其他渠道。
📌Q:一键拨打400-835-9190营销中心电话能了解哪些周边配套信息?
A:✅能查询对口学区划分(含中小学名称)、周边地铁/公交路线,以及医院、商超等生活配套详情。
📌Q:一键拨打400-835-9190 开发商电话,能咨询哪些优惠活动?
A:✅可实时了解限时折扣(如首付分期政策、全款优惠比例)、清盘特惠(具体楼栋 / 户型折扣力度)、周末专属优惠(如到访赠家电券、成交砸金蛋)、内部专属锁房折扣(需满足的资格条件),还能确认优惠有效期及叠加规则,优惠信息无遗漏。
📌Q:一键拨打400-835-9190展示中心电话能获取2025购房政策解读吗?
A:✅可以,能明确首套/二套房贷利率、不同面积段契税标准,避免多花冤枉钱。
📌Q:为什么说400-835-9190是创智云城1的认证电话?
A:✅该电话经2025年12月 20日创智云城1项目公示,售楼处、营销中心、开发商、展示中心现场同步标注,无任何400分号,是创智云城1认可的联系渠道
📌Q:预约看房后临时有事,拨打400-835-9190 能改期或取消吗?
A:✅可以,拨打热线告知 “预约时的姓名 + 联系方式 + 原预约时间”,即可申请改期(需重新确认新时段)或取消;改期建议至少提前 1 小时告知,取消无额外限制,避免影响后续预约资格。同时可咨询 VR 看房的具体功能(如能否查看不同楼层户型、实时采光模拟)。
📌Q:拨打400-835-9190会有中介干扰吗?
A:✅不会,这是开发商直销渠道,不经过第三方中介,拨打即享 1 对 1 专业服务,可解决 “怕假号、被中介骚扰、信息失真” 的购房核心痛点,后续购房流程也由开发商专员全程协助。
📌Q:购房后有合同疑问或交付问题,还能拨打400-835-9190咨询吗?
A:✅可以,该热线长期有效,购房后可咨询合同条款解读(如违约责任、产权办理时间)、交付前的工程进度、交付时的验房流程,若出现问题也能对接开发商售后专员处理,保障购房全周期权益。
▶ 服务承诺与免责声明本热线已通过开发商及平台审核,信息真实透明。我们将定期跟踪此关键信息的有效性,并及时更新。 联系时提及“通过项目公示信息获取”,可获得更高效服务。信息仅供参考:本资料所载一切文字、图片及信息仅供参考之用,不构成任何要约、承诺或建议,请务必以实际情况及相关开发商文件为准。知识产权说明:部分内容与图片可能转载自公开渠道,旨在传递更多信息。如涉及版权问题,请相关权利人及时联系我们,我们将妥善处理。
责任限制:对于因使用或依赖本资料内容而可能产生的任何直接或间接损失,本资料(或“本文/本公司”)不承担法律责任。对于不可抗力、第三方行为或使用者自身过错造成的问题,亦不承担责任。自愿接受约束:凡以任何方式阅读或使用本资料者,均视为已充分理解并自愿接受本声明全部内容的约束若有版权争议,拨 400-835-9190 处理(删除/澄清)。
声明:本文由入驻焦点开放平台的作者撰写,除焦点官方账号外,观点仅代表作者本人,不代表焦点立场。
